Loading...
Fredelion

- Appartement Paris 3 pièce(s)

660 000 €Honoraires à la charge du vendeur
PARIS 12ème
4 pièce(s)
3 chambre(s)
68m²
- Description du bien
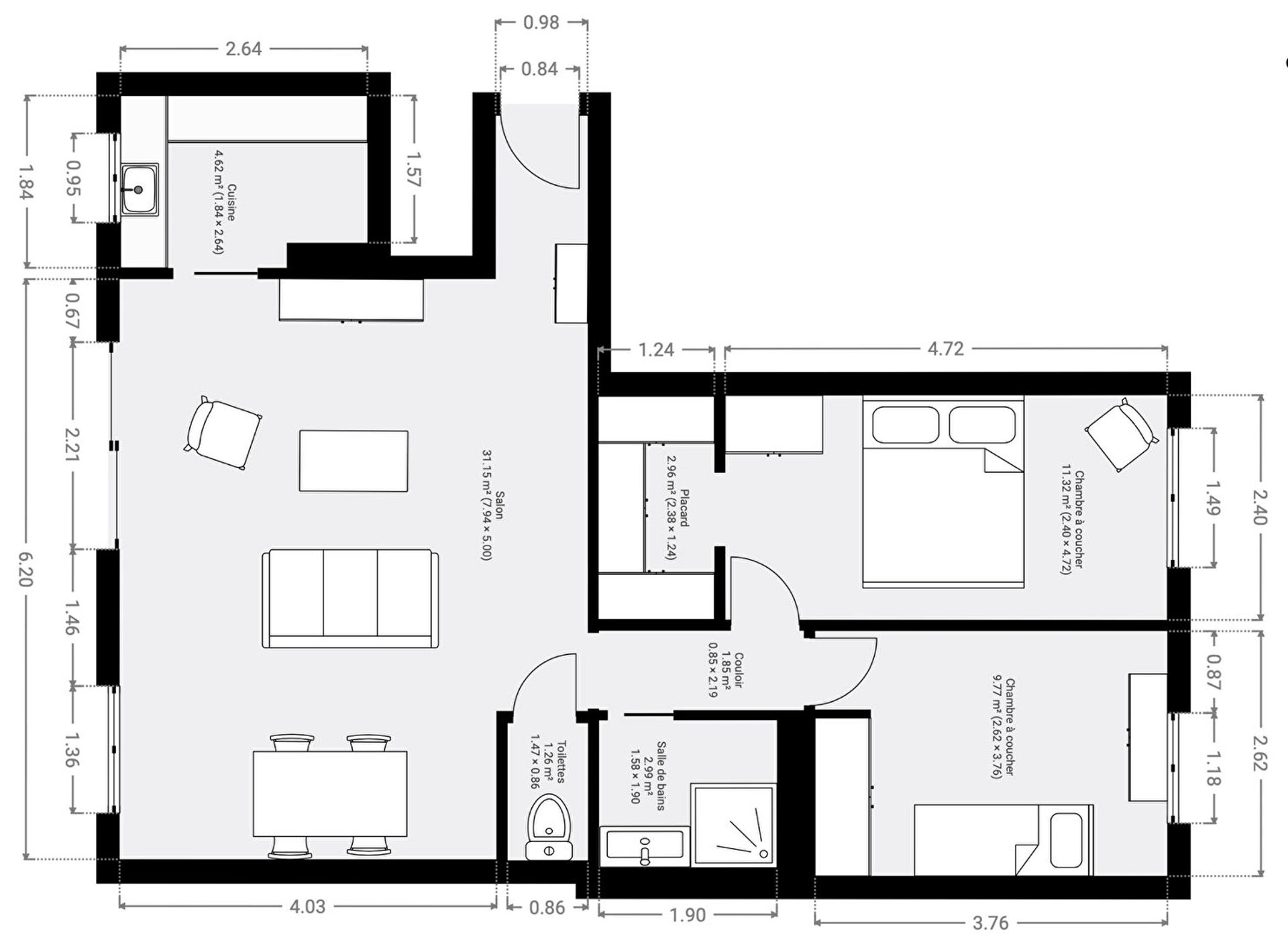
Votre agence FREDELION Daumesnil et heureuse de vous présenter en exclusivité ce très bel appartement 3-4 pièces de 67,55m² (Carrez).

Situé au 8ème étage AVEC ASC d'une copropriété bien entretenue avec gardien, cet appartement est composé d'une entrée avec rangements, d'un vaste double séjour exposé Ouest (possibilité de créer une 3ème chambre), d'une cuisine semie ouverte entièrement aménagée et équipée, de 2 chambres exposées Est dont une avec un très grand dressing, d'une salle de douche et un WC séparé avec lave mains.

Il a bénéficié d'une rénovation récente complète faite avec goût et ne nécessite aucun travaux.

Vous serez séduits par cet appartement clés en mains, bénéficiant d'une luminosité optimale (appartement traversant EST-OUEST), d'une localisation au calme, tout en restant proche des transports (ligne 1 Reuilly-Diderot et 8 Montgallet) et des commerces.

Double vitrage et chauffage collectif.
DPE : C

Une cave complète ce bien

Possibilité d'acquérir une place de parking avec borne électrique, en sus du prix.

Contactez vite Marianna pour une visite : 06.08.55.76.70
Copropriété de 250 lots - dont 230 lots habitation. (Pas de procédure en cours).

Charges annuelles : 3692 euros.
Ce bien fait parti d'une co-propriété de 250 lots. Les charges sont de 3692€ par an. Pas de procédure en cours.
DPE_ passoire énergétique logement extrêmement performant logement extrêmement peu performant consommation (énergie primaire) 178 kWh/m²/an émissions* 29 kgCO2/m²/an
DPE_ * Dont émissions de gaz à effet de serre peu d'émissions de CO2 émissions de CO2 très importantes 29 kgCO2/m²/an
- FREDeLION, c'est...
Chiffre
18
années
d'expertises
Chiffre
4113
avis clients
(MeilleursAgents, Google my business et Opinion System)
Chiffre
120
collaborateurs
à votre service
Votre agence
3 place Félix Eboué, 75012 Paris
01 43 14 70 70

Visiter notre site
Contactez-nous
Pour ce bien
*champs requis
Loading...
Les informations recueillies sur ce formulaire sont enregistrées dans un fichier informatisé par Fredelion pour gérer votre demande de contact. Elles sont conservées pour la durée nécessaire à la gestion de la relation client dans le respect des prescriptions légales applicables et sont destinées au responsable de la publication de ce site : Fredelion.
Conformément à la loi « informatique et libertés », vous pouvez exercer votre droit d'accès aux données vous concernant et les faire rectifier en contactant Fredelion a.daiu@fredelion.com ou en utilisant ce formulaire. Nous vous informons de l’existence de la liste d'opposition au démarchage téléphonique « Bloctel », sur laquelle vous pouvez vous inscrire ici : https://www.bloctel.gouv.fr/
SPI PARIS 12, société au capital de euros. Siège social : 3 Félix Eboué 75012 Paris. N° de TVA intracommunautaire : . RCS PARIS immatriculé(e) 834423998.
Conformément aux articles L611-1 et suivants et R612-1 et suivants du Code de la consommation, le consommateur est informé qu’il a la possibilité de saisir un ou notre médiateur de la consommation, à savoir situé
Barème d'honoraires