Loading...
Fredelion

- PARIS 8 - RUE D'ÉDIMBOURG

397 000 €Honoraires à la charge du vendeur
PARIS 8ème
2 pièce(s)
1 chambre(s)
1 salle(s) de bain
35m²
- Description du bien
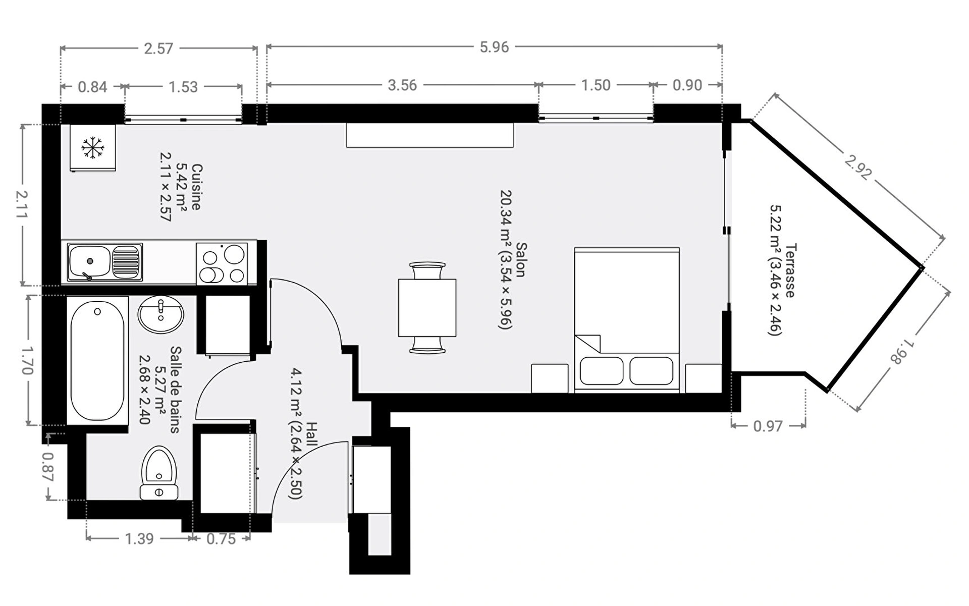
FRÉDELION - VILLAGE EUROPE vous propose cet appartement de 35,46 m² Loi Carrez, situé au rez-de-chaussée avec un extérieur privatif.

Composé comme suit : une entrée, une grande pièce de vie de 26 m² avec une cuisine américaine aménagée et équipée, une salle de bain avec WC.

Au sein d'une magnifique copropriété bien entretenue, avec jardin arboré.
Il vous séduira par ses beaux volumes, son plan optimisé et ses nombreux rangements.

Au coeur du quartier de l'Europe, l'appartement bénéficie de toutes les commodités avoisinantes : sectorisation scolaire, transports, commerces...
Copropriété de 313 lots - dont 125 lots habitation. (Pas de procédure en cours).

Charges annuelles : 1145.52 euros.
Ce bien fait parti d'une co-propriété de 313 lots. Les charges sont de 1145.52€ par an. Pas de procédure en cours.
DPE_ passoire énergétique logement extrêmement performant logement extrêmement peu performant consommation (énergie primaire) 190 kWh/m²/an émissions* 5 kgCO2/m²/an
DPE_ * Dont émissions de gaz à effet de serre peu d'émissions de CO2 émissions de CO2 très importantes 5 kgCO2/m²/an
- FREDeLION, c'est...
Chiffre
18
années
d'expertises
Chiffre
4113
avis clients
(MeilleursAgents, Google my business et Opinion System)
Chiffre
120
collaborateurs
à votre service
Votre agence
26 rue de Turin, 75008 PARIS
01 44 90 90 17

Visiter notre site
Contactez-nous
Pour ce bien
*champs requis
Loading...
Les informations recueillies sur ce formulaire sont enregistrées dans un fichier informatisé par Fredelion pour gérer votre demande de contact. Elles sont conservées pour la durée nécessaire à la gestion de la relation client dans le respect des prescriptions légales applicables et sont destinées au responsable de la publication de ce site : Fredelion.
Conformément à la loi « informatique et libertés », vous pouvez exercer votre droit d'accès aux données vous concernant et les faire rectifier en contactant Fredelion a.daiu@fredelion.com ou en utilisant ce formulaire. Nous vous informons de l’existence de la liste d'opposition au démarchage téléphonique « Bloctel », sur laquelle vous pouvez vous inscrire ici : https://www.bloctel.gouv.fr/
FREDELION PARIS 8 EUROPE - ALEPH TRANSACTIONS SAS, société au capital de 33300.00 euros. Siège social : 28 bd Malesherbes 75008 PARIS. N° de TVA intracommunautaire : FR52882080054. RCS PARIS immatriculé(e) 882080054.
Carte T : CPI75012021000000432. Date de délivrance : NC. Lieu de délivrance : CCI de Paris - ile de France. Caisse de garantie financière : CEGC. N° de caisse de garantie : NC. Adresse de la caisse de garantie : 59 AVENUE Pierre Mendès France 75013 PARIS. Montant de la garantie financière : 839900 euros.
Conformément aux articles L611-1 et suivants et R612-1 et suivants du Code de la consommation, le consommateur est informé qu’il a la possibilité de saisir un ou notre médiateur de la consommation, à savoir situé
Barème d'honoraires