Loading...
Fredelion

- FRANCONVILLE - GARE

750 €/mois CC Loyer hors charges : 615 € Provision sur charges : 135 €
Dépôt de garantie : 1 230 € Honoraires : 420 € dont honoraires d'état des lieux 84 €
FRANCONVILLE
1 pièce(s)
1 salle(s) de bain
28m²
- Description du bien
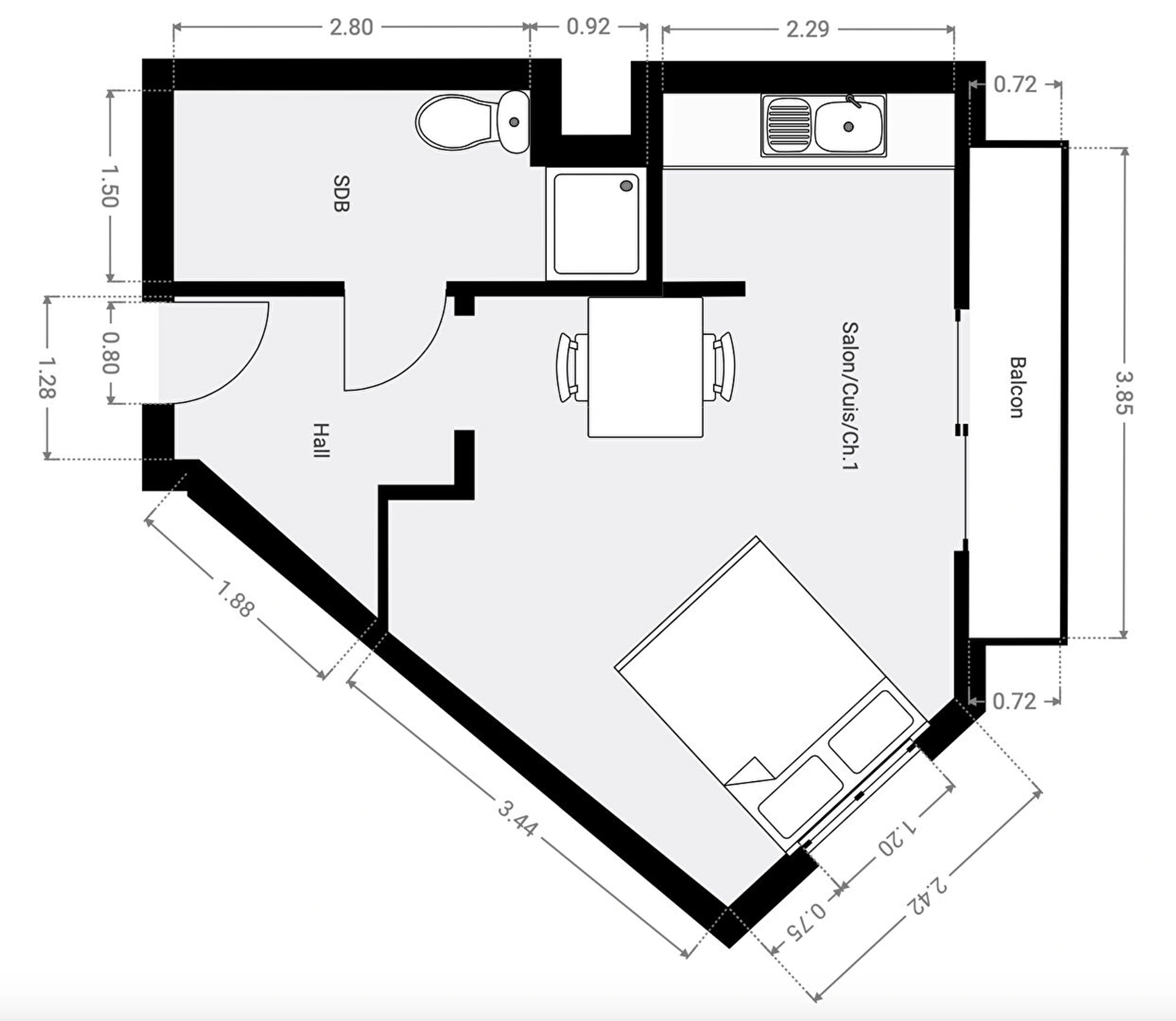
Votre agence FREDéLION Sèvres Lecourbe vous propose en exclusivité, au pied du RER C et de la ligne H permettant de rejoindre Paris en 15 à 20 minutes, un studio en excellent état d'une surface de 28,38 m², situé au 2ème étage avec ascenseur d'une belle copropriété récente de 2013.

Il se compose d'une agréable pièce de vie avec cuisine ouverte, bénéficiant de grandes baies vitrées donnant accès à un balcon dinatoire de 4m², d'une salle d'eau avec WC .

Une cave ainsi qu'une place de parking viennent compléter ce bien.

Honoraires à la charge du locataire :
Pour un bail d'habitation principale soumis à la loi du 06.07.89 : 15 euros/m² TTC.
Pour un bail d'habitation exclu du champ d'application de la loi du 06.07.89 : équivalent à un mois de loyer charges comprises.
Copropriété de 276 lots - dont 68 lots habitation.

Charges annuelles : 1960 euros.
Ce bien fait parti d'une co-propriété de 276 lots. Les charges sont de 1960€ par an. Pas de procédure en cours.
DPE_ passoire énergétique logement extrêmement performant logement extrêmement peu performant consommation (énergie primaire) 126 kWh/m²/an émissions* 23 kgCO2/m²/an
DPE_ * Dont émissions de gaz à effet de serre peu d'émissions de CO2 émissions de CO2 très importantes 23 kgCO2/m²/an
- FREDeLION, c'est...
Chiffre
18
années
d'expertises
Chiffre
4113
avis clients
(MeilleursAgents, Google my business et Opinion System)
Chiffre
120
collaborateurs
à votre service
Votre agence
234 rue de la Convention, 75015 PARIS
01 45 32 40 40

Visiter notre site
Contactez-nous
Pour ce bien
*champs requis
Loading...
Les informations recueillies sur ce formulaire sont enregistrées dans un fichier informatisé par Fredelion pour gérer votre demande de contact. Elles sont conservées pour la durée nécessaire à la gestion de la relation client dans le respect des prescriptions légales applicables et sont destinées au responsable de la publication de ce site : Fredelion.
Conformément à la loi « informatique et libertés », vous pouvez exercer votre droit d'accès aux données vous concernant et les faire rectifier en contactant Fredelion a.daiu@fredelion.com ou en utilisant ce formulaire. Nous vous informons de l’existence de la liste d'opposition au démarchage téléphonique « Bloctel », sur laquelle vous pouvez vous inscrire ici : https://www.bloctel.gouv.fr/
FREDELION PARIS 15 CONVENTION - ALEPH TRANSACTIONS SAS, société au capital de 33300.00 euros. Siège social : 28 bd Malesherbes 75008 PARIS. N° de TVA intracommunautaire : FR52882080054. RCS PARIS immatriculé(e) 882080054.
Carte T : CPI75012021000000432. Date de délivrance : 1101-10-02T10:01:19.000000Z. Lieu de délivrance : CCI de Paris Île-de-France. Caisse de garantie financière : CEGC. N° de caisse de garantie : 29949. Adresse de la caisse de garantie : 59 AVENUE Pierre Mendès France 75013 PARIS. Montant de la garantie financière : 839900 euros.
Conformément aux articles L611-1 et suivants et R612-1 et suivants du Code de la consommation, le consommateur est informé qu’il a la possibilité de saisir un ou notre médiateur de la consommation, à savoir situé
Barème d'honoraires