Loading...
Fredelion

- PARIS 13 - CROULEBARBE

Vendu(e)
PARIS 13ème
2 pièce(s)
1 chambre(s)
1 salle(s) de bain
42m²
- Description du bien
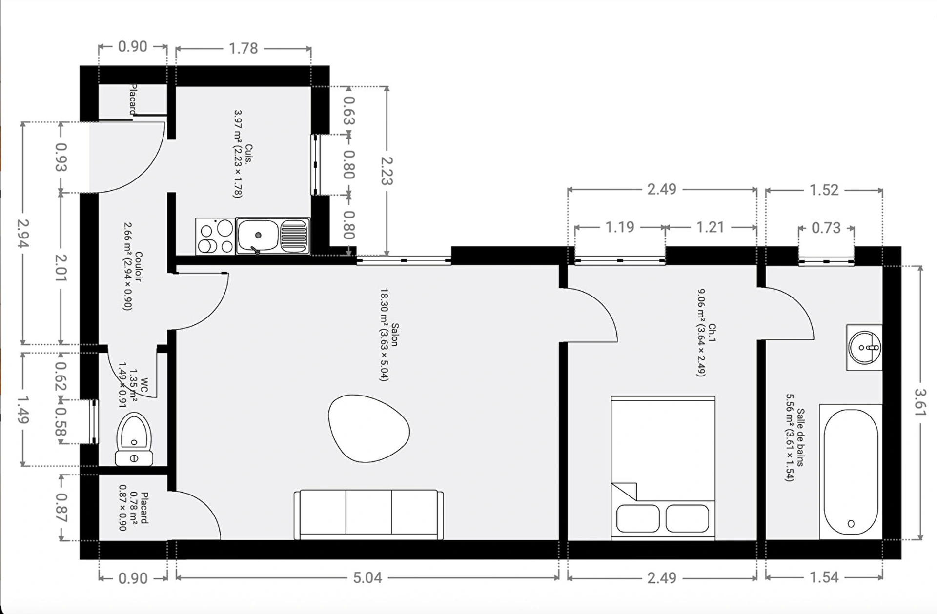
VENDU par votre agence FREDeLION Butte aux Cailles en exclusivité cet appartement de 42 m2 situé dans un immeuble des années 30 à proximité du Square René-Le Gall et de la Butte-aux-Cailles.

Logé au 4 ème étage avec ascenseur d'une copropriété calme et bien entretenue, vous serez séduit par son côté paisible et sa luminosité (exposition ouest).

Il se compose d'une entrée avec placard, un séjour, une cuisine indépendante aménagée, une chambre, une salle de bains, et un WC indépendant.

Une cave complète ce bien.

Résidence sécurisée avec gardiens.

Rafraichissement à prévoir (6.35 % honoraires TTC à la charge de l'acquéreur.)
Copropriété de 111 lots - dont 63 lots habitation. (Pas de procédure en cours).

Charges annuelles : 1176 euros.
David BURSTYN (EI) Agent Commercial - Numéro RSAC : 532280559 - PARIS.
Ce bien fait parti d'une co-propriété de 111 lots. Les charges sont de 1176€ par an. Pas de procédure en cours.
DPE_ logement extrêmement performant logement extrêmement peu performant consommation (énergie primaire) 361 kWh/m²/an émissions* 79 kgCO2/m²/an
DPE_ * Dont émissions de gaz à effet de serre peu d'émissions de CO2 émissions de CO2 très importantes 79 kgCO2/m²/an
- FREDeLION, c'est...
Chiffre
18
années
d'expertises
Chiffre
4113
avis clients
(MeilleursAgents, Google my business et Opinion System)
Chiffre
120
collaborateurs
à votre service
Votre agence
229 rue de Tolbiac, 75013 PARIS
01 83 64 12 13

Visiter notre site
Contactez-nous
Pour ce bien
*champs requis
Loading...
Les informations recueillies sur ce formulaire sont enregistrées dans un fichier informatisé par Fredelion pour gérer votre demande de contact. Elles sont conservées pour la durée nécessaire à la gestion de la relation client dans le respect des prescriptions légales applicables et sont destinées au responsable de la publication de ce site : Fredelion.
Conformément à la loi « informatique et libertés », vous pouvez exercer votre droit d'accès aux données vous concernant et les faire rectifier en contactant Fredelion a.daiu@fredelion.com ou en utilisant ce formulaire. Nous vous informons de l’existence de la liste d'opposition au démarchage téléphonique « Bloctel », sur laquelle vous pouvez vous inscrire ici : https://www.bloctel.gouv.fr/
GS IMMO, société au capital de euros. Siège social : 229 de Tolbiac 75013 PARIS. N° de TVA intracommunautaire : . RCS PARIS immatriculé(e) 922543657.
Conformément aux articles L611-1 et suivants et R612-1 et suivants du Code de la consommation, le consommateur est informé qu’il a la possibilité de saisir un ou notre médiateur de la consommation, à savoir situé
Barème d'honoraires