Loading...
Fredelion

- PARIS 13 - PLACE D'ITALIE

Vendu(e)
PARIS 13ème
2 pièce(s)
1 chambre(s)
31m²
- Description du bien
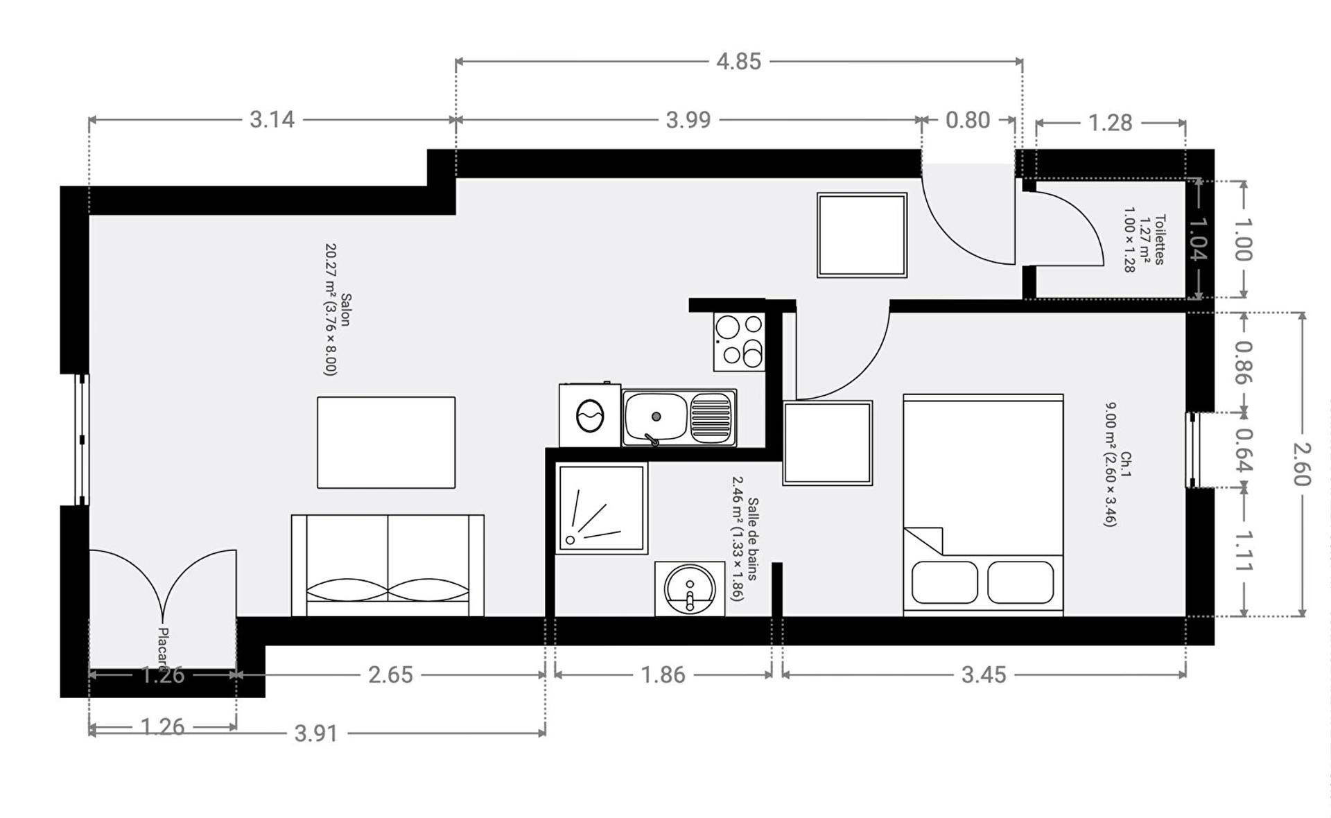
VENDU par votre agence Fredélion Butte-aux-Cailles ce magnifique deux pièces de 30 m2 Carrez (31 m2 au sol) situé au sixième et dernier étage d'un bel immeuble haussmannien de la Place d'Italie.

Il se compose d'un agréable séjour avec vue imprenable sur la Place, d'une cuisine semi-ouverte, et d'une chambre indépendante dont la lucarne permet d'apprécier les toits de Paris.

Dans une copropriété saine et tranquille comportant seulement dix lots d'habitation, ce petit écrin privilégié bénéficie d'un ensemble d'atouts qui en font un bien très rare sur le marché : calme, lumineux, traversant, sans vis-à-vis, et entièrement refait à neuf en 2023, il ne reste plus qu'à y poser vos valises.

Une cave complète cette pépite à visiter sans tarder !
(3.85 % honoraires TTC à la charge de l'acquéreur.)
Copropriété de 21 lots - dont 10 lots habitation.

Charges annuelles : 1600 euros.
David BURSTYN (EI) Agent Commercial - Numéro RSAC : 532280559 - PARIS.
Ce bien fait parti d'une co-propriété de 21 lots. Les charges sont de 1600€ par an. Pas de procédure en cours.
DPE_ passoire énergétique logement extrêmement performant logement extrêmement peu performant consommation (énergie primaire) 288 kWh/m²/an émissions* 9 kgCO2/m²/an
DPE_ * Dont émissions de gaz à effet de serre peu d'émissions de CO2 émissions de CO2 très importantes 9 kgCO2/m²/an
- FREDeLION, c'est...
Chiffre
18
années
d'expertises
Chiffre
4113
avis clients
(MeilleursAgents, Google my business et Opinion System)
Chiffre
120
collaborateurs
à votre service
Votre agence
229 rue de Tolbiac, 75013 PARIS
01 83 64 12 13

Visiter notre site
Contactez-nous
Pour ce bien
*champs requis
Loading...
Les informations recueillies sur ce formulaire sont enregistrées dans un fichier informatisé par Fredelion pour gérer votre demande de contact. Elles sont conservées pour la durée nécessaire à la gestion de la relation client dans le respect des prescriptions légales applicables et sont destinées au responsable de la publication de ce site : Fredelion.
Conformément à la loi « informatique et libertés », vous pouvez exercer votre droit d'accès aux données vous concernant et les faire rectifier en contactant Fredelion a.daiu@fredelion.com ou en utilisant ce formulaire. Nous vous informons de l’existence de la liste d'opposition au démarchage téléphonique « Bloctel », sur laquelle vous pouvez vous inscrire ici : https://www.bloctel.gouv.fr/
GS IMMO, société au capital de euros. Siège social : 229 de Tolbiac 75013 PARIS. N° de TVA intracommunautaire : . RCS PARIS immatriculé(e) 922543657.
Conformément aux articles L611-1 et suivants et R612-1 et suivants du Code de la consommation, le consommateur est informé qu’il a la possibilité de saisir un ou notre médiateur de la consommation, à savoir situé
Barème d'honoraires