Loading...
Fredelion

- PARIS 15 - PASTEUR / MONTPARNASSE

Vendu(e)
PARIS 15ème
6 pièce(s)
4 chambre(s)
2 salle(s) de bain
131m²
- Description du bien
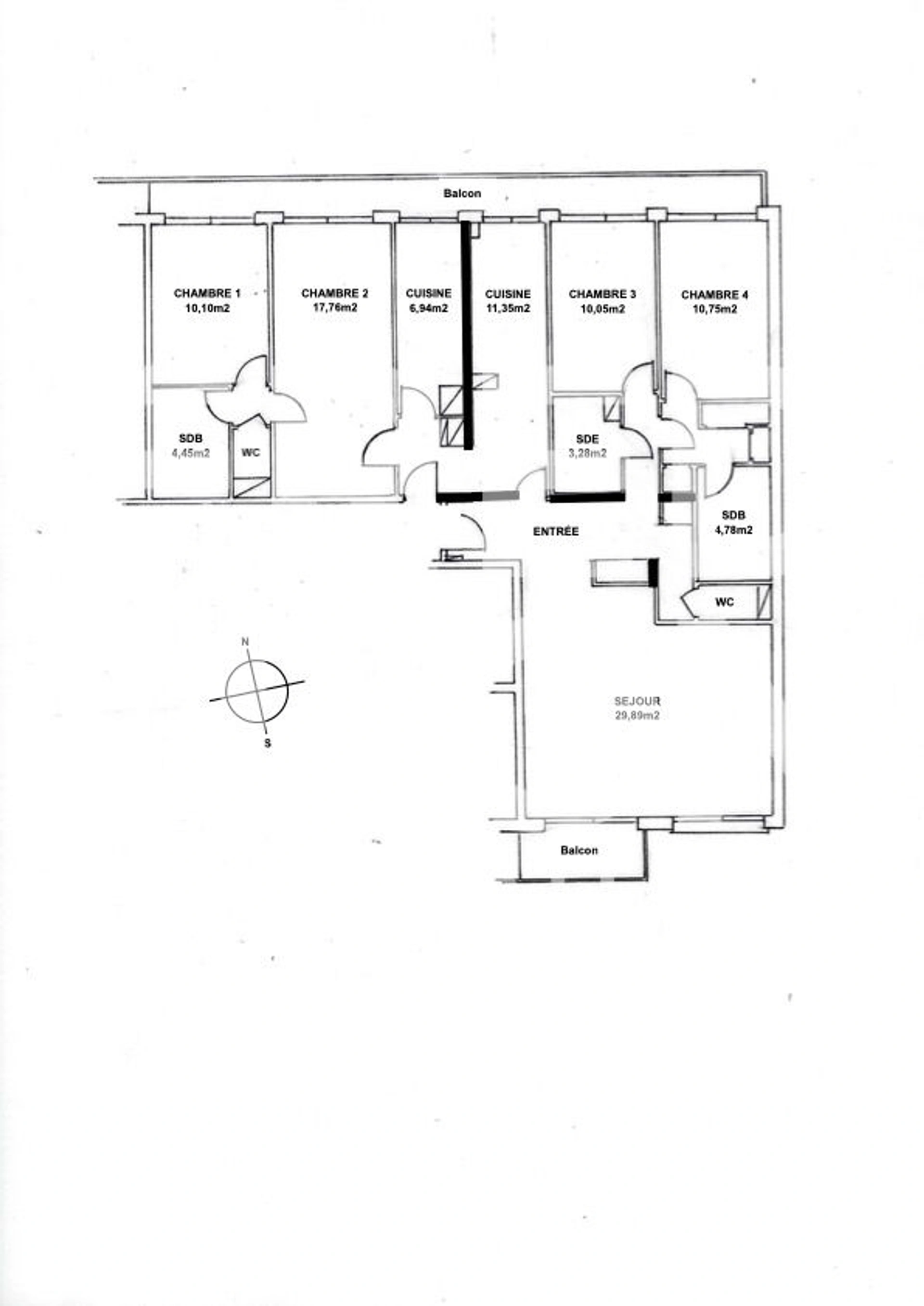
Votre agence immobilière FREDéLION Paris 15 Sèvres Lecourbe vous présente en exclusivité, à deux pas de la Gare Montparnasse (ligne 4, 6, 12 et 13) et du métro Pasteur (ligne 6 et 12), Rue d'Arsonval, ce bel appartement de 6 pièces de 130,59 m² carrez dans une copropriété bien entretenue de 1973.

Au 4ème étage avec ascenseur, cet appartement familial se compose ainsi : une entrée, un double séjour donnant accès à un balcon exposé Sud, une cuisine indépendante, une seconde cuisine pouvant être aménagée en espace buanderie ou salle de bain, quatre chambres donnant sur balcon filant, une salle d'eau, deux salle de bains et deux wc indépendants.

Plan modulable, nombreux rangements, deux caves et deux parkings en sous-sol complètent le bien.
Des rénovations sont à prévoir

Appartement calme et traversant exposé Sud sur le séjour.
Copropriété de standing, sécurisée avec gardien à proximité des commerces de la rue Vaugirard et du Boulevard Pasteur.
Charges mensuelles : 614 euros comprenant chauffage gaz de ville, eau chaude, gardien, entretien des parties communes, de l'ascenseur et des jardins.

Deux lots réunis, possibilité de les séparer à nouveau pour former un quatre pièces de 86m2 et un deux pièces 43m2.

Profession libérale autorisée
(3.52 % honoraires TTC à la charge de l'acquéreur.)
Copropriété de 240 lots - dont 69 lots habitation. (Pas de procédure en cours).

Charges annuelles : 7368 euros.
Ce bien fait parti d'une co-propriété de 240 lots. Les charges sont de 7368€ par an. Pas de procédure en cours.
DPE_ passoire énergétique logement extrêmement performant logement extrêmement peu performant consommation (énergie primaire) 127 kWh/m²/an émissions* 19 kgCO2/m²/an
DPE_ * Dont émissions de gaz à effet de serre peu d'émissions de CO2 émissions de CO2 très importantes 19 kgCO2/m²/an
- FREDeLION, c'est...
Chiffre
18
années
d'expertises
Chiffre
4113
avis clients
(MeilleursAgents, Google my business et Opinion System)
Chiffre
120
collaborateurs
à votre service
Votre agence
48 rue Lecourbe, 75015 PARIS
01 85 61 85 61

Visiter notre site
Contactez-nous
Pour ce bien
*champs requis
Loading...
Les informations recueillies sur ce formulaire sont enregistrées dans un fichier informatisé par Fredelion pour gérer votre demande de contact. Elles sont conservées pour la durée nécessaire à la gestion de la relation client dans le respect des prescriptions légales applicables et sont destinées au responsable de la publication de ce site : Fredelion.
Conformément à la loi « informatique et libertés », vous pouvez exercer votre droit d'accès aux données vous concernant et les faire rectifier en contactant Fredelion a.daiu@fredelion.com ou en utilisant ce formulaire. Nous vous informons de l’existence de la liste d'opposition au démarchage téléphonique « Bloctel », sur laquelle vous pouvez vous inscrire ici : https://www.bloctel.gouv.fr/
FREDELION PARIS 15 SEVRES-LECOURBE - ALEPH TRANSACTIONS SAS, société au capital de 33300.00 euros. Siège social : 28 bd Malesherbes 75008 PARIS. N° de TVA intracommunautaire : FR52882080054. RCS PARIS immatriculé(e) 882080054.
Carte T : CPI75012021000000432. Date de délivrance : 0202-01-01T15:53:38.000000Z. Lieu de délivrance : Paris - IDF. Caisse de garantie financière : CEGC. N° de caisse de garantie : 30449. Adresse de la caisse de garantie : 59 AVENUE Pierre Mendès France 75013 PARIS. Montant de la garantie financière : 839900 euros.
Conformément aux articles L611-1 et suivants et R612-1 et suivants du Code de la consommation, le consommateur est informé qu’il a la possibilité de saisir un ou notre médiateur de la consommation, à savoir situé
Barème d'honoraires