Loading...
Fredelion

- Issy les Moulineaux - Île Saint-Germain

750 000 €dont 3,45% TTC à la charge de l'acquéreur725 000 € hors honoraires
ISSY LES MOULINEAUX
3 pièce(s)
2 chambre(s)
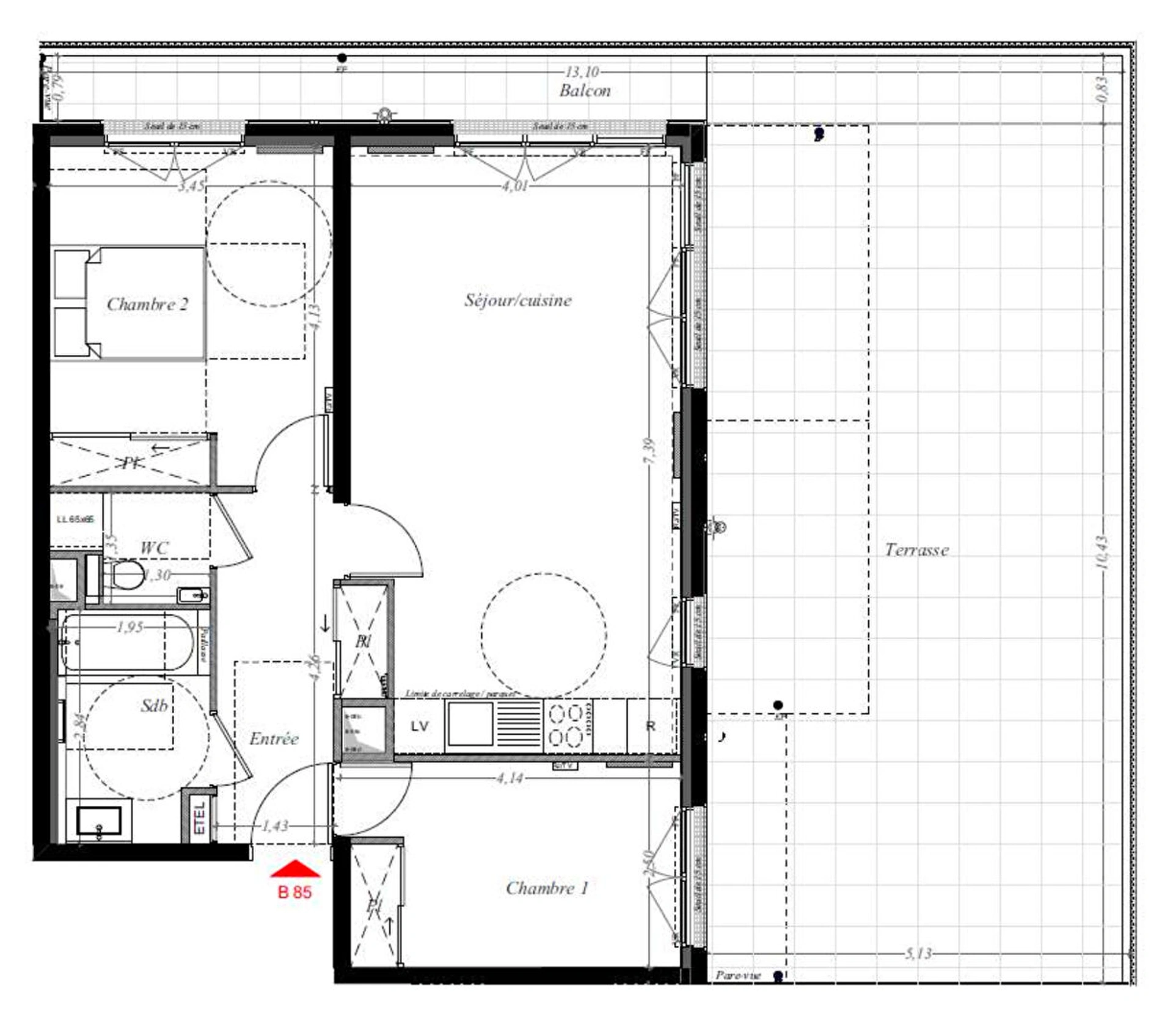
67m²
- Description du bien
Idéalement situé, à proximité immédiate de nombreux transports (Bus, Tramways, RER C) , et au pied de la future ligne 15 du métro.
L'agence FREDeLION Saint-Charles vous propose ce bel appartement familial de 67 m² au sein d'une résidence récente de standing à deux pas des commerces, écoles et crèches

Il bénéficie d'une exceptionnelle terrasse de 65 m² exposé plein sud, offrant une belle vue dégagée sur la Tour Eiffel.

L'appartement se compose d'une entrée avec placard, d'un vaste double séjour lumineux bénéficiant d'une double exposition et ouvrant sur la terrasse, d'une cuisine ouverte Schmidt entièrement équipée, d'une chambre parentale très calme avec rangements intégrés et accès à un balcon, d'une seconde chambre donnant sur la terrasse, d'une grande salle de bains, ainsi que de WC séparés avec buanderie intégrée.

Les charges mensuelles de 215 euros comprennent l'eau froide, l'eau chaude, le chauffage, l'ascenseur et l'entretien des parties communes.

L'appartement est classé DPE C.

Une cave complète ce bien.

Un emplacement de parking est disponible en supplément au prix de 25 000 euros. (3.45 % honoraires TTC à la charge de l'acquéreur.)
DPE_ passoire énergétique logement extrêmement performant logement extrêmement peu performant consommation (énergie primaire) 72 kWh/m²/an émissions* 13 kgCO2/m²/an
DPE_ * Dont émissions de gaz à effet de serre peu d'émissions de CO2 émissions de CO2 très importantes 13 kgCO2/m²/an
- FREDeLION, c'est...
Chiffre
18
années
d'expertises
Chiffre
4113
avis clients
(MeilleursAgents, Google my business et Opinion System)
Chiffre
120
collaborateurs
à votre service
Votre agence
127 rue Saint-Charles, 75015 PARIS
01 82 83 40 00

Visiter notre site
Contactez-nous
Pour ce bien
*champs requis
Loading...
Les informations recueillies sur ce formulaire sont enregistrées dans un fichier informatisé par Fredelion pour gérer votre demande de contact. Elles sont conservées pour la durée nécessaire à la gestion de la relation client dans le respect des prescriptions légales applicables et sont destinées au responsable de la publication de ce site : Fredelion.
Conformément à la loi « informatique et libertés », vous pouvez exercer votre droit d'accès aux données vous concernant et les faire rectifier en contactant Fredelion a.daiu@fredelion.com ou en utilisant ce formulaire. Nous vous informons de l’existence de la liste d'opposition au démarchage téléphonique « Bloctel », sur laquelle vous pouvez vous inscrire ici : https://www.bloctel.gouv.fr/
DALIN BUSSAT DUNNE IMMOBILIER, société au capital de 10000.00 euros. Siège social : 127 Saint-Charles 75015 PARIS. N° de TVA intracommunautaire : NC. RCS PARIS immatriculé(e) 822075156.
Carte T : CPI 7501 2016 000 012 958. Date de délivrance : 0220-01-01T15:55:19.000000Z. Lieu de délivrance : Paris - IDF. Caisse de garantie financière : CEGC. N° de caisse de garantie : 29950TRA201. Adresse de la caisse de garantie : 16 rue Hoche - Tour Kupka B 92919 LA DEFENSE. Montant de la garantie financière : 220000 euros.
Conformément aux articles L611-1 et suivants et R612-1 et suivants du Code de la consommation, le consommateur est informé qu’il a la possibilité de saisir un ou notre médiateur de la consommation, à savoir situé
Barème d'honoraires