Loading...
Fredelion

- Prix de l'immobilier Paris au m²

- Levallois - Centre Aquatique - Magnifique 2 pièces avec balcon

499 000 €dont 5,05% TTC à la charge de l'acquéreur475 000 € hors honoraires
LEVALLOIS PERRET
2 pièce(s)
1 chambre(s)
54m²
- Description du bien
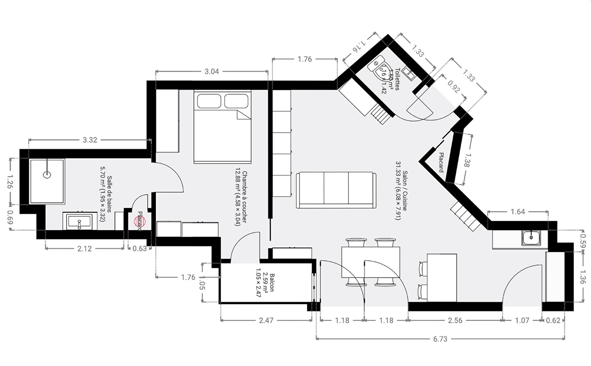
Vivre à Levallois, c'est choisir une élégance urbaine où le confort du quotidien se conjugue à la sérénité. A deux pas du Centre Aquatique, dans un immeuble de standing, cet appartement de 54,36 m² offre un art de vivre lumineux et résolument moderne, pensé pour celles et ceux qui aiment conjuguer dynamisme et bien-être.

Dès l'entrée, les volumes séduisent. Le double séjour baigné de lumière grâce à son exposition Est s'ouvre sur un balcon agréable, idéal pour savourer un café au soleil levant. La cuisine américaine, aménagée avec soin, prolonge naturellement l'espace de vie et invite à la convivialité. La suite parentale, au calme, offre un véritable cocon, tandis que les prestations rénovées et la décoration contemporaine renforcent la sensation d'harmonie. Situé au 2ème étage avec ascenseur, l'appartement dispose d'une cave, des atouts précieux en coeur de ville.

Le quartier du Centre Aquatique est recherché pour sa qualité de vie : commerces de proximité, écoles, métro Anatole France et gare de Clichy-Levallois accessibles rapidement. Tout est réuni pour un quotidien fluide et agréable.

Un appartement lumineux, spacieux et prêt à accueillir votre projet de vie.
Contactez l'agence FREDeLION Levallois pour organiser votre visite. (5.05 % honoraires TTC à la charge de l'acquéreur.)
Copropriété de 75 lots.

Charges annuelles : 2096 euros.
Ce bien fait parti d'une co-propriété de 75 lots. Les charges sont de 2096€ par an. Pas de procédure en cours.
DPE_ passoire énergétique logement extrêmement performant logement extrêmement peu performant consommation (énergie primaire) 139 kWh/m²/an émissions* 5 kgCO2/m²/an
DPE_ * Dont émissions de gaz à effet de serre peu d'émissions de CO2 émissions de CO2 très importantes 5 kgCO2/m²/an
- FREDeLION, c'est...
Chiffre
18
années
d'expertises
Chiffre
4113
avis clients
(MeilleursAgents, Google my business et Opinion System)
Chiffre
120
collaborateurs
à votre service
Votre agence
19 rue Louise Michel, 92300 Levallois Perret
01 84 20 04 00

Visiter notre site
Contactez-nous
Pour ce bien
*champs requis
Loading...
Les informations recueillies sur ce formulaire sont enregistrées dans un fichier informatisé par Fredelion pour gérer votre demande de contact. Elles sont conservées pour la durée nécessaire à la gestion de la relation client dans le respect des prescriptions légales applicables et sont destinées au responsable de la publication de ce site : Fredelion.
Conformément à la loi « informatique et libertés », vous pouvez exercer votre droit d'accès aux données vous concernant et les faire rectifier en contactant Fredelion a.daiu@fredelion.com ou en utilisant ce formulaire. Nous vous informons de l’existence de la liste d'opposition au démarchage téléphonique « Bloctel », sur laquelle vous pouvez vous inscrire ici : https://www.bloctel.gouv.fr/
ALEPH TRANSACTIONS, société au capital de 33000.00 euros. Siège social : 19 Louise Michel 92300 Levallois Perret. N° de TVA intracommunautaire : FR52882080054. RCS PARIS immatriculé(e) 882080054.
Carte T : CPI75012021000000432. Date de délivrance : NC. Lieu de délivrance : CCI de Paris Île-de-France. Caisse de garantie financière : CEGC. N° de caisse de garantie : 30991TRA231. Adresse de la caisse de garantie : sis 16 rue Hoche - Tour Kupka B - 92919 LA DEFENSE CEDEX. Montant de la garantie financière : NC.
Conformément aux articles L611-1 et suivants et R612-1 et suivants du Code de la consommation, le consommateur est informé qu’il a la possibilité de saisir un ou notre médiateur de la consommation, à savoir situé
Barème d'honoraires