Loading...
Fredelion

- Levallois-Perret - Hôtel de Ville-Planchette

625 000 €dont 4,17% TTC à la charge de l'acquéreur600 000 € hors honoraires
LEVALLOIS PERRET
3 pièce(s)
2 chambre(s)
66m²
- Description du bien
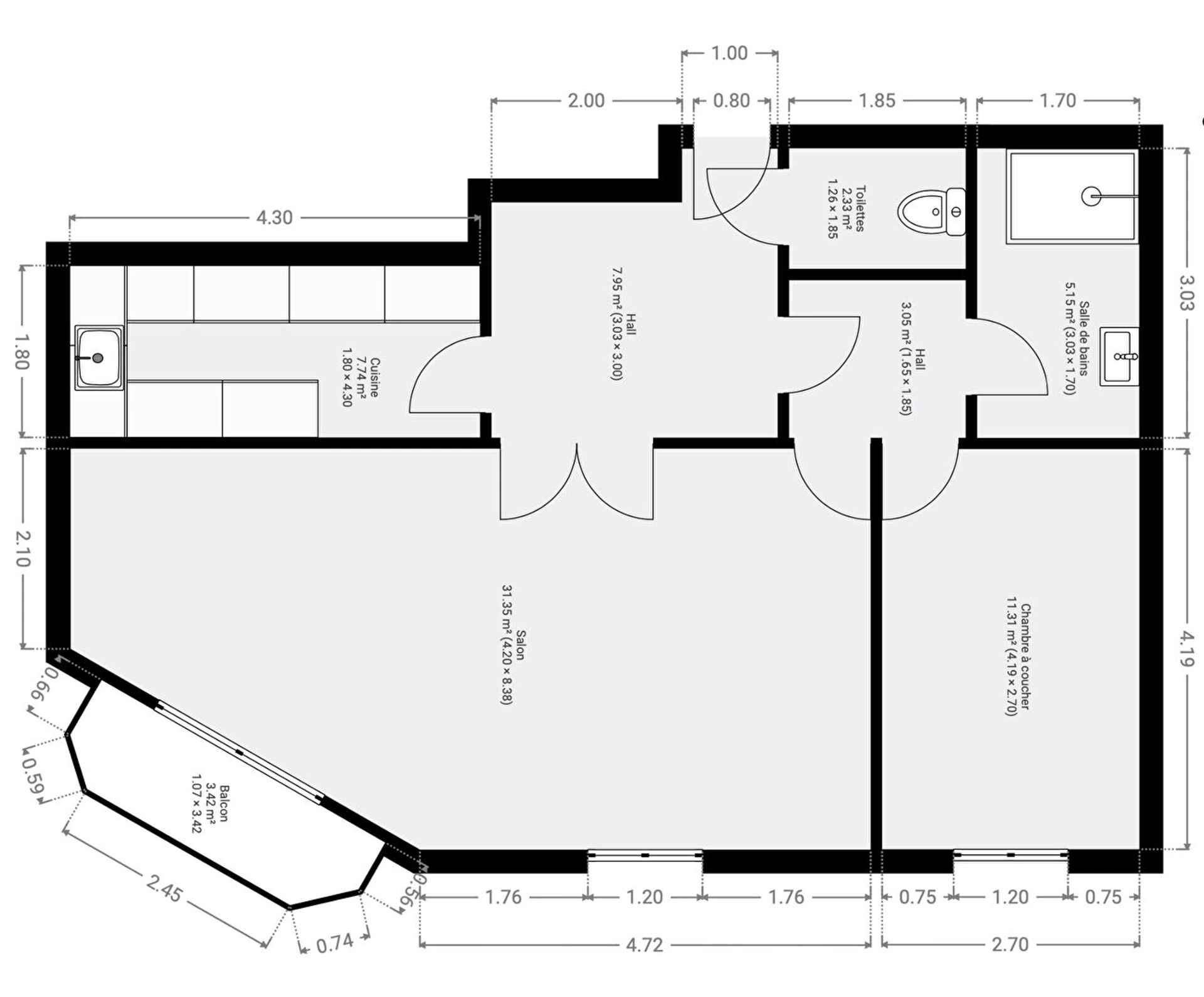
FREDéLION - NEUILLY-SUR-SEINE vous propose cet appartement de 66 m² Loi Carrez , situé au 4ème étage avec ascenseur d'un immeuble de 1999 très bien tenu, à proximité immédiate du Parc de la Planchette, à Levallois.

Composé comme suit : une entrée avec placards de rangement, un séjour bénéficiant d'une double exposition Est et Sud donnant sur balcon, une cuisine indépendante (possibilité d'ouverture sur le séjour), une chambre (possibilité 2), une salle de bains, toilettes séparés.
Vous apprécierez son plan parfaitement optimisé.
DPE D.
Une cave est vendue avec l'appartement.
Possibilité de place de parking en sus du prix.
Local vélos dans la copropriété.

L'appartement bénéficie de toutes les commodités avoisinantes :
Transports : M° Anatole France - Ligne 3 (8 minutes à pied) et M° Pont de Levallois- Bécon ? Ligne 3 (5 minutes à pied), Bus 94 et 274 (2 minutes à pied).
Commerces : Boulangeries, supermarchés, pharmacies, cafés (2 minutes à pied).
(4.17 % honoraires TTC à la charge de l'acquéreur.)
Copropriété de 133 lots - dont 44 lots habitation. (Pas de procédure en cours).

Charges annuelles : 2184 euros.
Ce bien fait parti d'une co-propriété de 133 lots. Les charges sont de 2184€ par an. Pas de procédure en cours.
DPE_ passoire énergétique logement extrêmement performant logement extrêmement peu performant consommation (énergie primaire) 244 kWh/m²/an émissions* 7 kgCO2/m²/an
DPE_ * Dont émissions de gaz à effet de serre peu d'émissions de CO2 émissions de CO2 très importantes 7 kgCO2/m²/an
- FREDeLION, c'est...
Chiffre
18
années
d'expertises
Chiffre
4113
avis clients
(MeilleursAgents, Google my business et Opinion System)
Chiffre
120
collaborateurs
à votre service
Votre agence
56 rue de Sablonville, 92200 Neuilly-sur-Seine
01 81 80 92 92

Visiter notre site
Contactez-nous
Pour ce bien
*champs requis
Loading...
Les informations recueillies sur ce formulaire sont enregistrées dans un fichier informatisé par Fredelion pour gérer votre demande de contact. Elles sont conservées pour la durée nécessaire à la gestion de la relation client dans le respect des prescriptions légales applicables et sont destinées au responsable de la publication de ce site : Fredelion.
Conformément à la loi « informatique et libertés », vous pouvez exercer votre droit d'accès aux données vous concernant et les faire rectifier en contactant Fredelion a.daiu@fredelion.com ou en utilisant ce formulaire. Nous vous informons de l’existence de la liste d'opposition au démarchage téléphonique « Bloctel », sur laquelle vous pouvez vous inscrire ici : https://www.bloctel.gouv.fr/
FREDELION NEUILLY - ALEPH TRANSACTIONS SAS, société au capital de 33300.00 euros. Siège social : 28 bd Malesherbes 75008 PARIS. N° de TVA intracommunautaire : FR52882080054. RCS PARIS immatriculé(e) 882080054.
Carte T : CPI75012021000000432. Date de délivrance : 2022-01-01T15:57:40.000000Z. Lieu de délivrance : Paris - IDF. Caisse de garantie financière : CEGC. N° de caisse de garantie : 29952TRA201. Adresse de la caisse de garantie : 59 AVENUE Pierre Mendès France 75013 PARIS. Montant de la garantie financière : 839900 euros.
Conformément aux articles L611-1 et suivants et R612-1 et suivants du Code de la consommation, le consommateur est informé qu’il a la possibilité de saisir un ou notre médiateur de la consommation, à savoir AME CONSO situé 197 Boulevard Saint-Germain - 75007 PARIS. - site : http://www.mediationconso-ame.com/
Barème d'honoraires