Loading...
Fredelion

- PANTIN - OURCQ

254 000 €dont 6,28% TTC à la charge de l'acquéreur239 000 € hors honoraires
PANTIN
2 pièce(s)
1 chambre(s)
1 salle(s) de bain
40m²
- Description du bien
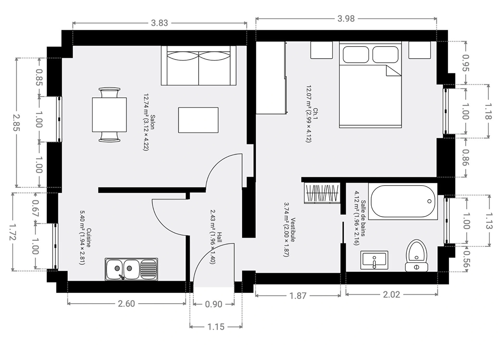
Votre agence FREDéLION Gambetta vous présente en EXCLUSIVITÉ, à PANTIN, dans le quartier vivant de OURCQ, plus précisément rue Montgolfier, un appartement de 2 pièces d'une superficie de 40 m².

Au sein d'un immeuble ancien parfaitement entretenue, cet appartement traversant situé au rez-de-chaussée bénéficie d'un environnement calme et d'une belle luminosité tout au long de la journée.

Il se compose d'un séjour avec cuisine semi-ouverte, d'une grande chambre sur cours, d'une salle de bain avec WC et un jardin partagé.

Tous les éléments recherchés sont réunis : Calme, Luminosité, Fonctionnalité, Jardin.

A deux pas des commerces, des métros ligne 5, ce bien bénéficie d'une localisation idéale et représente une opportunité parfaite pour un premier achat, un pied-à-terre ou un investissement locatif. Dans une copropriété de 5 lots parfaitement entretenue avec jardin partagé.

Contactez votre agence FREDéLION Gambetta ! (6.28 % honoraires TTC à la charge de l'acquéreur.)
Copropriété de 5 lots - dont 5 lots habitation. (Pas de procédure en cours).

Charges annuelles : 870 euros.
Ce bien fait parti d'une co-propriété de 5 lots. Les charges sont de 870€ par an. Pas de procédure en cours.
DPE_ logement extrêmement performant logement extrêmement peu performant consommation (énergie primaire) 557 kWh/m²/an émissions* 18 kgCO2/m²/an
DPE_ * Dont émissions de gaz à effet de serre peu d'émissions de CO2 émissions de CO2 très importantes 18 kgCO2/m²/an
- FREDeLION, c'est...
Chiffre
18
années
d'expertises
Chiffre
4113
avis clients
(MeilleursAgents, Google my business et Opinion System)
Chiffre
120
collaborateurs
à votre service
Votre agence
273 rue des Pyrénées, 75020 PARIS
01 40 33 30 00

Visiter notre site
Contactez-nous
Pour ce bien
*champs requis
Loading...
Les informations recueillies sur ce formulaire sont enregistrées dans un fichier informatisé par Fredelion pour gérer votre demande de contact. Elles sont conservées pour la durée nécessaire à la gestion de la relation client dans le respect des prescriptions légales applicables et sont destinées au responsable de la publication de ce site : Fredelion.
Conformément à la loi « informatique et libertés », vous pouvez exercer votre droit d'accès aux données vous concernant et les faire rectifier en contactant Fredelion a.daiu@fredelion.com ou en utilisant ce formulaire. Nous vous informons de l’existence de la liste d'opposition au démarchage téléphonique « Bloctel », sur laquelle vous pouvez vous inscrire ici : https://www.bloctel.gouv.fr/
FREDELION PARIS 20 GAMBETTA - ALEPH TRANSACTIONS SAS, société au capital de 33300.00 euros. Siège social : 28 bd Malesherbes 75008 PARIS. N° de TVA intracommunautaire : FR52882080054. RCS PARIS immatriculé(e) 882080054.
Carte T : CPI75012021000000432. Date de délivrance : 2002-01-11T15:57:07.000000Z. Lieu de délivrance : Paris - IDF. Caisse de garantie financière : CEGC. N° de caisse de garantie : 22906TRA201. Adresse de la caisse de garantie : 59 AVENUE Pierre Mendès France 75013 PARIS. Montant de la garantie financière : 839900 euros.
Conformément aux articles L611-1 et suivants et R612-1 et suivants du Code de la consommation, le consommateur est informé qu’il a la possibilité de saisir un ou notre médiateur de la consommation, à savoir situé
Barème d'honoraires