Loading...
Fredelion

- BUTTES CHAUMONT - PARIS 19

230 000 €Honoraires à la charge du vendeur
PARIS 19ème
1 pièce(s)
23m²
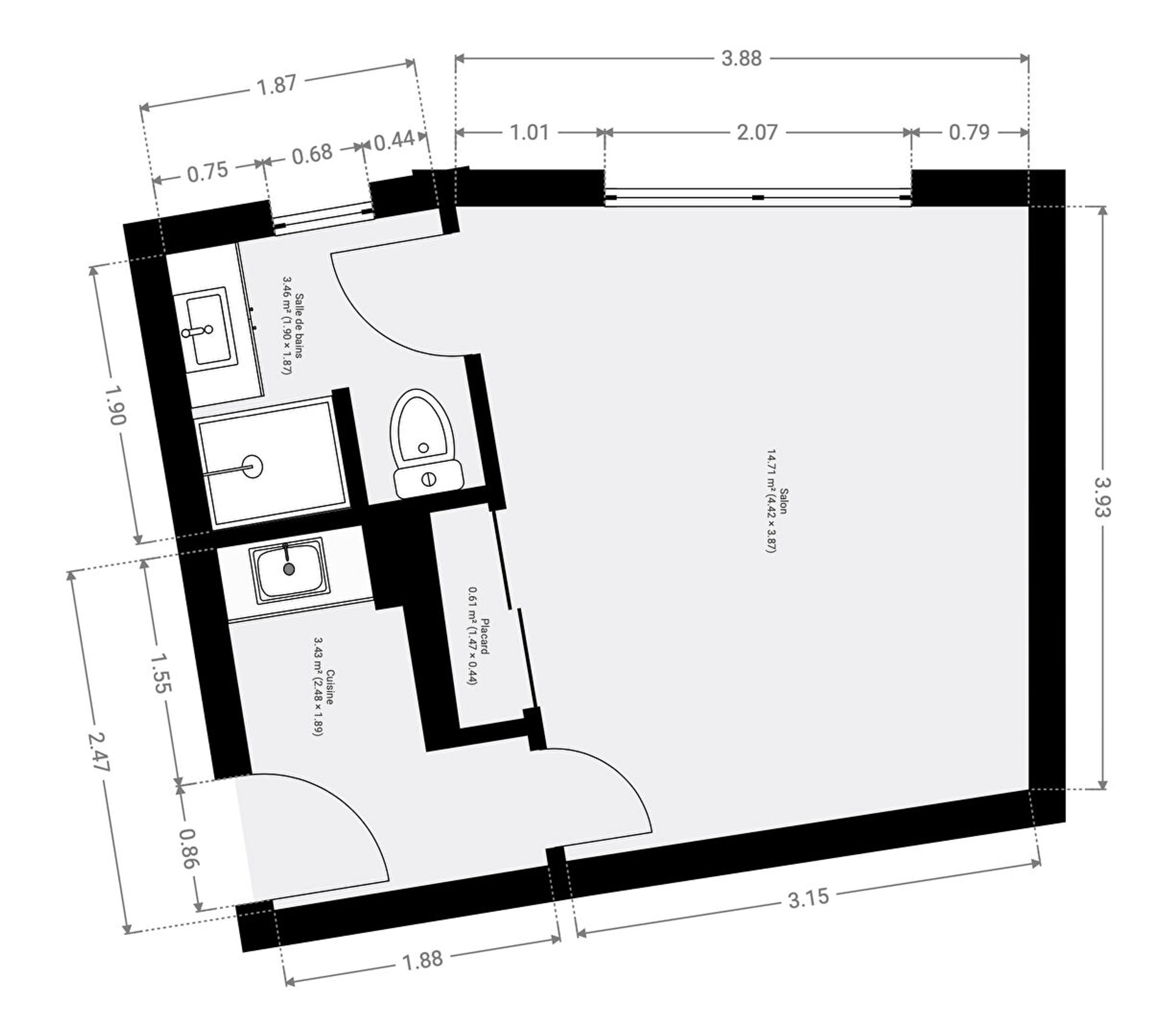
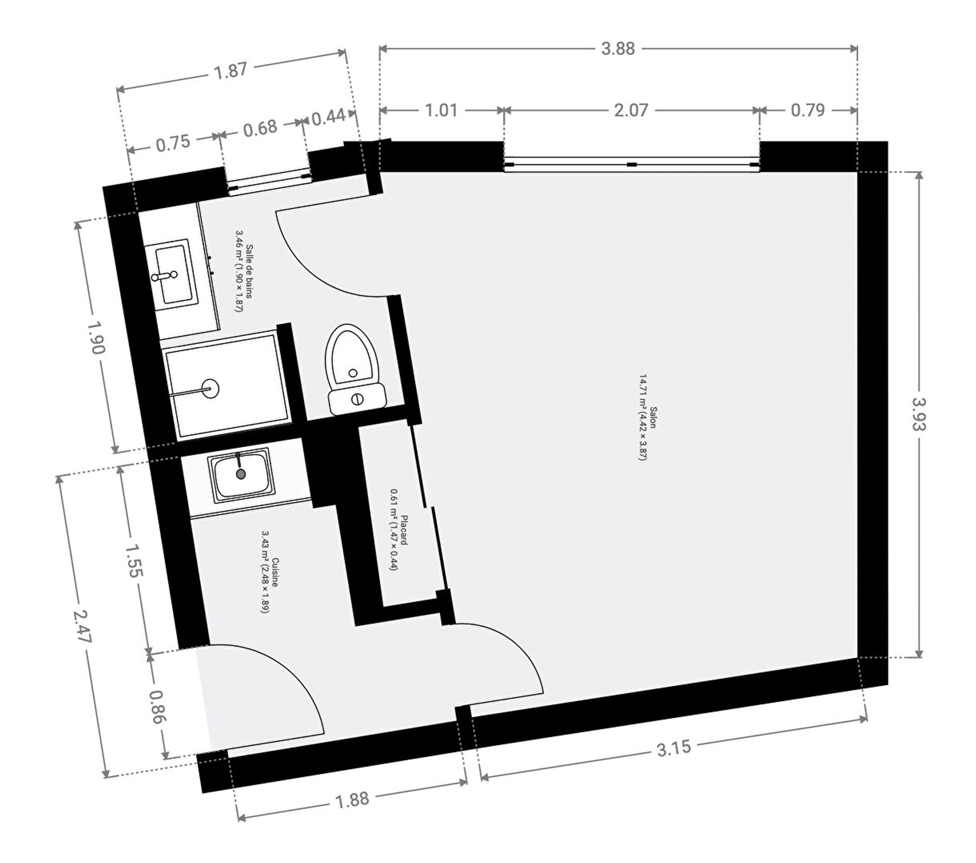
- Description du bien
Votre agence FREDéLION Buttes-Chaumont vous propose ce charmant studio de 23 m², idéalement situé à quelques pas seulement du parc des Buttes-Chaumont.

Situé au 3? étage avec ascenseur d'un immeuble récent construit en 2000, parfaitement entretenu et sécurisé, cet appartement bénéficie d'un cadre de vie confortable et recherché, rare dans le secteur.

Le bien offre une distribution optimisée sans perte d'espace et se compose d'une entrée avec rangements, d'une agréable pièce de vie lumineuse, d'un espace cuisine fonctionnel, ainsi que d'une salle d'eau avec WC.

Atout particulièrement apprécié pour ce type de surface : une cave complète le bien, offrant un espace de stockage supplémentaire au quotidien.

Vous profiterez d'un environnement calme et résidentiel, tout en étant à proximité immédiate des commerces de quartier, restaurants, transports (métro et bus) et bien sûr du parc des Buttes-Chaumont, véritable poumon vert du 19? arrondissement.

L'immeuble récent, bien entretenu et bien géré, constitue un véritable avantage : confort moderne, parties communes soignées et copropriété sécurisée.

Grâce à son emplacement recherché, son agencement optimisé et la qualité de la copropriété, ce bien représente une opportunité idéale pour un premier achat, un pied-à-terre parisien ou un investissement locatif sécurisé.

L'agence FREDéLION Buttes-Chaumont, située au 35 avenue Simon Bolivar, se tient à votre disposition pour toute information complémentaire ou pour organiser une visite.

Copropriété : 445 lots dont 134 lots d'habitation
Pas de procédure en cours
Charges annuelles : 1 000 euros

Copropriété de 445 lots - dont 134 lots habitation.

Charges annuelles : 1000 euros.
Ce bien fait parti d'une co-propriété de 445 lots. Les charges sont de 1000€ par an. Pas de procédure en cours.
DPE_ passoire énergétique logement extrêmement performant logement extrêmement peu performant consommation (énergie primaire) 242 kWh/m²/an émissions* 9 kgCO2/m²/an
DPE_ * Dont émissions de gaz à effet de serre peu d'émissions de CO2 émissions de CO2 très importantes 9 kgCO2/m²/an
- FREDeLION, c'est...
Chiffre
18
années
d'expertises
Chiffre
4113
avis clients
(MeilleursAgents, Google my business et Opinion System)
Chiffre
120
collaborateurs
à votre service
Votre agence
35 avenue Simon Bolivar, 75019 Paris
0183641555

Visiter notre site
Contactez-nous
Pour ce bien
*champs requis
Loading...
Les informations recueillies sur ce formulaire sont enregistrées dans un fichier informatisé par Fredelion pour gérer votre demande de contact. Elles sont conservées pour la durée nécessaire à la gestion de la relation client dans le respect des prescriptions légales applicables et sont destinées au responsable de la publication de ce site : Fredelion.
Conformément à la loi « informatique et libertés », vous pouvez exercer votre droit d'accès aux données vous concernant et les faire rectifier en contactant Fredelion a.daiu@fredelion.com ou en utilisant ce formulaire. Nous vous informons de l’existence de la liste d'opposition au démarchage téléphonique « Bloctel », sur laquelle vous pouvez vous inscrire ici : https://www.bloctel.gouv.fr/
STERN GROUP, société au capital de euros. Siège social : 35 Simon Bolivar 75019 Paris. N° de TVA intracommunautaire : . RCS immatriculé(e) .
Conformément aux articles L611-1 et suivants et R612-1 et suivants du Code de la consommation, le consommateur est informé qu’il a la possibilité de saisir un ou notre médiateur de la consommation, à savoir situé
Barème d'honoraires