Loading...
Fredelion

- PARIS 10 - LOUIS BLANC

800 000 €Honoraires à la charge du vendeur
PAris 10ème
5 pièce(s)
3 chambre(s)
102m²
- Description du bien
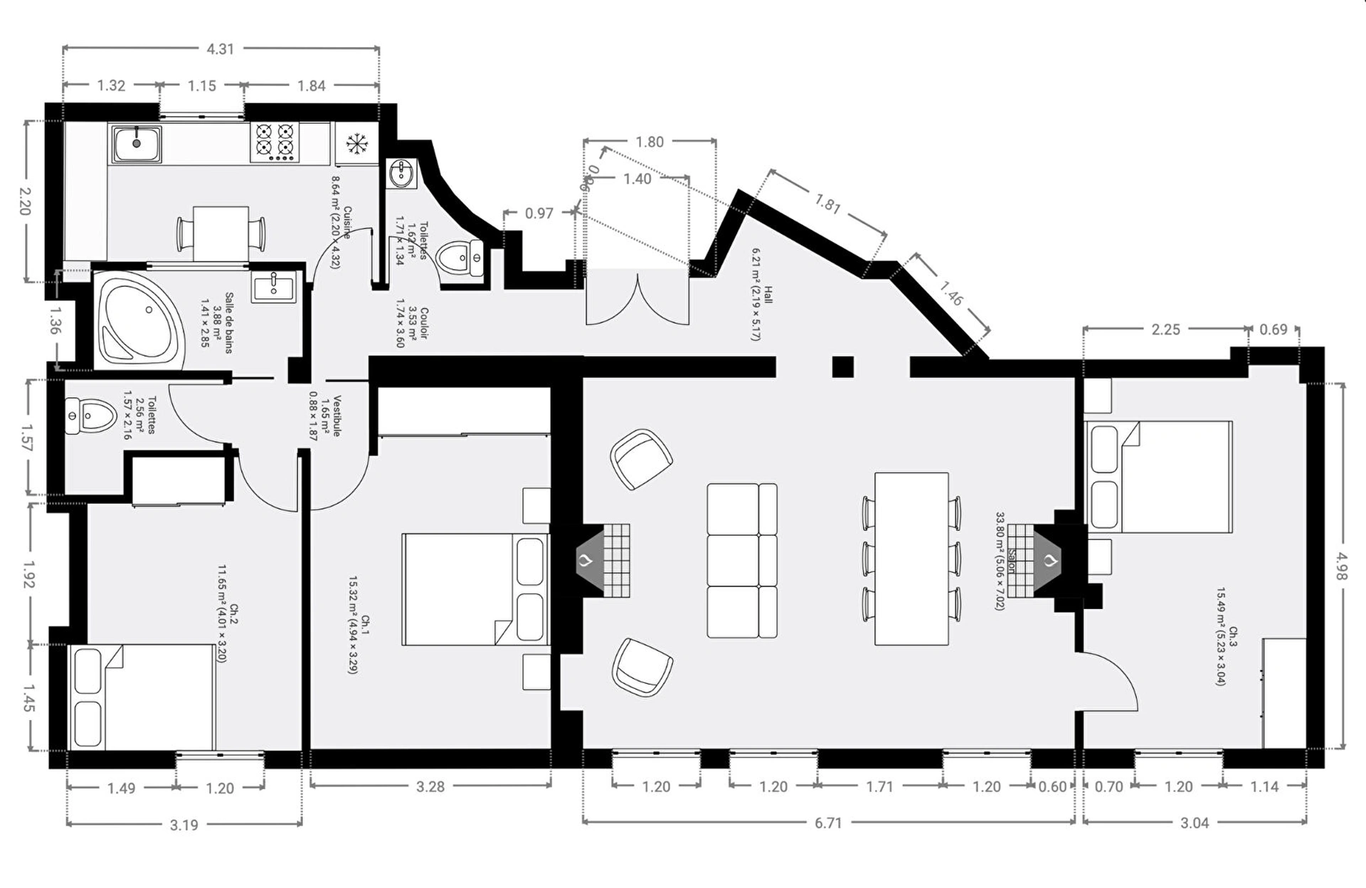
Votre agence FREDELION a le plaisir de vous présenter, en exclusivité, ce bel appartement familial de 103 m², idéalement situé à proximité immédiate du métro Louis Blanc.

Nichée au sein d'une copropriété de standing avec gardien et ascenseur, cette adresse rare se distingue par ses volumes généreux et sa luminosité exceptionnelle.

L'appartement se compose d'une entrée, d'un vaste double séjour baigné de soleil, de trois chambres confortables, d'une cuisine indépendante, d'une salle de bains et de toilettes séparées.

Un rafraîchissement est à prévoir, laissant libre cours à vos envies, tandis que la copropriété, soigneusement entretenue, ne nécessite aucun gros travaux.

Un bien de caractère, rare sur le secteur, idéal pour une famille en quête d'espace et de lumière, au coeur d'un quartier vivant et recherché.
DPE_ passoire énergétique logement extrêmement performant logement extrêmement peu performant consommation (énergie primaire) 185 kWh/m²/an émissions* 40 kgCO2/m²/an
DPE_ * Dont émissions de gaz à effet de serre peu d'émissions de CO2 émissions de CO2 très importantes 40 kgCO2/m²/an
- FREDeLION, c'est...
Chiffre
18
années
d'expertises
Chiffre
4113
avis clients
(MeilleursAgents, Google my business et Opinion System)
Chiffre
120
collaborateurs
à votre service
Votre agence
204 rue du Faubourg Saint-Martin, 75010 Paris
01 85 09 01 09

Visiter notre site
Contactez-nous
Pour ce bien
*champs requis
Loading...
Les informations recueillies sur ce formulaire sont enregistrées dans un fichier informatisé par Fredelion pour gérer votre demande de contact. Elles sont conservées pour la durée nécessaire à la gestion de la relation client dans le respect des prescriptions légales applicables et sont destinées au responsable de la publication de ce site : Fredelion.
Conformément à la loi « informatique et libertés », vous pouvez exercer votre droit d'accès aux données vous concernant et les faire rectifier en contactant Fredelion a.daiu@fredelion.com ou en utilisant ce formulaire. Nous vous informons de l’existence de la liste d'opposition au démarchage téléphonique « Bloctel », sur laquelle vous pouvez vous inscrire ici : https://www.bloctel.gouv.fr/
FREDELION PARIS 10 CANAL SAINT-MARTIN - ALEPH TRANSACTIONS SAS, société au capital de 33300.00 euros. Siège social : 28 bd Malesherbes 75008 PARIS. N° de TVA intracommunautaire : FR52882080054. RCS PARIS immatriculé(e) 882080054.
Carte T : CPI75012021000000432. Date de délivrance : 0210-11-01T16:00:03.000000Z. Lieu de délivrance : Paris - IDF. Caisse de garantie financière : CEGC. N° de caisse de garantie : 29948TRA201. Adresse de la caisse de garantie : 59 AVENUE Pierre Mendès France 75013 PARIS. Montant de la garantie financière : 839900 euros.
Conformément aux articles L611-1 et suivants et R612-1 et suivants du Code de la consommation, le consommateur est informé qu’il a la possibilité de saisir un ou notre médiateur de la consommation, à savoir situé
Barème d'honoraires