Loading...
Fredelion

- Paris 10e - Strasbourg Saint Denis

882 000 €Honoraires à la charge du vendeur
PARIS 10ème
3 pièce(s)
2 chambre(s)
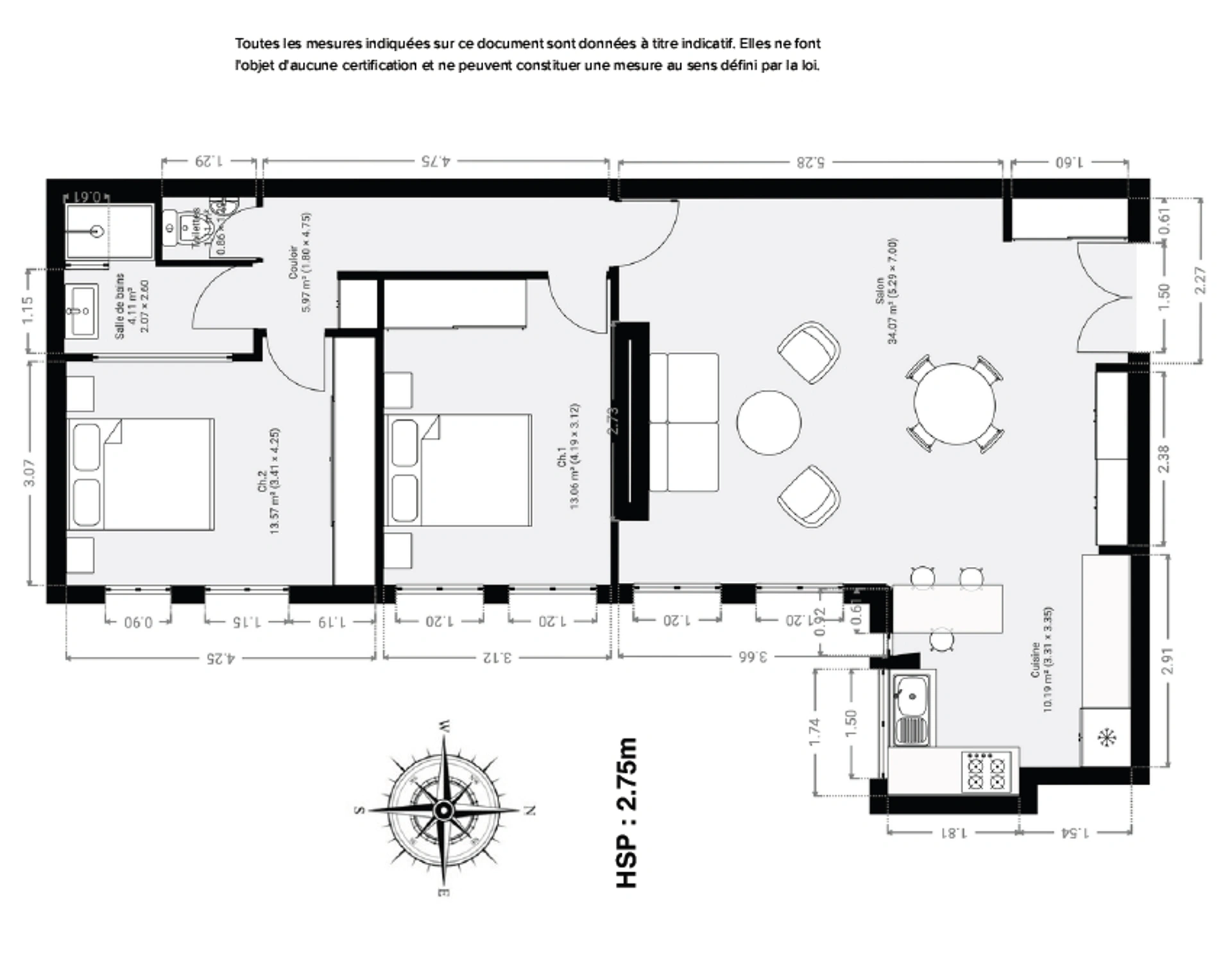
82m²
- Description du bien
Votre agence FREDéLION est heureuse de vous présenter ce spacieux 3 pièces en étage élevé idéalement situé entre les portes Saint-Denis et Saint-Martin, à la limite du 3ème (Arts et Métiers) dans un quartier qui s'est totalement réinventé où tout se fait à pied.

Vous profiterez de la proximité des théâtres mais aussi au quotidien des commerces de la rue du Faubourg Saint Denis et des Halles de Saint Martin.

Situé dans un très bel immeuble en Pierre de taille de 1930, très bien entretenu, sécurisé et disposant de deux ascenseurs, cet appartement au 4ème étage, donne entièrement sur une cour intérieure.

Ce bien vous séduira par sa pièce de vie en L de 45 m² décomposée d'une cuisine dînatoire de 10,5 m² ouverte sur un vaste séjour de 34 m².
La partie nuit offre deux grandes chambres de 13m² chacune dont une avec son dressing, une salle d'eau et un WC séparé (actuellement en sanibroyeur mais avec la possibilité d'en recréer un raccordé aux eaux vannes à son emplacement initial).

Vous apprécierez la localisation, le calme absolu, les beaux volumes, la belle hauteur sous plafond de 2m75 ou encore le bon état de l'appartement.

Copropriété de 37 lots (Pas de procédure en cours).

Charges annuelles : 3068 euros.
Ce bien fait parti d'une co-propriété de 37 lots. Les charges sont de 3068€ par an. Pas de procédure en cours.
DPE_ passoire énergétique logement extrêmement performant logement extrêmement peu performant consommation (énergie primaire) 141 kWh/m²/an émissions* 24 kgCO2/m²/an
DPE_ * Dont émissions de gaz à effet de serre peu d'émissions de CO2 émissions de CO2 très importantes 24 kgCO2/m²/an
- FREDeLION, c'est...
Chiffre
18
années
d'expertises
Chiffre
4113
avis clients
(MeilleursAgents, Google my business et Opinion System)
Chiffre
120
collaborateurs
à votre service
Votre agence
3 place Félix Eboué, 75012 Paris
01 43 14 70 70

Visiter notre site
Contactez-nous
Pour ce bien
*champs requis
Loading...
Les informations recueillies sur ce formulaire sont enregistrées dans un fichier informatisé par Fredelion pour gérer votre demande de contact. Elles sont conservées pour la durée nécessaire à la gestion de la relation client dans le respect des prescriptions légales applicables et sont destinées au responsable de la publication de ce site : Fredelion.
Conformément à la loi « informatique et libertés », vous pouvez exercer votre droit d'accès aux données vous concernant et les faire rectifier en contactant Fredelion a.daiu@fredelion.com ou en utilisant ce formulaire. Nous vous informons de l’existence de la liste d'opposition au démarchage téléphonique « Bloctel », sur laquelle vous pouvez vous inscrire ici : https://www.bloctel.gouv.fr/
SPI PARIS 12, société au capital de euros. Siège social : 3 Félix Eboué 75012 Paris. N° de TVA intracommunautaire : . RCS PARIS immatriculé(e) 834423998.
Conformément aux articles L611-1 et suivants et R612-1 et suivants du Code de la consommation, le consommateur est informé qu’il a la possibilité de saisir un ou notre médiateur de la consommation, à savoir situé
Barème d'honoraires