Loading...
Fredelion

- PARIS 12 - GARE DE LYON

515 000 €Honoraires à la charge du vendeur
PARIS 12ème
3 pièce(s)
2 chambre(s)
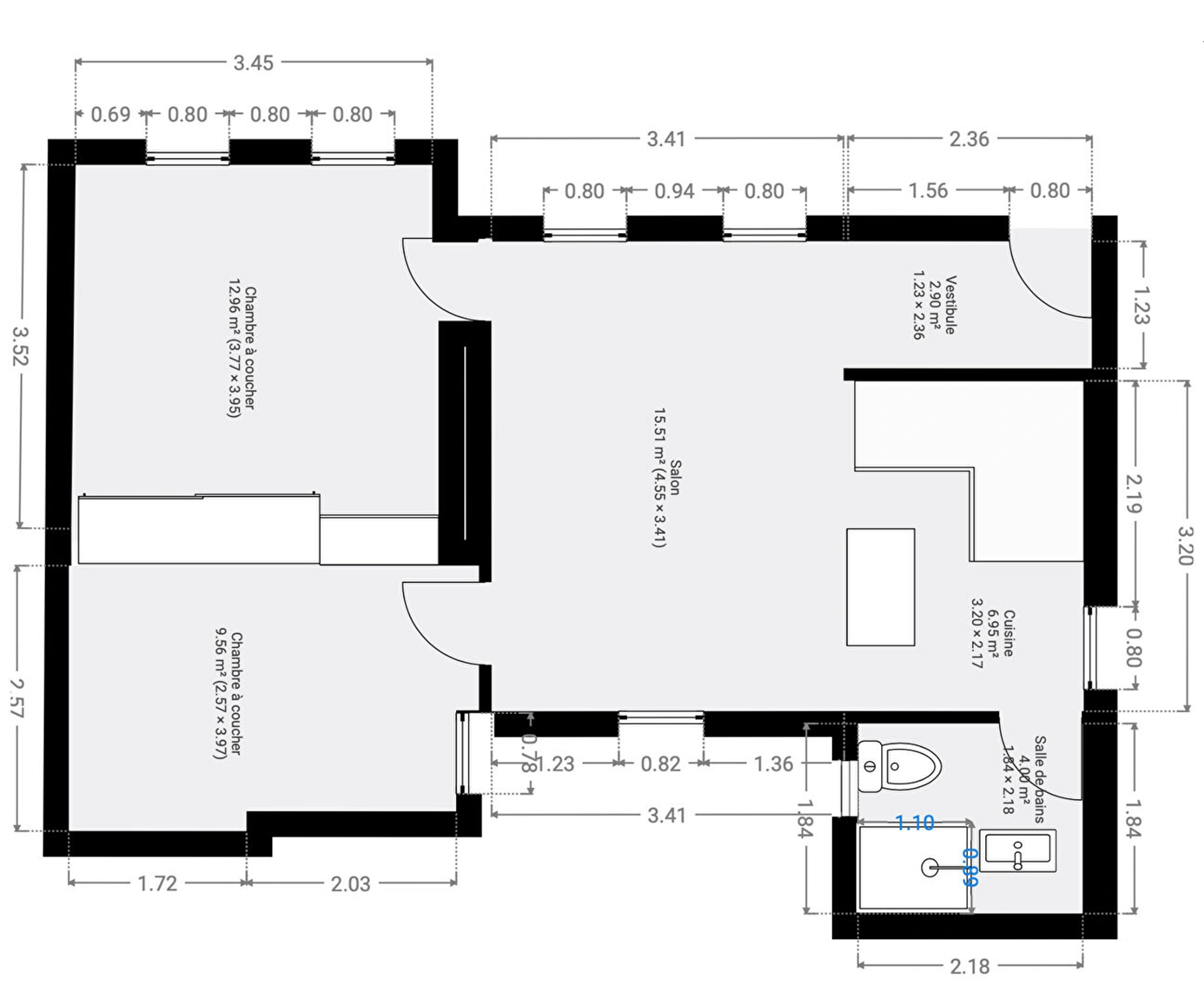
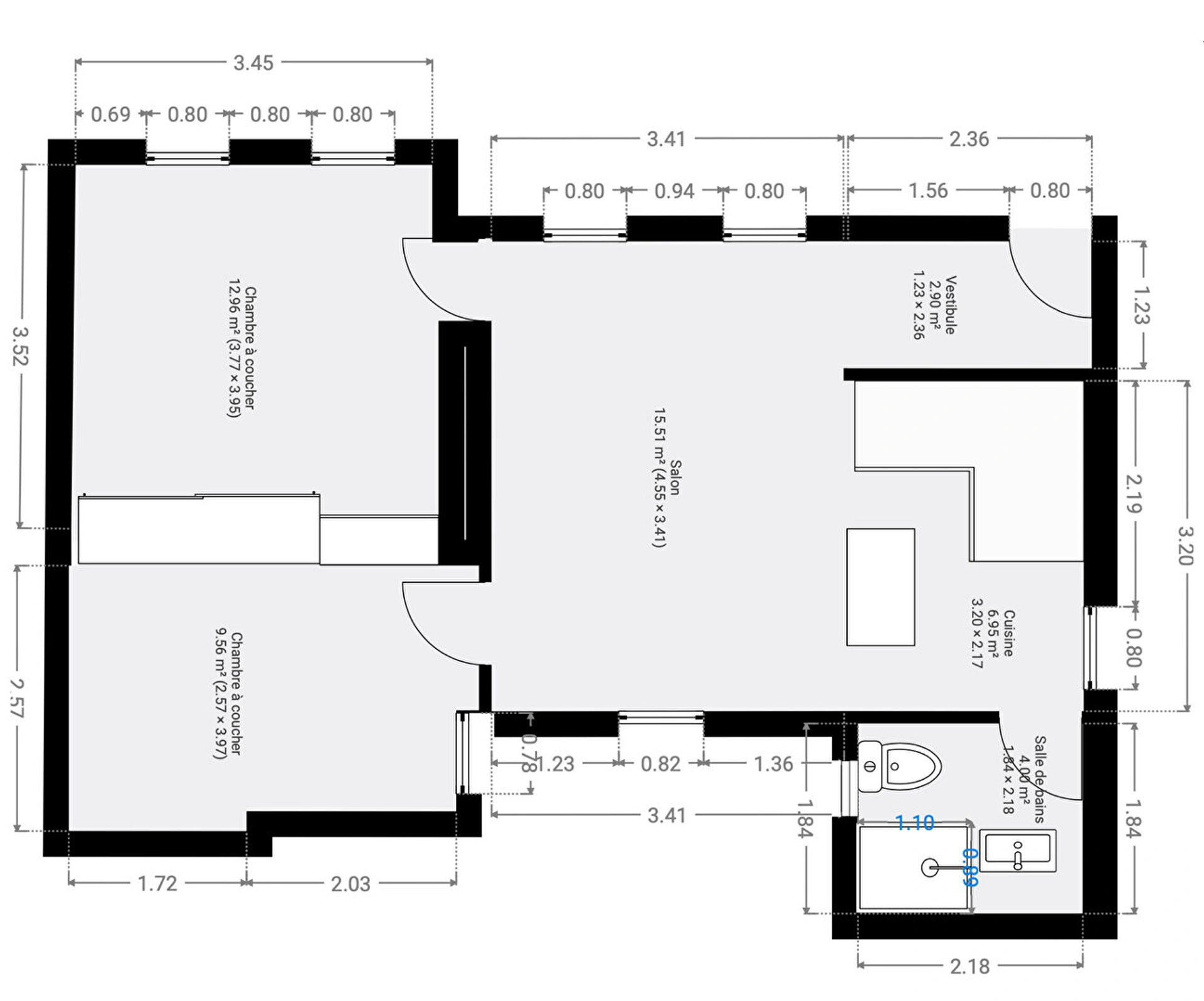
52m²
- Description du bien
Votre agence FREDeLION Aligre Paris 12 vous propose cet appartement "clé en main" idéalement situé entre la Gare de Lyon et le Bassin de l'Arsenal, non loin de la Bastille et du marché d'Aligre.

Au 4e étage par escalier, ce 3 pièces de 52,06 m² Carrez offre une belle pièce de vie de 25 m² avec 4 fenêtres, deux chambres au calme, et une salle d'eau baignée de lumière. L'appartement bénéficie d'une triple exposition, aucune perte de place, dans un immeuble ancien, au sein d'une copropriété dont les charges sont maîtrisées.

Une grande cave complète la vente.
Copropriété de 110 lots - dont 64 lots habitation.

Charges annuelles : 1755.76 euros.
Ce bien fait parti d'une co-propriété de 110 lots. Les charges sont de 1755.76€ par an. Pas de procédure en cours.
DPE_ logement extrêmement performant logement extrêmement peu performant consommation (énergie primaire) 362 kWh/m²/an émissions* 14 kgCO2/m²/an
DPE_ * Dont émissions de gaz à effet de serre peu d'émissions de CO2 émissions de CO2 très importantes 14 kgCO2/m²/an
- FREDeLION, c'est...
Chiffre
18
années
d'expertises
Chiffre
4113
avis clients
(MeilleursAgents, Google my business et Opinion System)
Chiffre
120
collaborateurs
à votre service
Votre agence
26 rue d’Aligre, 75012 PARIS
01 85 61 12 12

Visiter notre site
Contactez-nous
Pour ce bien
*champs requis
Loading...
Les informations recueillies sur ce formulaire sont enregistrées dans un fichier informatisé par Fredelion pour gérer votre demande de contact. Elles sont conservées pour la durée nécessaire à la gestion de la relation client dans le respect des prescriptions légales applicables et sont destinées au responsable de la publication de ce site : Fredelion.
Conformément à la loi « informatique et libertés », vous pouvez exercer votre droit d'accès aux données vous concernant et les faire rectifier en contactant Fredelion a.daiu@fredelion.com ou en utilisant ce formulaire. Nous vous informons de l’existence de la liste d'opposition au démarchage téléphonique « Bloctel », sur laquelle vous pouvez vous inscrire ici : https://www.bloctel.gouv.fr/
FREDELION PARIS 12 ALIGRE - ALEPH TRANSACTIONS SAS, société au capital de 33300.00 euros. Siège social : 28 bd Malesherbes 75008 PARIS. N° de TVA intracommunautaire : FR52882080054. RCS PARIS immatriculé(e) 882080054.
Carte T : CPI75012021000000432. Date de délivrance : 0101-02-02T16:46:00.000000Z. Lieu de délivrance : Paris - IDF. Caisse de garantie financière : CEGC. N° de caisse de garantie : 29950TRA201. Adresse de la caisse de garantie : 59 AVENUE Pierre Mendès France 75013 PARIS. Montant de la garantie financière : 839900 euros.
Conformément aux articles L611-1 et suivants et R612-1 et suivants du Code de la consommation, le consommateur est informé qu’il a la possibilité de saisir un ou notre médiateur de la consommation, à savoir situé
Barème d'honoraires