Loading...
Fredelion

- PARIS 13 - BUTTE AUX CAILLES

610 000 €dont 5,17% TTC à la charge de l'acquéreur580 000 € hors honoraires
PARIS 13ème
3 pièce(s)
2 chambre(s)
1 salle(s) de bain
73m²
- Description du bien
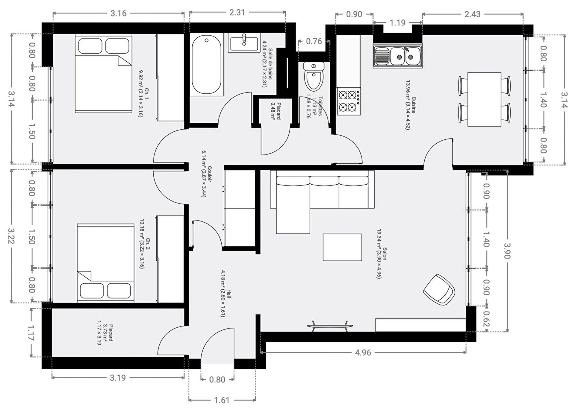
Votre agence FREDELION Butte-aux-Cailles vous présente en exclusivité un spacieux 3 pièces de 73 m², situé rue de Tolbiac, à deux pas de la Butte-aux-Cailles et du métro Glacière (ligne 6). Emplacement recherché, au coeur d'un quartier vivant et parfaitement desservi.

Au rez-de-chaussée d'un immeuble bien entretenu, il est composé : d'un séjour, une grande cuisine séparée, deux chambres, un dressing, une salle de bains et un WC séparé. Des rangements s'insèrent dans un plan astucieux. L'appartement est ensoleillé et lumineux pour un RDC grâce à ses nombreuses fenêtres dans un plan traversant.

Des travaux de rafraichissement sont à prévoir.
Une cave complète ce bien. Pour vos vélos, un local est présent au sein de la résidence. (5.17 % honoraires TTC à la charge de l'acquéreur.)

Pierre-Henri DELAHAYE (EI) Agent Commercial - Numéro RSAC : 894 986 975 - PARIS.
Ce bien fait parti d'une co-propriété de 0 lots. Les charges sont de 3400€ par an. Pas de procédure en cours.
DPE_ passoire énergétique logement extrêmement performant logement extrêmement peu performant consommation (énergie primaire) 190 kWh/m²/an émissions* 33 kgCO2/m²/an
DPE_ * Dont émissions de gaz à effet de serre peu d'émissions de CO2 émissions de CO2 très importantes 33 kgCO2/m²/an
- FREDeLION, c'est...
Chiffre
18
années
d'expertises
Chiffre
4113
avis clients
(MeilleursAgents, Google my business et Opinion System)
Chiffre
120
collaborateurs
à votre service
Votre agence
229 rue de Tolbiac, 75013 PARIS
01 83 64 12 13

Visiter notre site
Contactez-nous
Pour ce bien
*champs requis
Loading...
Les informations recueillies sur ce formulaire sont enregistrées dans un fichier informatisé par Fredelion pour gérer votre demande de contact. Elles sont conservées pour la durée nécessaire à la gestion de la relation client dans le respect des prescriptions légales applicables et sont destinées au responsable de la publication de ce site : Fredelion.
Conformément à la loi « informatique et libertés », vous pouvez exercer votre droit d'accès aux données vous concernant et les faire rectifier en contactant Fredelion a.daiu@fredelion.com ou en utilisant ce formulaire. Nous vous informons de l’existence de la liste d'opposition au démarchage téléphonique « Bloctel », sur laquelle vous pouvez vous inscrire ici : https://www.bloctel.gouv.fr/
GS IMMO, société au capital de euros. Siège social : 229 de Tolbiac 75013 PARIS. N° de TVA intracommunautaire : . RCS PARIS immatriculé(e) 922543657.
Conformément aux articles L611-1 et suivants et R612-1 et suivants du Code de la consommation, le consommateur est informé qu’il a la possibilité de saisir un ou notre médiateur de la consommation, à savoir situé
Barème d'honoraires