Loading...
Fredelion

- PARIS 13 - BUTTE AUX CAILLES

675 000 €dont 5,26% TTC à la charge de l'acquéreur641 250 € hors honoraires
PARIS 13ème
3 pièce(s)
2 chambre(s)
74m²
- Description du bien
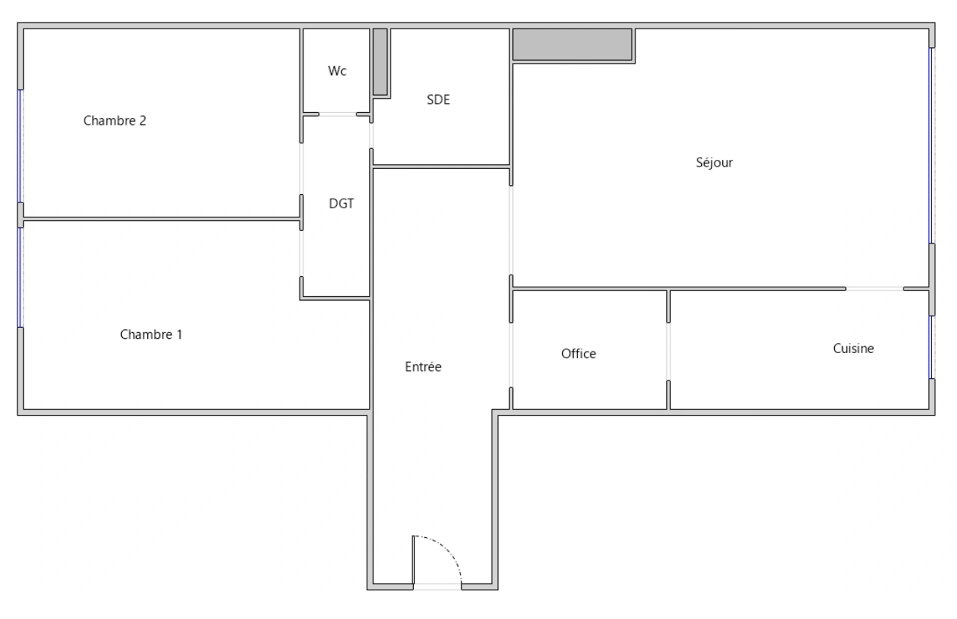
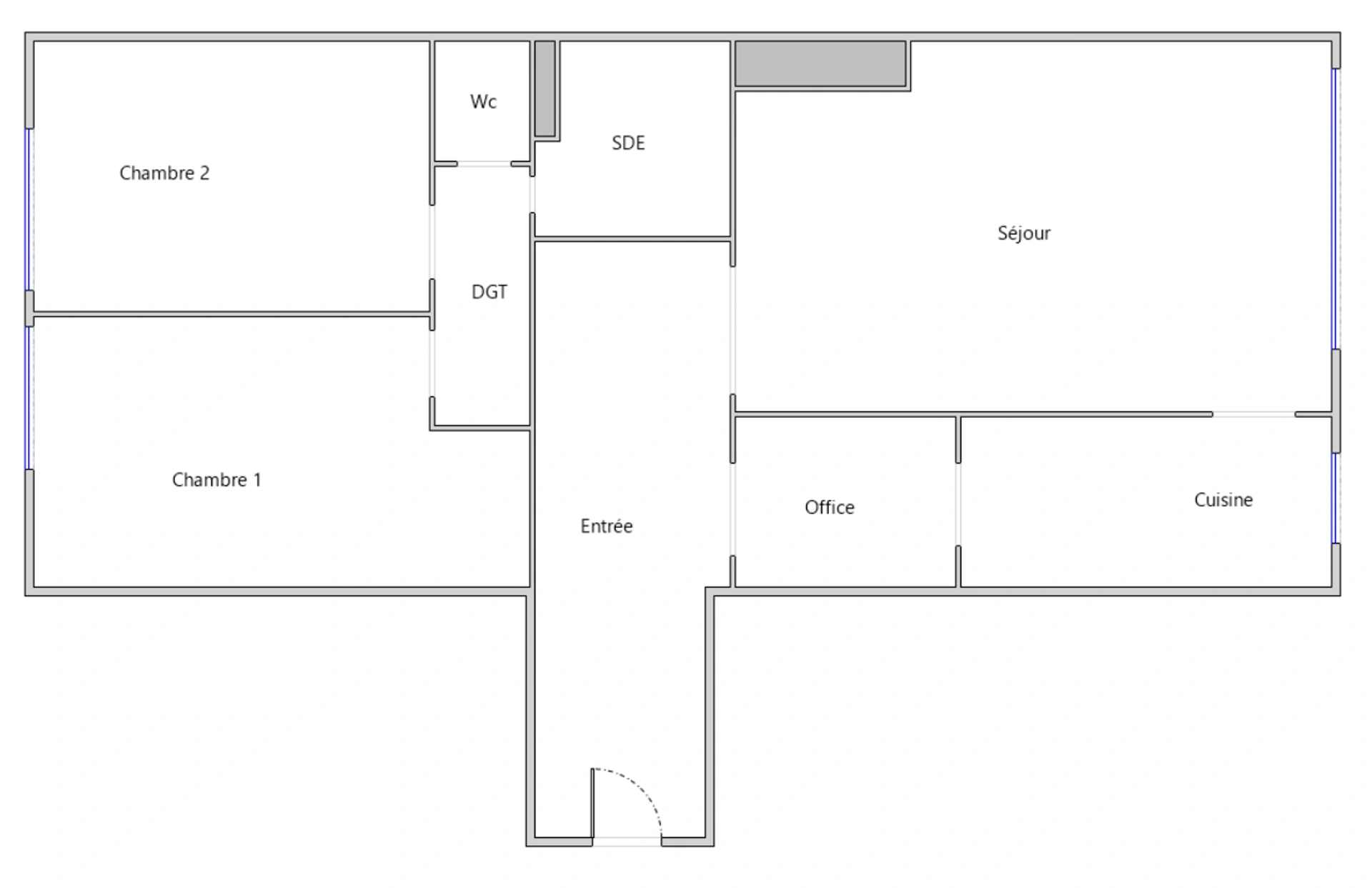
Votre agence FREDELION vous présente au coeur du quartier de la Butte-aux-Cailles, proche des transports (L5, 6, 7 et 14) et de toutes les commodités, ce beau trois pièces avec vue dégagée.

Au cinquième étage sur six par ascenseur, ce bien est composé d'un grand séjour ouvrant sur un balcon, une cuisine avec un office, deux chambres au calme sur jardin, une salle d'eau rénovée récemment et un WC séparé.

Vous serez charmé par la vue dégagée sur la Butte-aux-Cailles et l'église Sainte-Anne ainsi que par la luminosité de ce bel appartement traversant.

Le plan est très facilement modulable : cuisine US, agrandissement de la pièce de vie, troisième chambre... Ce bien est donc plein de potentiel.

La copropriété vient de bénéficier de travaux de ravalement, elle est très bien entretenue.

Une cave et une place de parking complètent ce bien. Vous aurez également accès à un local vélo. (5.26 % honoraires TTC à la charge de l'acquéreur.)
Copropriété de 80 lots - dont 29 lots habitation. (Pas de procédure en cours).

Charges annuelles : 4901 euros.
Emmanuelle DRAY (EI) Agent Commercial - Numéro RSAC : 925 164 527 - CRETEIL.
Ce bien fait parti d'une co-propriété de 80 lots. Les charges sont de 4901€ par an. Pas de procédure en cours.
DPE_ passoire énergétique logement extrêmement performant logement extrêmement peu performant consommation (énergie primaire) 189 kWh/m²/an émissions* 33 kgCO2/m²/an
DPE_ * Dont émissions de gaz à effet de serre peu d'émissions de CO2 émissions de CO2 très importantes 33 kgCO2/m²/an
- FREDeLION, c'est...
Chiffre
18
années
d'expertises
Chiffre
4113
avis clients
(MeilleursAgents, Google my business et Opinion System)
Chiffre
120
collaborateurs
à votre service
Votre agence
229 rue de Tolbiac, 75013 PARIS
01 83 64 12 13

Visiter notre site
Contactez-nous
Pour ce bien
*champs requis
Loading...
Les informations recueillies sur ce formulaire sont enregistrées dans un fichier informatisé par Fredelion pour gérer votre demande de contact. Elles sont conservées pour la durée nécessaire à la gestion de la relation client dans le respect des prescriptions légales applicables et sont destinées au responsable de la publication de ce site : Fredelion.
Conformément à la loi « informatique et libertés », vous pouvez exercer votre droit d'accès aux données vous concernant et les faire rectifier en contactant Fredelion a.daiu@fredelion.com ou en utilisant ce formulaire. Nous vous informons de l’existence de la liste d'opposition au démarchage téléphonique « Bloctel », sur laquelle vous pouvez vous inscrire ici : https://www.bloctel.gouv.fr/
GS IMMO, société au capital de euros. Siège social : 229 de Tolbiac 75013 PARIS. N° de TVA intracommunautaire : . RCS PARIS immatriculé(e) 922543657.
Conformément aux articles L611-1 et suivants et R612-1 et suivants du Code de la consommation, le consommateur est informé qu’il a la possibilité de saisir un ou notre médiateur de la consommation, à savoir situé
Barème d'honoraires