Loading...
Fredelion

- Prix de l'immobilier à PARIS 15 Rue Leroi Gourhan au m²

- PARIS 13 - JEANNE D'ARC

450 000 €dont 6,89% TTC à la charge de l'acquéreur421 000 € hors honoraires
PARIS 13ème
2 pièce(s)
1 chambre(s)
1 salle(s) de bain
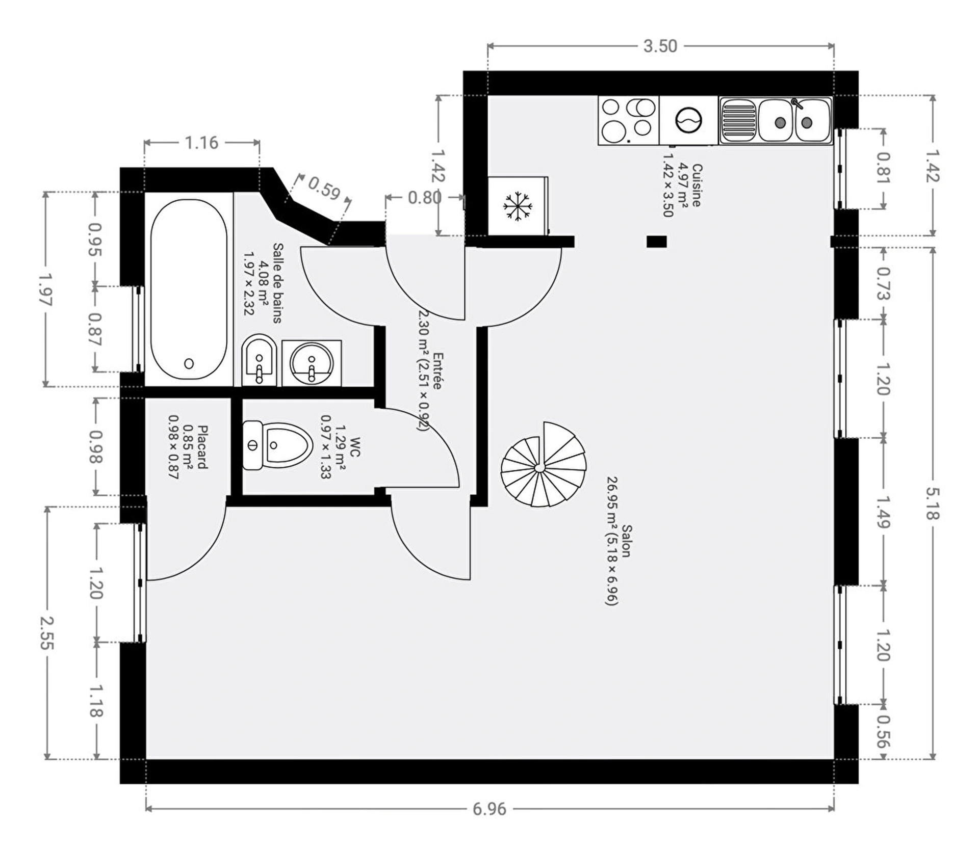
40m²
- Description du bien
Votre agence Fredelion Butte aux Cailles vous propose en EXCLUSIVITE ce duplex de caractère aux allures de petite maison sous les toits, niché aux deux derniers étages d'un bel immeuble de 1900 avec ascenseur. Situé au coeur du secteur très prisé de la rue Domrémy, à deux pas de la place Jeanne d'Arc, cet appartement profite d'un environnement calme et d'une atmosphère villageoise rare, tout en étant parfaitement desservi par les lignes de métro 14 et 6 à seulement cinq minutes de marche.

Dès l'entrée, le charme opère grâce à une luminosité constante et un volume de vie exceptionnel offrant une surface totale au sol de 69 m², soit 50 m² après pondération, bien au-delà des 40,04 m² de la loi Carrez. Le premier niveau dévoile un vaste séjour en L baigné de lumière, dont la configuration flexible permet de conserver cet espace de réception généreux ou de recréer très simplement une chambre indépendante selon vos besoins. Une cuisine dînatoire semi-ouverte s'intègre parfaitement à cet ensemble convivial, complété par une salle de bains et des toilettes séparées à proximité immédiate du Square Héloïse et Abélard.

Un escalier intérieur mène au dernier étage où l'esprit atelier prend toute sa dimension sous les combles. Cet espace, magnifié par deux grands Velux, accueille actuellement une suite parentale spacieuse offrant une intimité totale et un calme absolu. L'exploitation astucieuse des sous-pentes permet de bénéficier de nombreux rangements intégrés qui renforcent le confort quotidien et le sentiment d'espace de ce lieu atypique. Une cave en sous-sol ainsi qu'un placard à l'entrée viennent parfaire les prestations fonctionnelles de ce bien coup de coeur.

Vivre dans ce duplex, c'est s'offrir un habitat singulier et modulable au sein d'un quartier authentique du 13ème arrondissement. Sa double exposition et sa situation en dernier étage garantissent une clarté optimale tout au long de la journée. Que vous soyez en quête d'un premier achat de caractère ou d'un investissement patrimonial de qualité, ce duplex saura vous séduire par son cachet indéniable et ses volumes hors normes. (6.89 % honoraires TTC à la charge de l'acquéreur.)
Copropriété de 39 lots - dont 22 lots habitation.

Charges annuelles : 2820 euros.
Ce bien fait parti d'une co-propriété de 39 lots. Les charges sont de 2820€ par an. Pas de procédure en cours.
DPE_ passoire énergétique logement extrêmement performant logement extrêmement peu performant consommation (énergie primaire) 262 kWh/m²/an émissions* 10 kgCO2/m²/an
DPE_ * Dont émissions de gaz à effet de serre peu d'émissions de CO2 émissions de CO2 très importantes 10 kgCO2/m²/an
- FREDeLION, c'est...
Chiffre
18
années
d'expertises
Chiffre
4113
avis clients
(MeilleursAgents, Google my business et Opinion System)
Chiffre
120
collaborateurs
à votre service
Votre agence
229 rue de Tolbiac, 75013 PARIS
01 83 64 12 13

Visiter notre site
Contactez-nous
Pour ce bien
*champs requis
Loading...
Les informations recueillies sur ce formulaire sont enregistrées dans un fichier informatisé par Fredelion pour gérer votre demande de contact. Elles sont conservées pour la durée nécessaire à la gestion de la relation client dans le respect des prescriptions légales applicables et sont destinées au responsable de la publication de ce site : Fredelion.
Conformément à la loi « informatique et libertés », vous pouvez exercer votre droit d'accès aux données vous concernant et les faire rectifier en contactant Fredelion a.daiu@fredelion.com ou en utilisant ce formulaire. Nous vous informons de l’existence de la liste d'opposition au démarchage téléphonique « Bloctel », sur laquelle vous pouvez vous inscrire ici : https://www.bloctel.gouv.fr/
GS IMMO, société au capital de euros. Siège social : 229 de Tolbiac 75013 PARIS. N° de TVA intracommunautaire : . RCS PARIS immatriculé(e) 922543657.
Conformément aux articles L611-1 et suivants et R612-1 et suivants du Code de la consommation, le consommateur est informé qu’il a la possibilité de saisir un ou notre médiateur de la consommation, à savoir situé
Barème d'honoraires