Loading...
Fredelion

- Prix de l'immobilier à PARIS 08 Rue Lamennais au m²

- PARIS 13 - TOLBIAC

500 000 €dont 5,26% TTC à la charge de l'acquéreur475 000 € hors honoraires
PARIS 13ème
3 pièce(s)
2 chambre(s)
1 salle(s) de bain
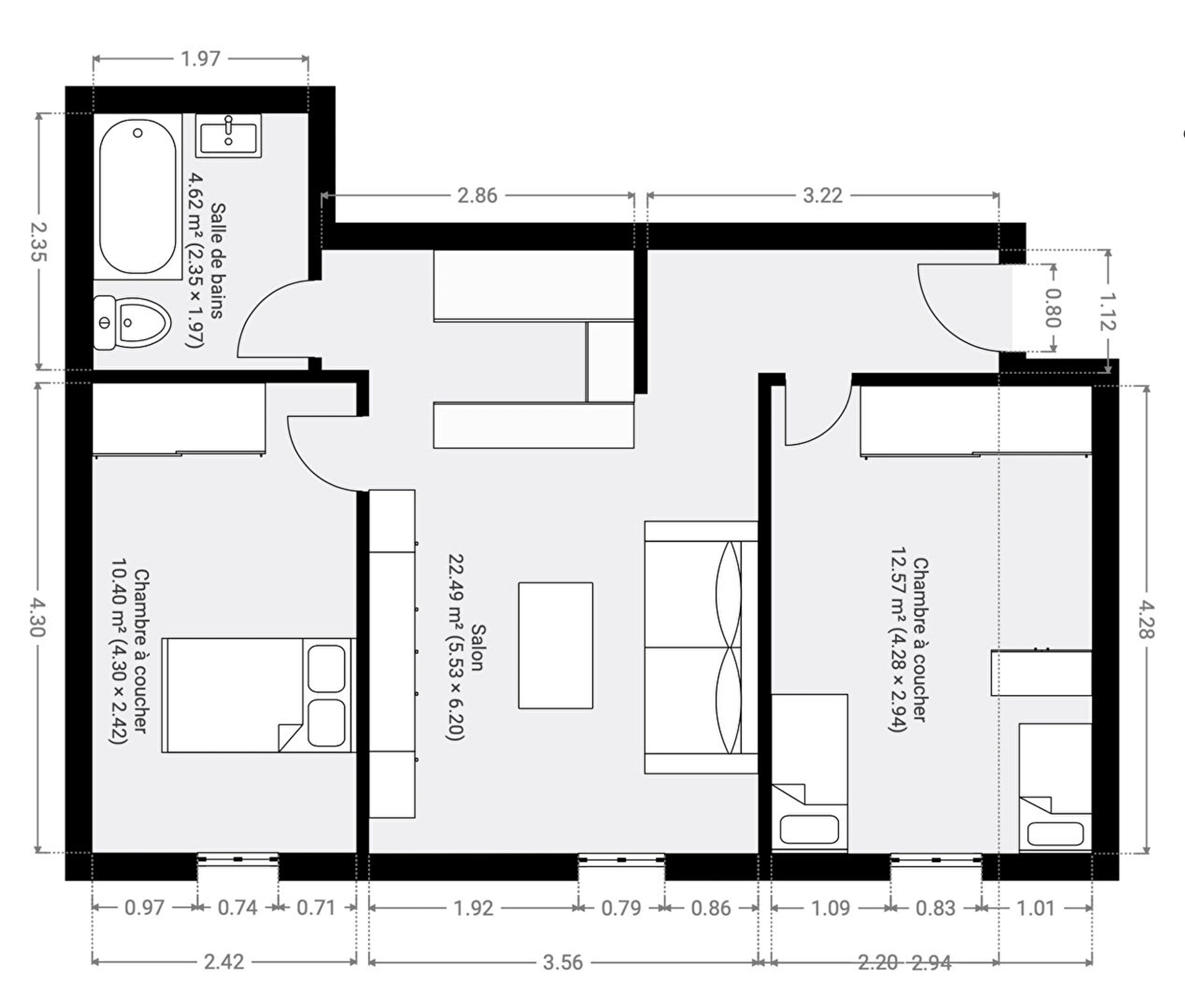
52m²
- Description du bien
Votre agence FREDELION Butte-aux-Cailles vous présente en exclusivité un appartement de trois pièces au sixième étage avec ascenseur.

Au pied de la Butte-aux-Cailles et de toutes les commodités et commerces de la rue de Tolbiac et au coeur d'un bel immeuble 1915, vous serez conquis par le charme de l'ancien de l'appartement, notamment ses belles moulures. Au dernier étage, l'appartement est lumineux et au calme.

En excellent état, ce bien de 52,11m2 (49,66m2 carrez) est composé d'une entrée, une cuisine ouverte sur le séjour, deux chambres avec rangements, une salle de bains.

Possibilité de passer facilement en DPE C.

Vous bénéficierez également d'une cave et d'un cagibi sur le palier ainsi que d'un local vélo au sein de la copropriété. (5.26 % honoraires TTC à la charge de l'acquéreur.)
Copropriété de 35 lots - dont 35 lots habitation.

Charges annuelles : 1132 euros.
Emmanuelle DRAY (EI) Agent Commercial - Numéro RSAC : 925 164 527 - CRETEIL.
Ce bien fait parti d'une co-propriété de 35 lots. Les charges sont de 1132€ par an. Pas de procédure en cours.
DPE_ logement extrêmement performant logement extrêmement peu performant consommation (énergie primaire) 367 kWh/m²/an émissions* 14 kgCO2/m²/an
DPE_ * Dont émissions de gaz à effet de serre peu d'émissions de CO2 émissions de CO2 très importantes 14 kgCO2/m²/an
- FREDeLION, c'est...
Chiffre
18
années
d'expertises
Chiffre
4113
avis clients
(MeilleursAgents, Google my business et Opinion System)
Chiffre
120
collaborateurs
à votre service
Votre agence
229 rue de Tolbiac, 75013 PARIS
01 83 64 12 13

Visiter notre site
Contactez-nous
Pour ce bien
*champs requis
Loading...
Les informations recueillies sur ce formulaire sont enregistrées dans un fichier informatisé par Fredelion pour gérer votre demande de contact. Elles sont conservées pour la durée nécessaire à la gestion de la relation client dans le respect des prescriptions légales applicables et sont destinées au responsable de la publication de ce site : Fredelion.
Conformément à la loi « informatique et libertés », vous pouvez exercer votre droit d'accès aux données vous concernant et les faire rectifier en contactant Fredelion a.daiu@fredelion.com ou en utilisant ce formulaire. Nous vous informons de l’existence de la liste d'opposition au démarchage téléphonique « Bloctel », sur laquelle vous pouvez vous inscrire ici : https://www.bloctel.gouv.fr/
GS IMMO, société au capital de euros. Siège social : 229 de Tolbiac 75013 PARIS. N° de TVA intracommunautaire : . RCS PARIS immatriculé(e) 922543657.
Conformément aux articles L611-1 et suivants et R612-1 et suivants du Code de la consommation, le consommateur est informé qu’il a la possibilité de saisir un ou notre médiateur de la consommation, à savoir situé
Barème d'honoraires