Loading...
Fredelion

- PARIS 15 - ALLERAY

855 000 €dont 3,01% TTC à la charge de l'acquéreur830 000 € hors honoraires
PARIS 15ème
4 pièce(s)
3 chambre(s)
1 salle(s) de bain
87m²
- Description du bien
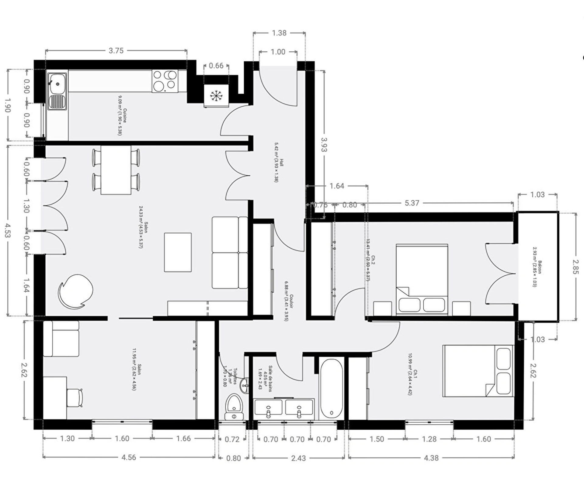
Votre agence immobilière FREDeLION Convention Paris 15 vous propose en exclusivité ce beau 4 pièces de 87m2, dans une copropriété de standing avec gardien.

Situé rue d'Alleray en étage élevé et avec ascenseur, cet appartement en bon état général se compose d'une entrée, d'un séjour exposé NORD-EST avec vue dégagée, de trois chambres parfaitement au calme dont une avec balcon, d'une cuisine aménagée et séparée, d'une salle de bains, et d'un WC séparé.

Une grande cave complète le bien.
Parking en sus à 25 000 euros

Prix de vente total : 855 000 euros FAI. (3.01 % honoraires TTC à la charge de l'acquéreur.)
Copropriété de 96 lots (Pas de procédure en cours).

Charges annuelles : 4122 euros.
Ce bien fait parti d'une co-propriété de 96 lots. Les charges sont de 4122€ par an. Pas de procédure en cours.
DPE_ passoire énergétique logement extrêmement performant logement extrêmement peu performant consommation (énergie primaire) 160 kWh/m²/an émissions* 27 kgCO2/m²/an
DPE_ * Dont émissions de gaz à effet de serre peu d'émissions de CO2 émissions de CO2 très importantes 27 kgCO2/m²/an
- FREDeLION, c'est...
Chiffre
18
années
d'expertises
Chiffre
4113
avis clients
(MeilleursAgents, Google my business et Opinion System)
Chiffre
120
collaborateurs
à votre service
Votre agence
234 rue de la Convention, 75015 PARIS
01 45 32 40 40

Visiter notre site
Contactez-nous
Pour ce bien
*champs requis
Loading...
Les informations recueillies sur ce formulaire sont enregistrées dans un fichier informatisé par Fredelion pour gérer votre demande de contact. Elles sont conservées pour la durée nécessaire à la gestion de la relation client dans le respect des prescriptions légales applicables et sont destinées au responsable de la publication de ce site : Fredelion.
Conformément à la loi « informatique et libertés », vous pouvez exercer votre droit d'accès aux données vous concernant et les faire rectifier en contactant Fredelion a.daiu@fredelion.com ou en utilisant ce formulaire. Nous vous informons de l’existence de la liste d'opposition au démarchage téléphonique « Bloctel », sur laquelle vous pouvez vous inscrire ici : https://www.bloctel.gouv.fr/
FREDELION PARIS 15 CONVENTION - ALEPH TRANSACTIONS SAS, société au capital de 33300.00 euros. Siège social : 28 bd Malesherbes 75008 PARIS. N° de TVA intracommunautaire : FR52882080054. RCS PARIS immatriculé(e) 882080054.
Carte T : CPI75012021000000432. Date de délivrance : 1101-10-02T16:40:28.000000Z. Lieu de délivrance : CCI de Paris Île-de-France. Caisse de garantie financière : CEGC. N° de caisse de garantie : 29949. Adresse de la caisse de garantie : 59 AVENUE Pierre Mendès France 75013 PARIS. Montant de la garantie financière : 839900 euros.
Conformément aux articles L611-1 et suivants et R612-1 et suivants du Code de la consommation, le consommateur est informé qu’il a la possibilité de saisir un ou notre médiateur de la consommation, à savoir situé
Barème d'honoraires