Loading...
Fredelion

- PARIS 15 - LOURMEL

360 000 €dont 5,88% TTC à la charge de l'acquéreur340 000 € hors honoraires
PARIS 15ème
2 pièce(s)
1 chambre(s)
1 salle(s) de bain
37m²
- Description du bien
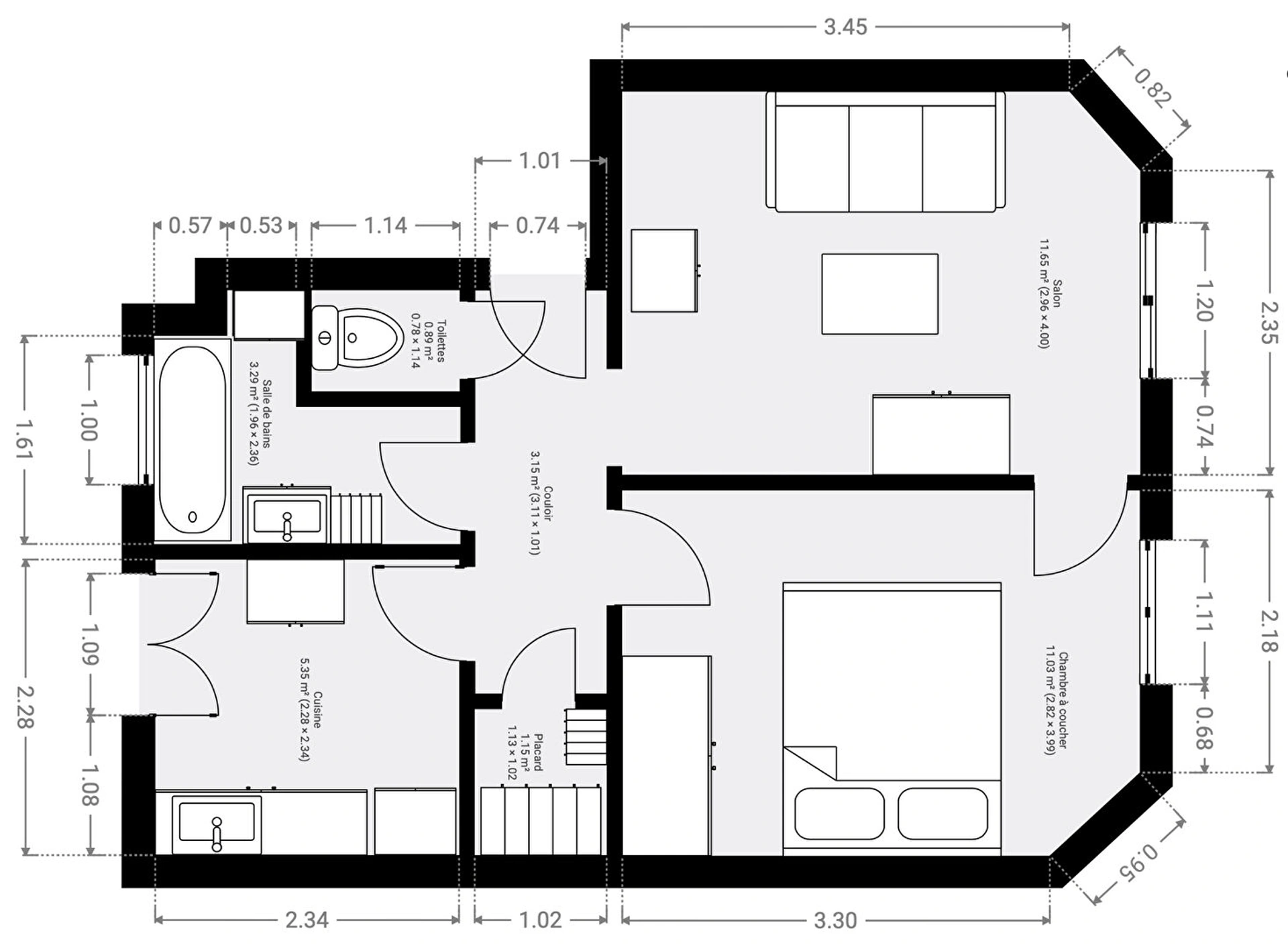
FREDéLION Convention vous présente en EXCLUSIVITÉ un superbe 2 pièces de 37 m², situé au 1er étage avec ascenseur dans le quartier prisé de LOURMEL, à proximité immédiate des commerces et des transports.

Alliant charme de l'ancien et confort, cet appartement traversant bénéficie d'un parquet, de moulures et d'une cheminée, ainsi que d'une belle hauteur sous plafond qui lui confère un caractère unique.

Il se compose d'un grand séjour lumineux, d'une chambre, d'une cuisine séparée, ainsi que d'une salle de bain et un WC séparé.

Une cave et un local à vélos complètent ce bien, offrant praticité et espace de rangement.

Un appartement au cachet authentique, idéalement situé dans un quartier vivant et recherché.

Contactez-nous dès aujourd'hui pour organiser une visite ! (5.88 % honoraires TTC à la charge de l'acquéreur.)
Copropriété de 28 lots - dont 28 lots habitation. (Pas de procédure en cours).

Charges annuelles : 1500 euros.
Ce bien fait parti d'une co-propriété de 28 lots. Les charges sont de 1500€ par an. Pas de procédure en cours.
DPE_ passoire énergétique logement extrêmement performant logement extrêmement peu performant consommation (énergie primaire) 298 kWh/m²/an émissions* 21 kgCO2/m²/an
DPE_ * Dont émissions de gaz à effet de serre peu d'émissions de CO2 émissions de CO2 très importantes 21 kgCO2/m²/an
- FREDeLION, c'est...
Chiffre
18
années
d'expertises
Chiffre
4113
avis clients
(MeilleursAgents, Google my business et Opinion System)
Chiffre
120
collaborateurs
à votre service
Votre agence
234 rue de la Convention, 75015 PARIS
01 45 32 40 40

Visiter notre site
Contactez-nous
Pour ce bien
*champs requis
Loading...
Les informations recueillies sur ce formulaire sont enregistrées dans un fichier informatisé par Fredelion pour gérer votre demande de contact. Elles sont conservées pour la durée nécessaire à la gestion de la relation client dans le respect des prescriptions légales applicables et sont destinées au responsable de la publication de ce site : Fredelion.
Conformément à la loi « informatique et libertés », vous pouvez exercer votre droit d'accès aux données vous concernant et les faire rectifier en contactant Fredelion a.daiu@fredelion.com ou en utilisant ce formulaire. Nous vous informons de l’existence de la liste d'opposition au démarchage téléphonique « Bloctel », sur laquelle vous pouvez vous inscrire ici : https://www.bloctel.gouv.fr/
FREDELION PARIS 15 CONVENTION - ALEPH TRANSACTIONS SAS, société au capital de 33300.00 euros. Siège social : 28 bd Malesherbes 75008 PARIS. N° de TVA intracommunautaire : FR52882080054. RCS PARIS immatriculé(e) 882080054.
Carte T : CPI75012021000000432. Date de délivrance : 1101-10-02T16:40:28.000000Z. Lieu de délivrance : CCI de Paris Île-de-France. Caisse de garantie financière : CEGC. N° de caisse de garantie : 29949. Adresse de la caisse de garantie : 59 AVENUE Pierre Mendès France 75013 PARIS. Montant de la garantie financière : 839900 euros.
Conformément aux articles L611-1 et suivants et R612-1 et suivants du Code de la consommation, le consommateur est informé qu’il a la possibilité de saisir un ou notre médiateur de la consommation, à savoir situé
Barème d'honoraires