Loading...
Fredelion

- PARIS 15 - CONVENTION

977 000 €dont 5,08% TTC à la charge de l'acquéreur929 761 € hors honoraires
PARIS 15ème
4 pièce(s)
3 chambre(s)
1 salle(s) de bain
99m²
- Description du bien
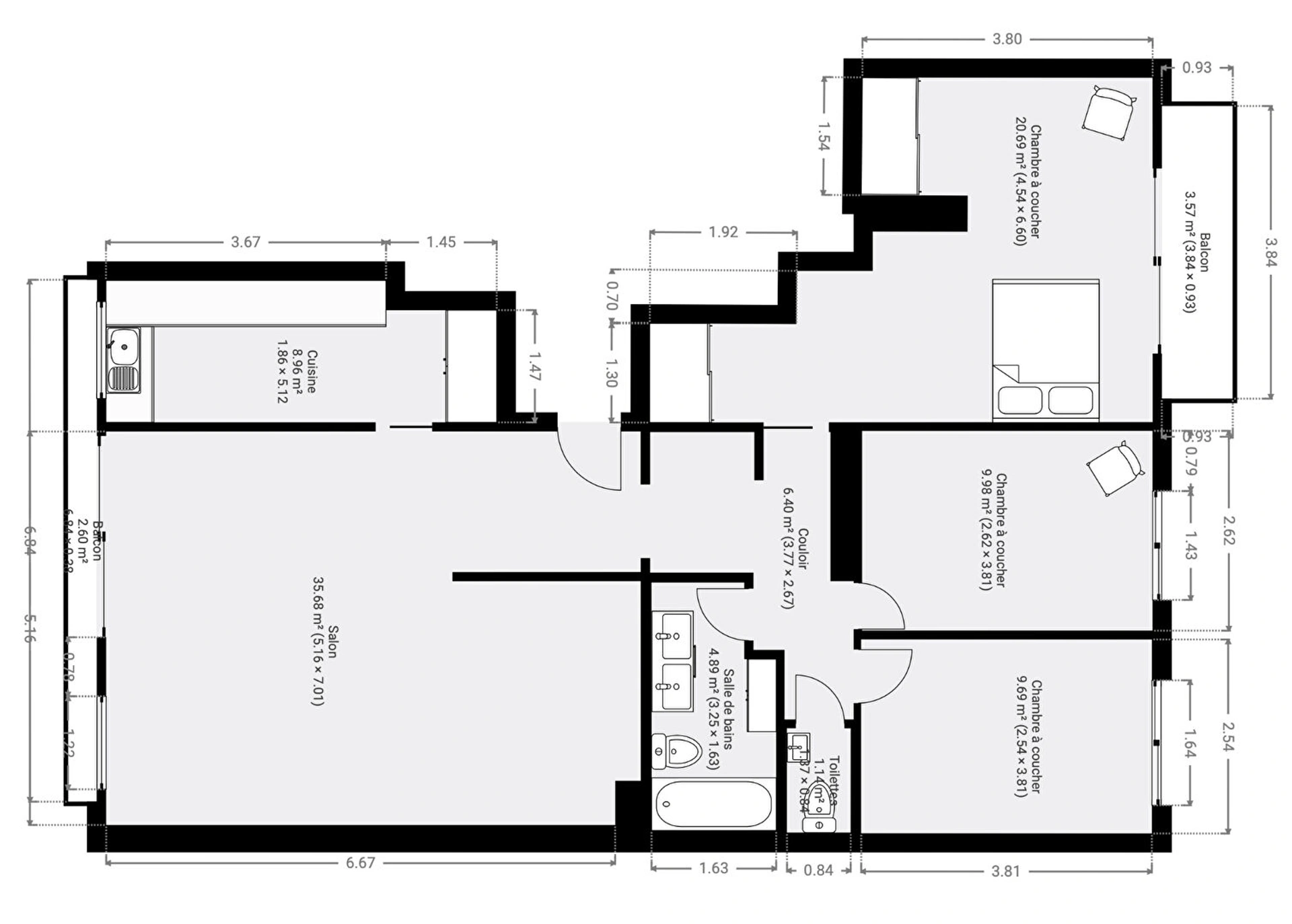
Votre agence Fredélion immobilier vous propose à la vente cet appartement familial de 4 pièces et 99,07m2 au coeur du village Convention.
Situé au 3ème étage avec ascenseur d'un immeuble récent de 1970, il se compose comme suit : une entrée, un vestibule, un grand double séjour donnant accès à un balcon filant, une cuisine indépendante, une salle de bains avec wc, un deuxième toilette séparé et 3 chambres au calme sur jardin dont une donnant accès à un deuxième balcon.
Une cave ainsi complète le bien.
Un emplacement de parking au 1er sous-sol est disponible à 15 000 euros en sus du prix de de vente.
Nb: 3 photos en home staging
Prix de vente : 977 000 euros FAI. (5.08 % honoraires TTC à la charge de l'acquéreur.)
Copropriété de 60 lots - dont 44 lots habitation. (Pas de procédure en cours).

Charges annuelles : 6515 euros.
Ce bien fait parti d'une co-propriété de 60 lots. Les charges sont de 6515€ par an. Pas de procédure en cours.
DPE_ passoire énergétique logement extrêmement performant logement extrêmement peu performant consommation (énergie primaire) 248 kWh/m²/an émissions* 54 kgCO2/m²/an
DPE_ * Dont émissions de gaz à effet de serre peu d'émissions de CO2 émissions de CO2 très importantes 54 kgCO2/m²/an
- FREDeLION, c'est...
Chiffre
18
années
d'expertises
Chiffre
4113
avis clients
(MeilleursAgents, Google my business et Opinion System)
Chiffre
120
collaborateurs
à votre service
Votre agence
67 rue Caulaincourt, 75018 PARIS
01 53 09 26 27

Visiter notre site
Contactez-nous
Pour ce bien
*champs requis
Loading...
Les informations recueillies sur ce formulaire sont enregistrées dans un fichier informatisé par Fredelion pour gérer votre demande de contact. Elles sont conservées pour la durée nécessaire à la gestion de la relation client dans le respect des prescriptions légales applicables et sont destinées au responsable de la publication de ce site : Fredelion.
Conformément à la loi « informatique et libertés », vous pouvez exercer votre droit d'accès aux données vous concernant et les faire rectifier en contactant Fredelion a.daiu@fredelion.com ou en utilisant ce formulaire. Nous vous informons de l’existence de la liste d'opposition au démarchage téléphonique « Bloctel », sur laquelle vous pouvez vous inscrire ici : https://www.bloctel.gouv.fr/
FREDELION PARIS 18 MONTMARTRE - ALEPH TRANSACTIONS SAS, société au capital de 33300.00 euros. Siège social : 28 bd Malesherbes 75008 PARIS. N° de TVA intracommunautaire : FR52882080054. RCS PARIS immatriculé(e) 882080054.
Carte T : CPI75012021000000432. Date de délivrance : 0210-11-01T15:56:37.000000Z. Lieu de délivrance : Paris - IDF. Caisse de garantie financière : CEGC. N° de caisse de garantie : 29948TRA201. Adresse de la caisse de garantie : 59 AVENUE Pierre Mendès France 75013 PARIS. Montant de la garantie financière : 839900 euros.
Conformément aux articles L611-1 et suivants et R612-1 et suivants du Code de la consommation, le consommateur est informé qu’il a la possibilité de saisir un ou notre médiateur de la consommation, à savoir situé
Barème d'honoraires