Loading...
Fredelion

- PARIS 15 - RUE VIALA

480 000 €dont 4,35% TTC à la charge de l'acquéreur460 000 € hors honoraires
PARIS 15ème
3 pièce(s)
2 chambre(s)
1 salle(s) de bain
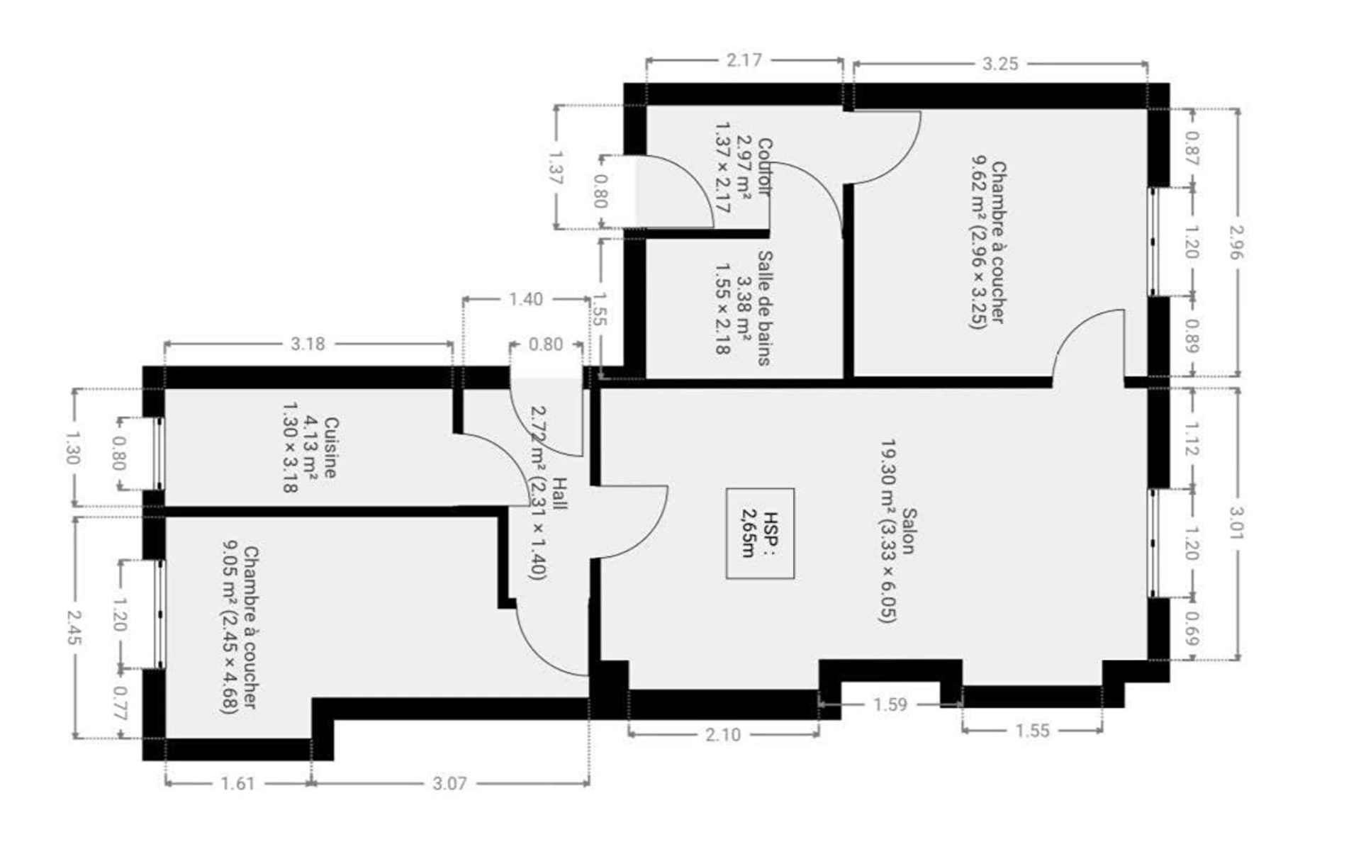
50m²
- Description du bien
Emplacement idéal à deux pas de la Tour Eiffel et du Champs de Mars, votre agence Fredélion immobilier vous propose en exclusivité ce charmant appartement de 3 pièces et 50m2 situé à seulement 100m de la station de métro Dupleix (ligne 6).
Au 4ème et dernier étage sans ascenseur d'un bel immeuble ancien de 1910 avec vue dégagée et vue Tour Eiffel, il bénéficie d'une double exposition et d'un bel ensoleillement.
Vous bénéficierez d'un accès facile pour vos courses à un supermarché à moins de 110 m et divers restaurants sont également facilement accessibles dans les alentours.
Des travaux sont à prévoir dans l'appartement et une grande cave complète le bien.
Prix de vente : 480 000 euros FAI (4.35 % honoraires TTC à la charge de l'acquéreur.)
Copropriété de 38 lots (Pas de procédure en cours).

Charges annuelles : 2108 euros.
Ce bien fait parti d'une co-propriété de 38 lots. Les charges sont de 2108€ par an. Pas de procédure en cours.
DPE_ passoire énergétique logement extrêmement performant logement extrêmement peu performant consommation (énergie primaire) 278 kWh/m²/an émissions* 60 kgCO2/m²/an
DPE_ * Dont émissions de gaz à effet de serre peu d'émissions de CO2 émissions de CO2 très importantes 60 kgCO2/m²/an
- FREDeLION, c'est...
Chiffre
18
années
d'expertises
Chiffre
4113
avis clients
(MeilleursAgents, Google my business et Opinion System)
Chiffre
120
collaborateurs
à votre service
Votre agence
67 rue Caulaincourt, 75018 PARIS
01 53 09 26 27

Visiter notre site
Contactez-nous
Pour ce bien
*champs requis
Loading...
Les informations recueillies sur ce formulaire sont enregistrées dans un fichier informatisé par Fredelion pour gérer votre demande de contact. Elles sont conservées pour la durée nécessaire à la gestion de la relation client dans le respect des prescriptions légales applicables et sont destinées au responsable de la publication de ce site : Fredelion.
Conformément à la loi « informatique et libertés », vous pouvez exercer votre droit d'accès aux données vous concernant et les faire rectifier en contactant Fredelion a.daiu@fredelion.com ou en utilisant ce formulaire. Nous vous informons de l’existence de la liste d'opposition au démarchage téléphonique « Bloctel », sur laquelle vous pouvez vous inscrire ici : https://www.bloctel.gouv.fr/
FREDELION PARIS 18 MONTMARTRE - ALEPH TRANSACTIONS SAS, société au capital de 33300.00 euros. Siège social : 28 bd Malesherbes 75008 PARIS. N° de TVA intracommunautaire : FR52882080054. RCS PARIS immatriculé(e) 882080054.
Carte T : CPI75012021000000432. Date de délivrance : 0210-11-01T17:07:11.000000Z. Lieu de délivrance : Paris - IDF. Caisse de garantie financière : CEGC. N° de caisse de garantie : 29948TRA201. Adresse de la caisse de garantie : 59 AVENUE Pierre Mendès France 75013 PARIS. Montant de la garantie financière : 839900 euros.
Conformément aux articles L611-1 et suivants et R612-1 et suivants du Code de la consommation, le consommateur est informé qu’il a la possibilité de saisir un ou notre médiateur de la consommation, à savoir situé
Barème d'honoraires