Loading...
Fredelion

- Les voies du 10ème en D et E !

- PARIS 17 - RUE DU DOBROPOL

424 000 €dont 6,00% TTC à la charge de l'acquéreur400 000 € hors honoraires
PARIS 17ème
1 pièce(s)
47m²
- Description du bien
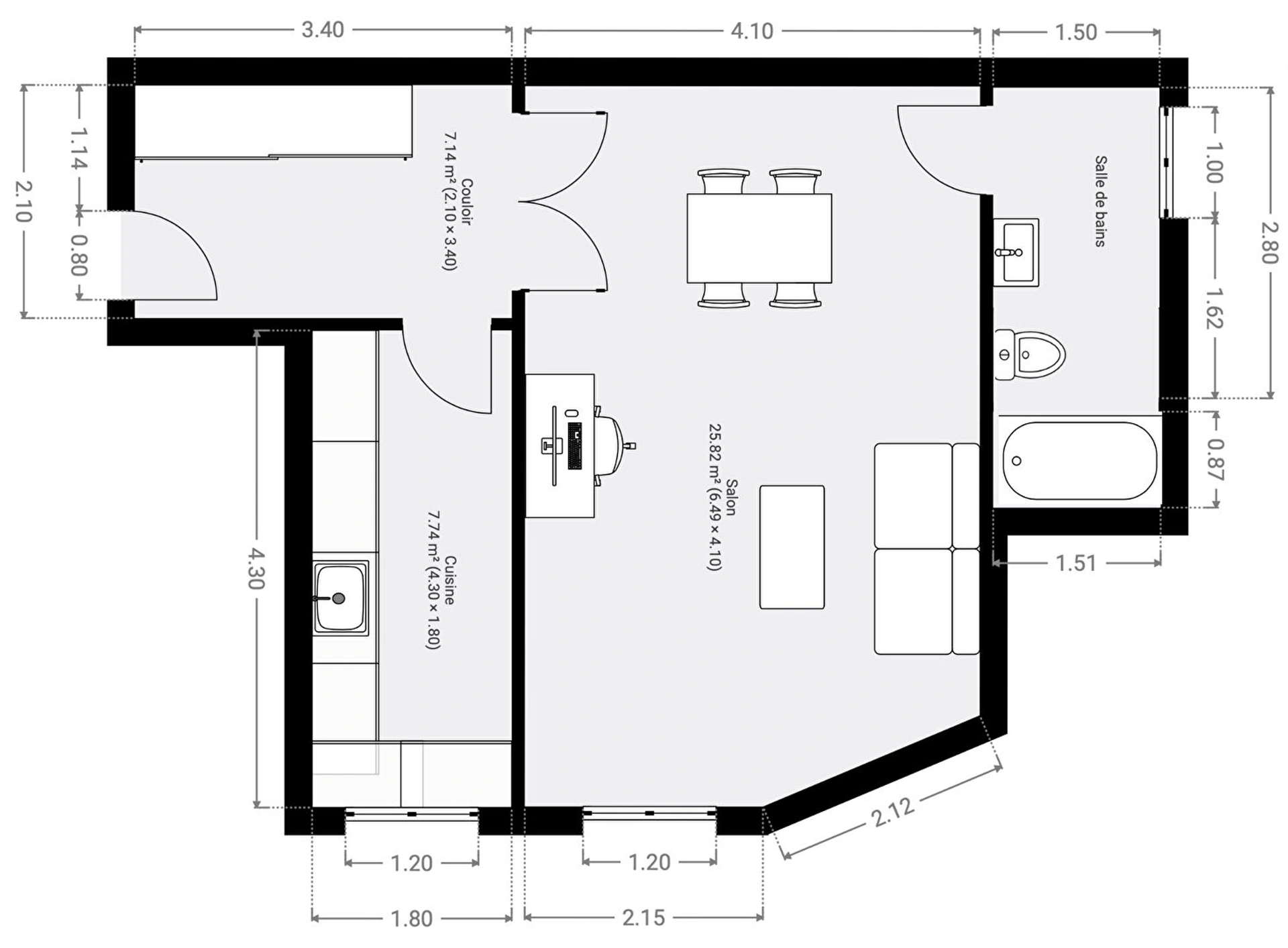
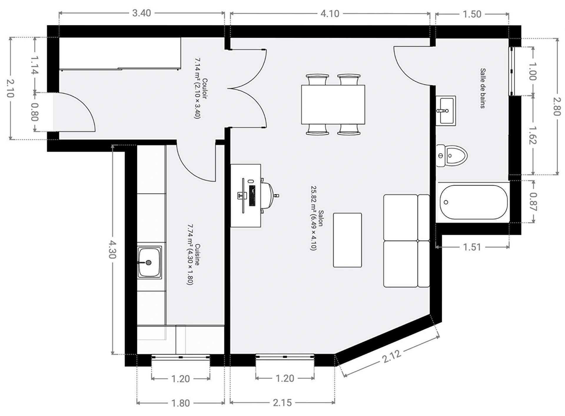
Votre agence FREDéLION Ternes vous propose en exclusivité ce grand studio de 46 m² idéalement situé rue du Dobropol, au coeur du 17ème arrondissement de Paris.

Situé dans un bâtiment sur cour, au 6e étage avec ascenseur, cet appartement offre un calme absolu et une belle luminosité. Il se compose d'une entrée, d'une vaste pièce principale aux beaux volumes, d'une cuisine indépendante, d'une salle de bains avec WC, ainsi que d'un dressing.

Le charme de l'ancien est au rendez-vous avec de beaux parquets qui confèrent à l'ensemble une atmosphère chaleureuse et élégante.

Grâce à sa surface généreuse et à sa configuration, ce bien offre une belle possibilité d'aménagement en deux pièces, idéale pour un projet de résidence principale ou d'investissement.

A proximité immédiate des commerces, des transports et de toutes les commodités du quartier, cet appartement représente une opportunité rare dans un environnement recherché et paisible.

A visiter sans tarder chez FREDeLION Ternes ! (6.00 % honoraires TTC à la charge de l'acquéreur.)
Copropriété de 54 lots - dont 37 lots habitation.

Charges annuelles : 2988 euros.
Ce bien fait parti d'une co-propriété de 54 lots. Les charges sont de 2988€ par an. Pas de procédure en cours.
- FREDeLION, c'est...
Chiffre
18
années
d'expertises
Chiffre
4113
avis clients
(MeilleursAgents, Google my business et Opinion System)
Chiffre
120
collaborateurs
à votre service
Votre agence
36 avenue Niel, 75017 Paris
01 83 64 23 24

Visiter notre site
Contactez-nous
Pour ce bien
*champs requis
Loading...
Les informations recueillies sur ce formulaire sont enregistrées dans un fichier informatisé par Fredelion pour gérer votre demande de contact. Elles sont conservées pour la durée nécessaire à la gestion de la relation client dans le respect des prescriptions légales applicables et sont destinées au responsable de la publication de ce site : Fredelion.
Conformément à la loi « informatique et libertés », vous pouvez exercer votre droit d'accès aux données vous concernant et les faire rectifier en contactant Fredelion a.daiu@fredelion.com ou en utilisant ce formulaire. Nous vous informons de l’existence de la liste d'opposition au démarchage téléphonique « Bloctel », sur laquelle vous pouvez vous inscrire ici : https://www.bloctel.gouv.fr/
STERN GROUP, société au capital de euros. Siège social : 36 Niel 75017 Paris. N° de TVA intracommunautaire : . RCS immatriculé(e) 953478898.
Conformément aux articles L611-1 et suivants et R612-1 et suivants du Code de la consommation, le consommateur est informé qu’il a la possibilité de saisir un ou notre médiateur de la consommation, à savoir situé
Barème d'honoraires