Loading...
Fredelion

- Paris 17ème - Plaine Monceau

500 000 €dont 4,17% TTC à la charge de l'acquéreur480 000 € hors honoraires
PARIS 17ème
3 pièce(s)
1 chambre(s)
44m²
- Description du bien
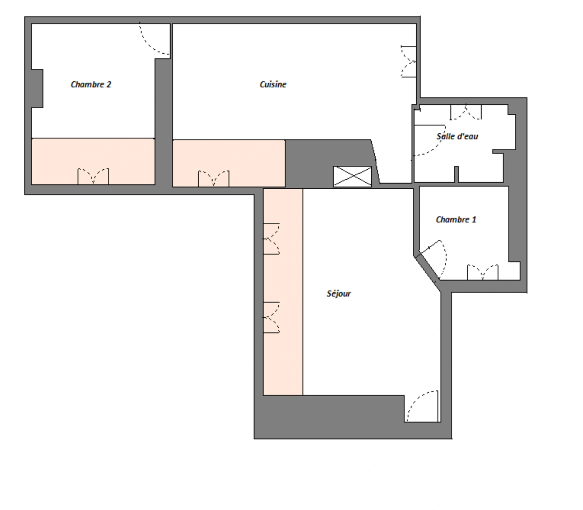
L'agence Fredelion Villiers vous présente en exclusivité un appartement idéalement situé au coeur du très recherché quartier de Plaine Monceau.

Niché au dernier étage sans ascenseur d'une belle copropriété ancienne bien entretenue, ce bien de 2/3 pièces est d'une superficie de 54,28 m² au sol (44,42 m² loi Carrez).

Il se compose d'une agréable pièce de vie, d'une chambre, d'un bureau (ou chambre d'appoint), d'une cuisine dinatoire séparée ainsi que d'une salle d'eau avec WC.

Traversant, très lumineux et sans vis-à-vis, cet appartement séduit par son calme absolu, sa luminosité et son charme atypique. L'optimisation des espaces, avec une très faible présence de mansardes, offre de belles possibilités d'aménagement.

PLAN MODULABLE
TRAVAUX A PREVOIR (GROS RAFRAICHISSEMENT) (4.17 % honoraires TTC à la charge de l'acquéreur.)
Copropriété de 42 lots - dont 25 lots habitation.

Charges annuelles : 816.52 euros.
Ce bien fait parti d'une co-propriété de 42 lots. Les charges sont de 816.52€ par an. Pas de procédure en cours.
- FREDeLION, c'est...
Chiffre
18
années
d'expertises
Chiffre
4113
avis clients
(MeilleursAgents, Google my business et Opinion System)
Chiffre
120
collaborateurs
à votre service
Votre agence
87 rue Levis, 75017 Paris
01 85 09 68 38

Visiter notre site
Contactez-nous
Pour ce bien
*champs requis
Loading...
Les informations recueillies sur ce formulaire sont enregistrées dans un fichier informatisé par Fredelion pour gérer votre demande de contact. Elles sont conservées pour la durée nécessaire à la gestion de la relation client dans le respect des prescriptions légales applicables et sont destinées au responsable de la publication de ce site : Fredelion.
Conformément à la loi « informatique et libertés », vous pouvez exercer votre droit d'accès aux données vous concernant et les faire rectifier en contactant Fredelion a.daiu@fredelion.com ou en utilisant ce formulaire. Nous vous informons de l’existence de la liste d'opposition au démarchage téléphonique « Bloctel », sur laquelle vous pouvez vous inscrire ici : https://www.bloctel.gouv.fr/
FREDELION PARIS 17 VILLIERS - VHS PARTNERS, société au capital de 10000.00 euros. Siège social : 58 rue de Tocqueville, 75017 Paris. N° de TVA intracommunautaire : FR33 989 104 351. RCS immatriculé(e) 989104351.
Carte T : CPI75012025000000368. Date de délivrance : 2025-08-24T12:03:36.000000Z. Lieu de délivrance : NC. Caisse de garantie financière : NC. N° de caisse de garantie : NC. Adresse de la caisse de garantie : NC. Montant de la garantie financière : NC.
Conformément aux articles L611-1 et suivants et R612-1 et suivants du Code de la consommation, le consommateur est informé qu’il a la possibilité de saisir un ou notre médiateur de la consommation, à savoir situé
Barème d'honoraires