Loading...
Fredelion

- PARIS 20- AVENUE GAMBETTA

717 000 €dont 4,52% TTC à la charge de l'acquéreur686 000 € hors honoraires
PARIS 20ème
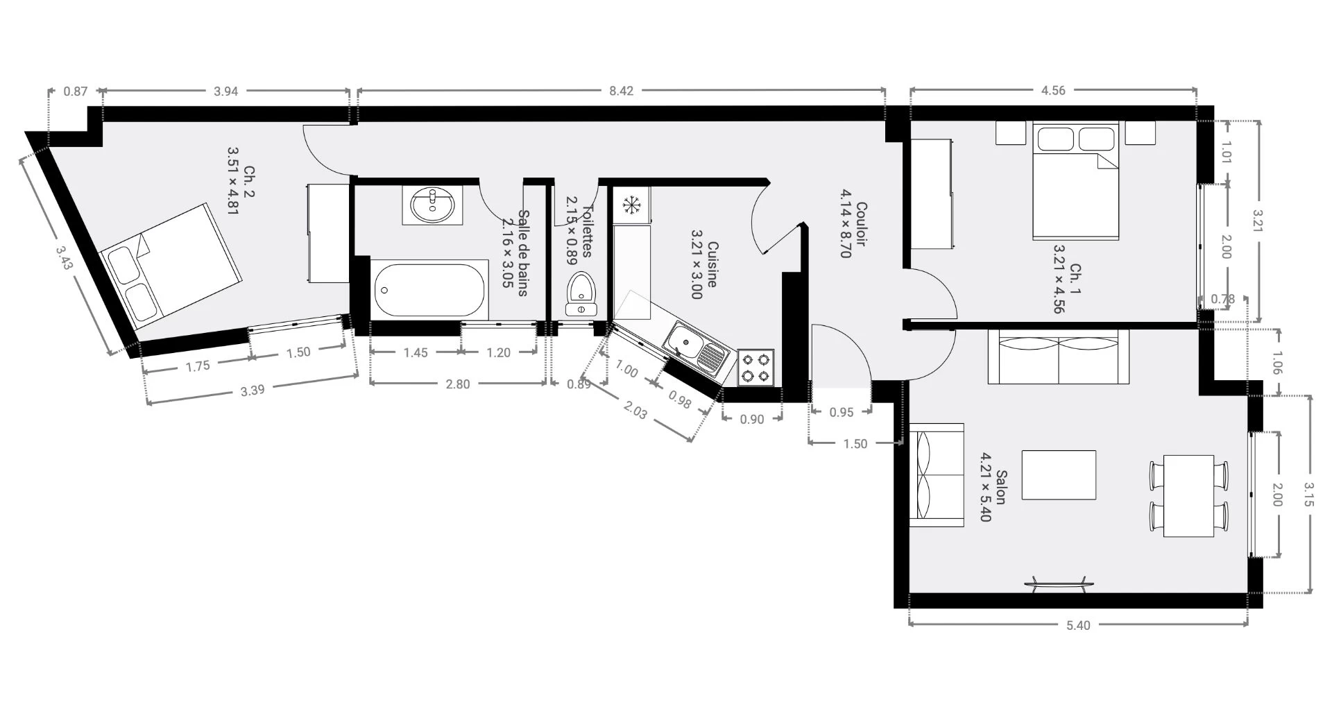
3 pièce(s)
2 chambre(s)
1 salle(s) de bain
81m²
- Description du bien
Votre agence FREDéLION Gambetta vous propose en EXCLUSIVITÉ ce superbe appartement 3 pièces de 81 m², idéalement situé dans le 20ème arrondissement de Paris, au coeur d'un environnement vivant et recherché, à proximité immédiate des COMMERCES et de toutes les COMMODITÉS.

Situé au 5e étage avec ASCENSEUR d'une copropriété de 1955 parfaitement ENTRETENUE et SÉCURISÉE, cet appartement séduit dès l'entrée par sa LUMINOSITÉ et ses volumes harmonieux. Il se compose d'une agréable pièce de vie baignée de lumière, d'une cuisine séparée, de deux chambres confortables, d'une salle de bains, de WC séparés ainsi que de nombreux RANGEMENTS et d'un espace DRESSING.

Traversant et bénéficiant d'une TRIPLE ORIENTATION Sud-Est / Sud-Ouest / Ouest, l'appartement profite d'une luminosité exceptionnelle tout au long de la journée. Vous apprécierez particulièrement sa VUE DÉGAGÉE via une dent creuse et sa vue sur la VERDURE, au-dessus des arbres, offrant une atmosphère paisible.

Chaque pièce est dotée de fenêtres avec DOUBLE VITRAGE, assurant confort thermique et phonique, tandis que la configuration TRAVERSANTE garantit une ventilation naturelle optimale.

Une CAVE complète ce bien et un LOCAL VÉLO est à disposition au sein de la copropriété.

Vous serez séduits par son ÉTAGE ÉLEVÉ, sa LUMINOSITÉ, son CALME et la qualité de sa LOCALISATION, faisant de cet appartement un bien à la fois élégant et agréable à vivre.

- - -

FREDéLION Gambetta (273 rue des Pyrénées 75020) se tient à votre entière disposition pour estimer votre bien. Estimation précise, rapide, sans engagement et offerte. (4.52 % honoraires TTC à la charge de l'acquéreur.)
Copropriété de 28 lots - dont 14 lots habitation.

Charges annuelles : 2444 euros.
Ce bien fait parti d'une co-propriété de 28 lots. Les charges sont de 2444€ par an. Pas de procédure en cours.
DPE_ passoire énergétique logement extrêmement performant logement extrêmement peu performant consommation (énergie primaire) 236 kWh/m²/an émissions* 51 kgCO2/m²/an
DPE_ * Dont émissions de gaz à effet de serre peu d'émissions de CO2 émissions de CO2 très importantes 51 kgCO2/m²/an
- FREDeLION, c'est...
Chiffre
18
années
d'expertises
Chiffre
4113
avis clients
(MeilleursAgents, Google my business et Opinion System)
Chiffre
120
collaborateurs
à votre service
Votre agence
273 rue des Pyrénées, 75020 PARIS
01 40 33 30 00

Visiter notre site
Contactez-nous
Pour ce bien
*champs requis
Loading...
Les informations recueillies sur ce formulaire sont enregistrées dans un fichier informatisé par Fredelion pour gérer votre demande de contact. Elles sont conservées pour la durée nécessaire à la gestion de la relation client dans le respect des prescriptions légales applicables et sont destinées au responsable de la publication de ce site : Fredelion.
Conformément à la loi « informatique et libertés », vous pouvez exercer votre droit d'accès aux données vous concernant et les faire rectifier en contactant Fredelion a.daiu@fredelion.com ou en utilisant ce formulaire. Nous vous informons de l’existence de la liste d'opposition au démarchage téléphonique « Bloctel », sur laquelle vous pouvez vous inscrire ici : https://www.bloctel.gouv.fr/
FREDELION PARIS 20 GAMBETTA - ALEPH TRANSACTIONS SAS, société au capital de 33300.00 euros. Siège social : 28 bd Malesherbes 75008 PARIS. N° de TVA intracommunautaire : FR52882080054. RCS PARIS immatriculé(e) 882080054.
Carte T : CPI75012021000000432. Date de délivrance : 2002-01-11T15:57:07.000000Z. Lieu de délivrance : Paris - IDF. Caisse de garantie financière : CEGC. N° de caisse de garantie : 22906TRA201. Adresse de la caisse de garantie : 59 AVENUE Pierre Mendès France 75013 PARIS. Montant de la garantie financière : 839900 euros.
Conformément aux articles L611-1 et suivants et R612-1 et suivants du Code de la consommation, le consommateur est informé qu’il a la possibilité de saisir un ou notre médiateur de la consommation, à savoir situé
Barème d'honoraires