Loading...
Fredelion

- PARIS 20 - RUE DE MENILMONTANT

380 000 €dont 4,11% TTC à la charge de l'acquéreur365 000 € hors honoraires
PARIS 20ème
2 pièce(s)
1 chambre(s)
40m²
- Description du bien
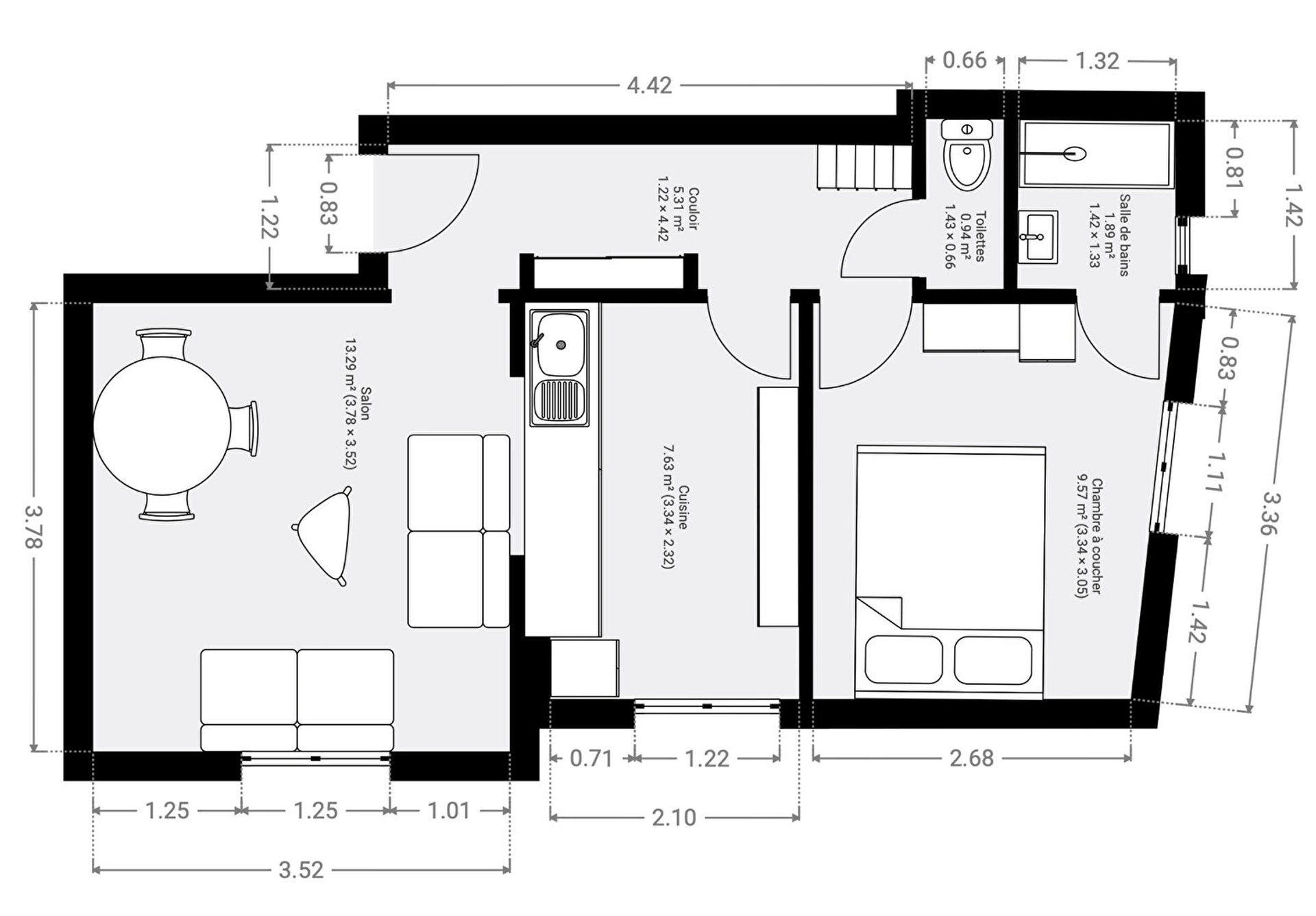
FREDéLION Gambetta vous propose en EXCLUSIVITÉ ce séduisant 2 pièces de 39,57 m², niché au 2? étage sans ascenseur d'un petit immeuble de trois niveaux, idéalement situé rue de Ménilmontant, à proximité immédiate du village Gambetta.

Baigné de lumière grâce à son exposition ouest dans le séjour et offrant une vue paisible sur un parc, cet appartement en bon état séduit par son agencement fonctionnel et optimisé, sans aucune perte d'espace.

Il se compose d'une entrée, d'un séjour avec parquet d'origine, d'une cuisine semi-ouverte, d'une chambre, d'une salle d'eau ainsi que de WC indépendants.

La copropriété dispose également d'un local à vélos et présente de faibles charges, garantissant un cadre de vie agréable au quotidien.
Un bien plein de charme, lumineux et idéalement situé, prêt à accueillir ses futurs occupants.

N'hésitez pas à nous contacter pour planifier une visite ! (4.11 % honoraires TTC à la charge de l'acquéreur.)
Copropriété de 20 lots - dont 20 lots habitation.

Charges annuelles : 1360 euros.
Ce bien fait parti d'une co-propriété de 20 lots. Les charges sont de 1360€ par an. Pas de procédure en cours.
DPE_ logement extrêmement performant logement extrêmement peu performant consommation (énergie primaire) 362 kWh/m²/an émissions* 26 kgCO2/m²/an
DPE_ * Dont émissions de gaz à effet de serre peu d'émissions de CO2 émissions de CO2 très importantes 26 kgCO2/m²/an
- FREDeLION, c'est...
Chiffre
18
années
d'expertises
Chiffre
4113
avis clients
(MeilleursAgents, Google my business et Opinion System)
Chiffre
120
collaborateurs
à votre service
Votre agence
273 rue des Pyrénées, 75020 PARIS
01 40 33 30 00

Visiter notre site
Contactez-nous
Pour ce bien
*champs requis
Loading...
Les informations recueillies sur ce formulaire sont enregistrées dans un fichier informatisé par Fredelion pour gérer votre demande de contact. Elles sont conservées pour la durée nécessaire à la gestion de la relation client dans le respect des prescriptions légales applicables et sont destinées au responsable de la publication de ce site : Fredelion.
Conformément à la loi « informatique et libertés », vous pouvez exercer votre droit d'accès aux données vous concernant et les faire rectifier en contactant Fredelion a.daiu@fredelion.com ou en utilisant ce formulaire. Nous vous informons de l’existence de la liste d'opposition au démarchage téléphonique « Bloctel », sur laquelle vous pouvez vous inscrire ici : https://www.bloctel.gouv.fr/
FREDELION PARIS 20 GAMBETTA - ALEPH TRANSACTIONS SAS, société au capital de 33300.00 euros. Siège social : 28 bd Malesherbes 75008 PARIS. N° de TVA intracommunautaire : FR52882080054. RCS PARIS immatriculé(e) 882080054.
Carte T : CPI75012021000000432. Date de délivrance : 2002-01-11T15:57:07.000000Z. Lieu de délivrance : Paris - IDF. Caisse de garantie financière : CEGC. N° de caisse de garantie : 22906TRA201. Adresse de la caisse de garantie : 59 AVENUE Pierre Mendès France 75013 PARIS. Montant de la garantie financière : 839900 euros.
Conformément aux articles L611-1 et suivants et R612-1 et suivants du Code de la consommation, le consommateur est informé qu’il a la possibilité de saisir un ou notre médiateur de la consommation, à savoir situé
Barème d'honoraires