Loading...
Fredelion

- PARIS 6 - RUE SAINT-ANDRE DES ARTS

3 685 000 €Honoraires à la charge du vendeur
PARIS 6ème
5 pièce(s)
3 chambre(s)
165m²
- Description du bien
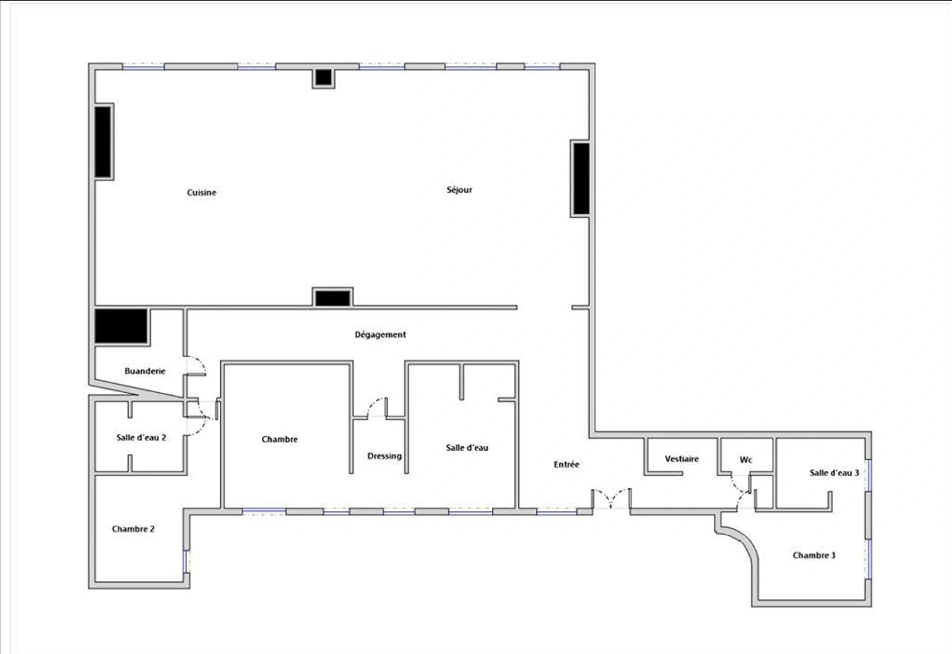
Votre agence FredéLion à le privilège de vous présenter ce magnifique appartement familial de 165,11m2 en parfait état au coeur du 6ème arrondissement de Paris dans un immeuble de grand standing datant 1871.
Composé d'une entrée, de 3 chambres dont une avec balcon, de 3 salle d'eaux, de 3 wc, de nombreux rangements, d'un grand séjour et d'une salle à manger avec cuisine américaine entièrement équipée et aménagée donnant accès à un grand balcon filant.
Ce bien traversant et ensoleillé aux prestations de qualités vous séduira à coups sur.
Une grande cave complète le bien.
Prix de vente : 3 685 000 euros FAI
Copropriété de 38 lots - dont 20 lots habitation. (Pas de procédure en cours).

Charges annuelles : 5053.72 euros.
Ce bien fait parti d'une co-propriété de 38 lots. Les charges sont de 5053.72€ par an. Pas de procédure en cours.
DPE_ passoire énergétique logement extrêmement performant logement extrêmement peu performant consommation (énergie primaire) 84 kWh/m²/an émissions* 2 kgCO2/m²/an
DPE_ * Dont émissions de gaz à effet de serre peu d'émissions de CO2 émissions de CO2 très importantes 2 kgCO2/m²/an
- FREDeLION, c'est...
Chiffre
18
années
d'expertises
Chiffre
4113
avis clients
(MeilleursAgents, Google my business et Opinion System)
Chiffre
120
collaborateurs
à votre service
Votre agence
204 rue du Faubourg Saint-Martin, 75010 Paris
01 85 09 01 09

Visiter notre site
Contactez-nous
Pour ce bien
*champs requis
Loading...
Les informations recueillies sur ce formulaire sont enregistrées dans un fichier informatisé par Fredelion pour gérer votre demande de contact. Elles sont conservées pour la durée nécessaire à la gestion de la relation client dans le respect des prescriptions légales applicables et sont destinées au responsable de la publication de ce site : Fredelion.
Conformément à la loi « informatique et libertés », vous pouvez exercer votre droit d'accès aux données vous concernant et les faire rectifier en contactant Fredelion a.daiu@fredelion.com ou en utilisant ce formulaire. Nous vous informons de l’existence de la liste d'opposition au démarchage téléphonique « Bloctel », sur laquelle vous pouvez vous inscrire ici : https://www.bloctel.gouv.fr/
FREDELION PARIS 10 CANAL SAINT-MARTIN - ALEPH TRANSACTIONS SAS, société au capital de 33300.00 euros. Siège social : 28 bd Malesherbes 75008 PARIS. N° de TVA intracommunautaire : FR52882080054. RCS PARIS immatriculé(e) 882080054.
Carte T : CPI75012021000000432. Date de délivrance : 0210-11-01T16:00:03.000000Z. Lieu de délivrance : Paris - IDF. Caisse de garantie financière : CEGC. N° de caisse de garantie : 29948TRA201. Adresse de la caisse de garantie : 59 AVENUE Pierre Mendès France 75013 PARIS. Montant de la garantie financière : 839900 euros.
Conformément aux articles L611-1 et suivants et R612-1 et suivants du Code de la consommation, le consommateur est informé qu’il a la possibilité de saisir un ou notre médiateur de la consommation, à savoir situé
Barème d'honoraires