Loading...
Fredelion

- PARIS X - VILLAGE SAINT MARTIN

430 000 €Honoraires à la charge du vendeur
PARIS 10ème
2 pièce(s)
1 chambre(s)
1 salle(s) de bain
40m²
- Description du bien
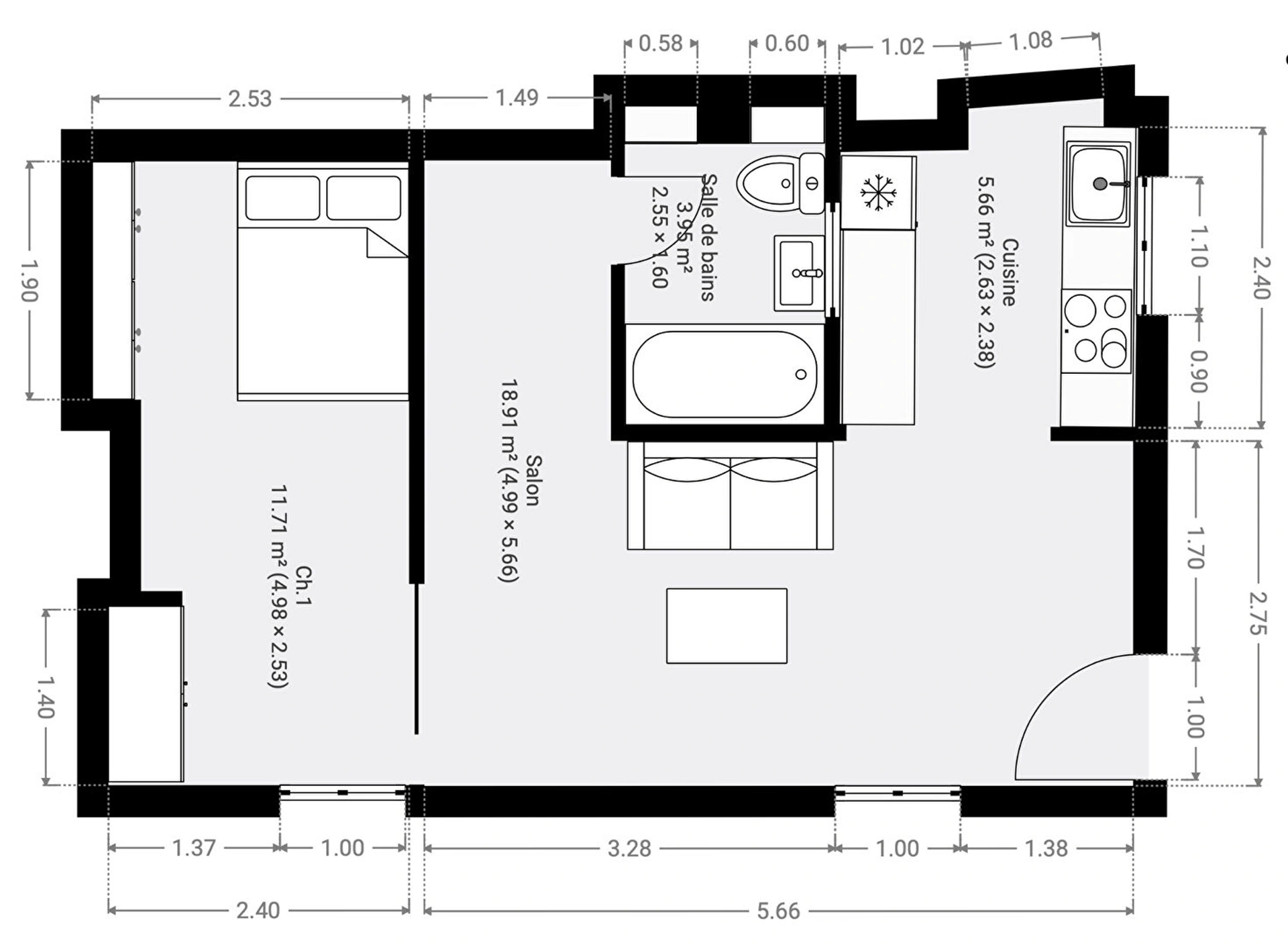
Votre agence FREDELION Saint-Martin vous présente en exclusivité ce charmant deux-pièces de 40 m², niché au 4e et dernier étage d'un immeuble sans ascenseur.

Idéalement situé derrière la mairie du Xe, en plein coeur du Village Saint-Martin, il saura vous séduire par son exposition plein sud qui inonde les pièces de lumière tout au long de la journée.

Donnant sur une cour végétalisée, il offre un cadre paisible.

L'appartement, en excellent état, se compose d'une belle pièce de vie de près de 19m2 , d'une cuisine ouverte, d'une chambre au calme et d'une salle d'eau avec WC.

Un bien rare à découvrir sans tarder .

La copropriété a engagé une étude pour isoler le bâtiment par l'extérieur, un projet qui devrait permettre de rehausser la note du DPE et d'accroître le confort thermique.

Première photo optimisée par IA.

Une cave complète ce bien.
Copropriété de 130 lots - dont 68 lots habitation. (Pas de procédure en cours).

Charges annuelles : 1740 euros.
Ce bien fait parti d'une co-propriété de 130 lots. Les charges sont de 1740€ par an. Pas de procédure en cours.
DPE_ logement extrêmement performant logement extrêmement peu performant consommation (énergie primaire) 583 kWh/m²/an émissions* kgCO2/m²/an
DPE_ * Dont émissions de gaz à effet de serre peu d'émissions de CO2 émissions de CO2 très importantes kgCO2/m²/an
- FREDeLION, c'est...
Chiffre
18
années
d'expertises
Chiffre
4113
avis clients
(MeilleursAgents, Google my business et Opinion System)
Chiffre
120
collaborateurs
à votre service
Votre agence
42 rue du Château d’Eau, 75010 PARIS
01 81 80 16 16

Visiter notre site
Contactez-nous
Pour ce bien
*champs requis
Loading...
Les informations recueillies sur ce formulaire sont enregistrées dans un fichier informatisé par Fredelion pour gérer votre demande de contact. Elles sont conservées pour la durée nécessaire à la gestion de la relation client dans le respect des prescriptions légales applicables et sont destinées au responsable de la publication de ce site : Fredelion.
Conformément à la loi « informatique et libertés », vous pouvez exercer votre droit d'accès aux données vous concernant et les faire rectifier en contactant Fredelion a.daiu@fredelion.com ou en utilisant ce formulaire. Nous vous informons de l’existence de la liste d'opposition au démarchage téléphonique « Bloctel », sur laquelle vous pouvez vous inscrire ici : https://www.bloctel.gouv.fr/
FREDELION PARIS 10 SAINT-MARTIN - ALEPH TRANSACTIONS SAS, société au capital de 33300.00 euros. Siège social : 28 bd Malesherbes 75008 PARIS. N° de TVA intracommunautaire : FR52882080054. RCS PARIS immatriculé(e) 882080054.
Carte T : CPI75012021000000432. Date de délivrance : 1101-10-02T15:50:12.000000Z. Lieu de délivrance : Paris - IDF. Caisse de garantie financière : CEGC. N° de caisse de garantie : n°2989824504/8027000964117. Adresse de la caisse de garantie : 59 AVENUE Pierre Mendès France 75013 PARIS. Montant de la garantie financière : 839900 euros.
Conformément aux articles L611-1 et suivants et R612-1 et suivants du Code de la consommation, le consommateur est informé qu’il a la possibilité de saisir un ou notre médiateur de la consommation, à savoir situé
Barème d'honoraires