Loading...
Fredelion

- ROCHECHOUART - PARIS 9

842 000 €dont 3,95% TTC à la charge de l'acquéreur810 000 € hors honoraires
PARIS 9ème
4 pièce(s)
2 chambre(s)
1 salle(s) de bain
74m²
- Description du bien
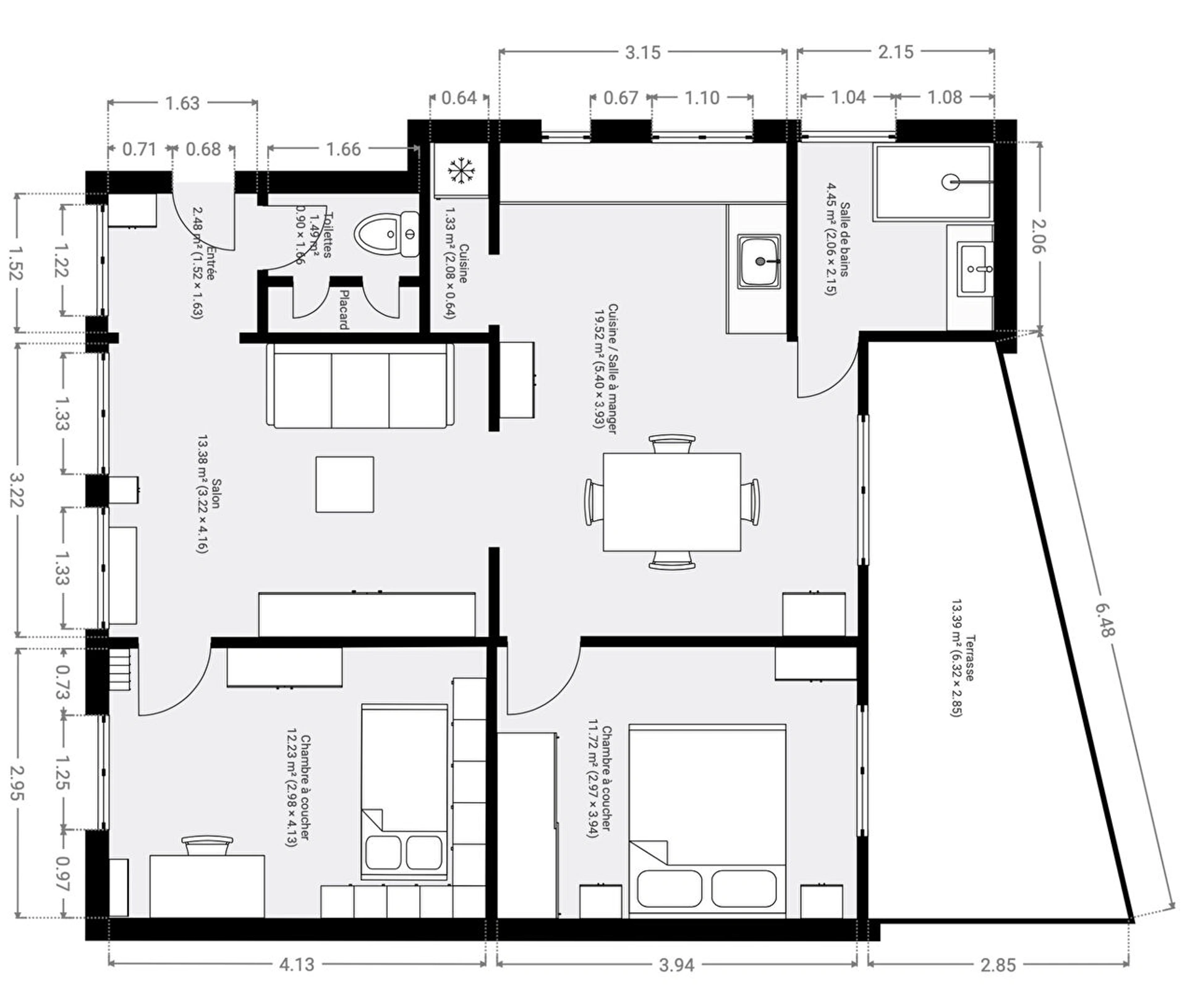
FREDeLION Convention vous présente un bel appartement 4 pièces / 2 chambres, situé rue Pierre Semard, au 1er étage avec ascenseur d'un immeuble ancien parfaitement entretenu, avec gardien, à proximité immédiate des commerces et des transports.

Entièrement sur cour, cet appartement séduit par son calme absolu et son excellent état d'entretien.

Il se compose d'une entrée donnant sur un séjour, d'une salle à manger, de deux chambres, d'une cuisine, de WC séparés, ainsi que d'une agréable terrasse de 15m², idéale pour profiter d'un extérieur rare en ville.

L'appartement est traversant, offrant une circulation fluide et une belle qualité de vie.

Une cave accompagne ce bien.

En complément, une chambre de bonne de 7 m², avec vue sur les toits de Paris, idéale pour un bureau, une chambre d'appoint ou un espace indépendant, vient parfaire l'ensemble.

Un appartement calme, fonctionnel et plein de charme, situé dans un secteur recherché.

Contactez FREDeLION Convention dès aujourd'hui pour organiser une visite ! (3.95 % honoraires TTC à la charge de l'acquéreur.)
Copropriété de 30 lots - dont 16 lots habitation. (Pas de procédure en cours).

Charges annuelles : 3624 euros.
Ce bien fait parti d'une co-propriété de 30 lots. Les charges sont de 3624€ par an. Pas de procédure en cours.
DPE_ passoire énergétique logement extrêmement performant logement extrêmement peu performant consommation (énergie primaire) 305 kWh/m²/an émissions* 12 kgCO2/m²/an
DPE_ * Dont émissions de gaz à effet de serre peu d'émissions de CO2 émissions de CO2 très importantes 12 kgCO2/m²/an
- FREDeLION, c'est...
Chiffre
18
années
d'expertises
Chiffre
4113
avis clients
(MeilleursAgents, Google my business et Opinion System)
Chiffre
120
collaborateurs
à votre service
Votre agence
234 rue de la Convention, 75015 PARIS
01 45 32 40 40

Visiter notre site
Contactez-nous
Pour ce bien
*champs requis
Loading...
Les informations recueillies sur ce formulaire sont enregistrées dans un fichier informatisé par Fredelion pour gérer votre demande de contact. Elles sont conservées pour la durée nécessaire à la gestion de la relation client dans le respect des prescriptions légales applicables et sont destinées au responsable de la publication de ce site : Fredelion.
Conformément à la loi « informatique et libertés », vous pouvez exercer votre droit d'accès aux données vous concernant et les faire rectifier en contactant Fredelion a.daiu@fredelion.com ou en utilisant ce formulaire. Nous vous informons de l’existence de la liste d'opposition au démarchage téléphonique « Bloctel », sur laquelle vous pouvez vous inscrire ici : https://www.bloctel.gouv.fr/
FREDELION PARIS 15 CONVENTION - ALEPH TRANSACTIONS SAS, société au capital de 33300.00 euros. Siège social : 28 bd Malesherbes 75008 PARIS. N° de TVA intracommunautaire : FR52882080054. RCS PARIS immatriculé(e) 882080054.
Carte T : CPI75012021000000432. Date de délivrance : 1101-10-02T15:38:39.000000Z. Lieu de délivrance : CCI de Paris Île-de-France. Caisse de garantie financière : CEGC. N° de caisse de garantie : 29949. Adresse de la caisse de garantie : 59 AVENUE Pierre Mendès France 75013 PARIS. Montant de la garantie financière : 839900 euros.
Conformément aux articles L611-1 et suivants et R612-1 et suivants du Code de la consommation, le consommateur est informé qu’il a la possibilité de saisir un ou notre médiateur de la consommation, à savoir situé
Barème d'honoraires