Loading...
Fredelion

- ROCHECHOUART - PARIS 9

698 000 €dont 3,87% TTC à la charge de l'acquéreur672 000 € hors honoraires
PARIS 9ème
4 pièce(s)
2 chambre(s)
1 salle(s) de bain
68m²
- Description du bien
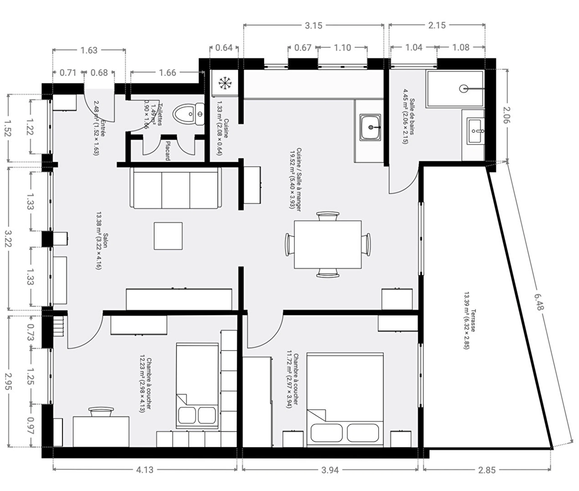
FREDeLION Convention vous propose ce charmant appartement 4 pièces de 67 m² (loi Carrez), comprenant deux chambres, situé rue Pierre Semard, au 1er étage avec ascenseur d'un immeuble ancien de bon standing, parfaitement entretenu et doté d'un gardien.

Vous bénéficierez d'un emplacement privilégié, à deux pas des commerces et des transports.

Entièrement donné sur cour, cet appartement offre un calme remarquable tout en profitant d'un excellent état général.

Il se compose d'une entrée, d'un séjour lumineux, d'une salle à manger, de deux chambres, d'une cuisine, ainsi que de WC séparés. Vous profiterez également d'une agréable terrasse de 15 m², un véritable atout pour savourer un espace extérieur rare en ville.

Traversant, le bien bénéficie d'une circulation fluide, offrant un cadre de vie confortable et agréable.

Une cave complète ce bien.

En complément, une chambre de service de 7 m² (loi Carrez) avec vue sur les toits de Paris est proposée. I

Un bien calme, fonctionnel et plein de charme, situé dans un quartier prisé.

Contactez dès maintenant FREDeLION Convention pour organiser une visite. (3.87 % honoraires TTC à la charge de l'acquéreur.)
Copropriété de 30 lots - dont 16 lots habitation.

Charges annuelles : 3624 euros.
Ce bien fait parti d'une co-propriété de 30 lots. Les charges sont de 3624€ par an. Pas de procédure en cours.
DPE_ passoire énergétique logement extrêmement performant logement extrêmement peu performant consommation (énergie primaire) 305 kWh/m²/an émissions* 12 kgCO2/m²/an
DPE_ * Dont émissions de gaz à effet de serre peu d'émissions de CO2 émissions de CO2 très importantes 12 kgCO2/m²/an
- FREDeLION, c'est...
Chiffre
18
années
d'expertises
Chiffre
4113
avis clients
(MeilleursAgents, Google my business et Opinion System)
Chiffre
120
collaborateurs
à votre service
Votre agence
234 rue de la Convention, 75015 PARIS
01 45 32 40 40

Visiter notre site
Contactez-nous
Pour ce bien
*champs requis
Loading...
Les informations recueillies sur ce formulaire sont enregistrées dans un fichier informatisé par Fredelion pour gérer votre demande de contact. Elles sont conservées pour la durée nécessaire à la gestion de la relation client dans le respect des prescriptions légales applicables et sont destinées au responsable de la publication de ce site : Fredelion.
Conformément à la loi « informatique et libertés », vous pouvez exercer votre droit d'accès aux données vous concernant et les faire rectifier en contactant Fredelion a.daiu@fredelion.com ou en utilisant ce formulaire. Nous vous informons de l’existence de la liste d'opposition au démarchage téléphonique « Bloctel », sur laquelle vous pouvez vous inscrire ici : https://www.bloctel.gouv.fr/
FREDELION PARIS 15 CONVENTION - ALEPH TRANSACTIONS SAS, société au capital de 33300.00 euros. Siège social : 28 bd Malesherbes 75008 PARIS. N° de TVA intracommunautaire : FR52882080054. RCS PARIS immatriculé(e) 882080054.
Carte T : CPI75012021000000432. Date de délivrance : 1101-10-02T10:01:19.000000Z. Lieu de délivrance : CCI de Paris Île-de-France. Caisse de garantie financière : CEGC. N° de caisse de garantie : 29949. Adresse de la caisse de garantie : 59 AVENUE Pierre Mendès France 75013 PARIS. Montant de la garantie financière : 839900 euros.
Conformément aux articles L611-1 et suivants et R612-1 et suivants du Code de la consommation, le consommateur est informé qu’il a la possibilité de saisir un ou notre médiateur de la consommation, à savoir situé
Barème d'honoraires