Loading...
Fredelion

- Studio, 23m2, HOPITAL SAINT LOUIS

250 000 €Honoraires à la charge du vendeur
PARIS 10ème
1 pièce(s)
23m²
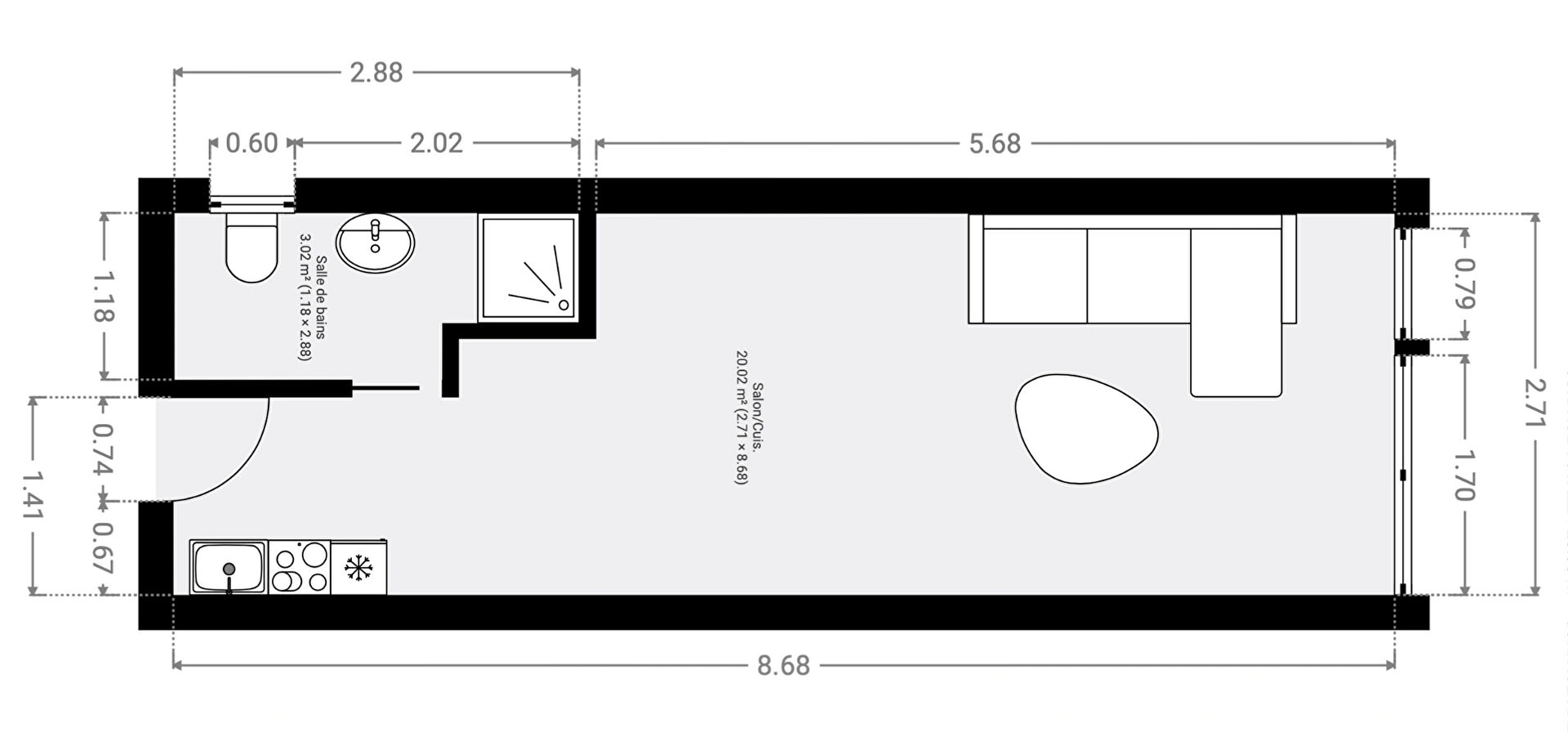
- Description du bien
Votre agence FREDeLION Saint Martin vous présente un appartement 1 pièces de 23m² situé à proximité du Canal Saint Martin, rue de la grange aux belles;
Au 1er étage sans ascenseur d'un immeuble de standing avec gardien, en fond de cour, à la vue dégagée sur jardin;
Cet appartement se compose d'une entrée/cuisine, une pièce principale avec rangements, salle de douches avec WC.
Travaux à prévoir. Appartement lumineux (expo S-O)
Copropriété de 96 lots (Pas de procédure en cours).

Charges annuelles : 1124 euros.
Ce bien fait parti d'une co-propriété de 96 lots. Les charges sont de 1124€ par an. Pas de procédure en cours.
DPE_ passoire énergétique logement extrêmement performant logement extrêmement peu performant consommation (énergie primaire) 231 kWh/m²/an émissions* 45 kgCO2/m²/an
DPE_ * Dont émissions de gaz à effet de serre peu d'émissions de CO2 émissions de CO2 très importantes 45 kgCO2/m²/an
- FREDeLION, c'est...
Chiffre
18
années
d'expertises
Chiffre
4113
avis clients
(MeilleursAgents, Google my business et Opinion System)
Chiffre
120
collaborateurs
à votre service
Votre agence
26 rue de Turin, 75008 PARIS
01 44 90 90 17

Visiter notre site
Contactez-nous
Pour ce bien
*champs requis
Loading...
Les informations recueillies sur ce formulaire sont enregistrées dans un fichier informatisé par Fredelion pour gérer votre demande de contact. Elles sont conservées pour la durée nécessaire à la gestion de la relation client dans le respect des prescriptions légales applicables et sont destinées au responsable de la publication de ce site : Fredelion.
Conformément à la loi « informatique et libertés », vous pouvez exercer votre droit d'accès aux données vous concernant et les faire rectifier en contactant Fredelion a.daiu@fredelion.com ou en utilisant ce formulaire. Nous vous informons de l’existence de la liste d'opposition au démarchage téléphonique « Bloctel », sur laquelle vous pouvez vous inscrire ici : https://www.bloctel.gouv.fr/
FREDELION PARIS 8 EUROPE - ALEPH TRANSACTIONS SAS, société au capital de 33300.00 euros. Siège social : 28 bd Malesherbes 75008 PARIS. N° de TVA intracommunautaire : FR52882080054. RCS PARIS immatriculé(e) 882080054.
Carte T : CPI75012021000000432. Date de délivrance : NC. Lieu de délivrance : CCI de Paris - ile de France. Caisse de garantie financière : CEGC. N° de caisse de garantie : NC. Adresse de la caisse de garantie : 59 AVENUE Pierre Mendès France 75013 PARIS. Montant de la garantie financière : 839900 euros.
Conformément aux articles L611-1 et suivants et R612-1 et suivants du Code de la consommation, le consommateur est informé qu’il a la possibilité de saisir un ou notre médiateur de la consommation, à savoir situé
Barème d'honoraires