Loading...
Fredelion

- SAINT-MANDÉ - CHAUSSEE DE L'ETANG

1 935 000 €Honoraires à la charge du vendeur
SAINT MANDE
6 pièce(s)
4 chambre(s)
1 salle(s) de bain
201m²
- Description du bien
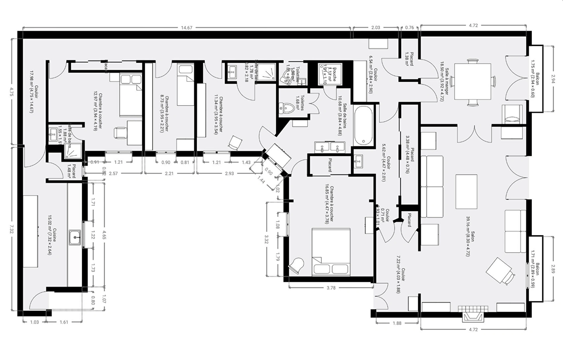
Votre Agence Fredélion Montmartre vous propose ce superbe appartement familial situé Chaussée de l'Etang, dans une résidence de style Napoléon III.

Situé au 4ème étage avec ascenseur d'un magnifique immeuble avec gardien, il se compose comme suit :
Une entrée, un magnifique séjour/salle à manger de 62m² aux boiseries en chênes sculptées et cheminée fonctionnelle en marbre.
Le tout donnant sur deux balcons qui offrent une vue imprenable sur le bois de Vincennes.
4 belles chambres dont une suite parentale de 18m2 avec salle de bains (baignoire et douche à l'italienne plus WC) auxquelles s'ajoutent une buanderie, un dressing, deux autres salles de douche et des toilettes invités.

Les matériaux raffinés, soigneusement entretenus, confèrent à cet espace une élégance intemporelle.
Deux chambres de bonne ainsi que deux caves complètent ce bien.

Nb : 6 photos en home staging permettant de se projeter suite à quelques travaux.

Prix de vente : 1 935 000 euros FAI.
Copropriété de 56 lots - dont 33 lots habitation.

Charges annuelles : 2400 euros.
Ce bien fait parti d'une co-propriété de 56 lots. Les charges sont de 2400€ par an. Pas de procédure en cours.
DPE_ passoire énergétique logement extrêmement performant logement extrêmement peu performant consommation (énergie primaire) 226 kWh/m²/an émissions* 49 kgCO2/m²/an
DPE_ * Dont émissions de gaz à effet de serre peu d'émissions de CO2 émissions de CO2 très importantes 49 kgCO2/m²/an
- FREDeLION, c'est...
Chiffre
18
années
d'expertises
Chiffre
4113
avis clients
(MeilleursAgents, Google my business et Opinion System)
Chiffre
120
collaborateurs
à votre service
Votre agence
67 rue Caulaincourt, 75018 PARIS
01 53 09 26 27

Visiter notre site
Contactez-nous
Pour ce bien
*champs requis
Loading...
Les informations recueillies sur ce formulaire sont enregistrées dans un fichier informatisé par Fredelion pour gérer votre demande de contact. Elles sont conservées pour la durée nécessaire à la gestion de la relation client dans le respect des prescriptions légales applicables et sont destinées au responsable de la publication de ce site : Fredelion.
Conformément à la loi « informatique et libertés », vous pouvez exercer votre droit d'accès aux données vous concernant et les faire rectifier en contactant Fredelion a.daiu@fredelion.com ou en utilisant ce formulaire. Nous vous informons de l’existence de la liste d'opposition au démarchage téléphonique « Bloctel », sur laquelle vous pouvez vous inscrire ici : https://www.bloctel.gouv.fr/
FREDELION PARIS 18 MONTMARTRE - ALEPH TRANSACTIONS SAS, société au capital de 33300.00 euros. Siège social : 28 bd Malesherbes 75008 PARIS. N° de TVA intracommunautaire : FR52882080054. RCS PARIS immatriculé(e) 882080054.
Carte T : CPI75012021000000432. Date de délivrance : 0210-11-01T17:07:11.000000Z. Lieu de délivrance : Paris - IDF. Caisse de garantie financière : CEGC. N° de caisse de garantie : 29948TRA201. Adresse de la caisse de garantie : 59 AVENUE Pierre Mendès France 75013 PARIS. Montant de la garantie financière : 839900 euros.
Conformément aux articles L611-1 et suivants et R612-1 et suivants du Code de la consommation, le consommateur est informé qu’il a la possibilité de saisir un ou notre médiateur de la consommation, à savoir situé
Barème d'honoraires