Loading...
Fredelion

- PARIS 13 - BIBLIOTHEQUE FRANCOIS MITTERAND

700 000 €dont 5,26% TTC à la charge de l'acquéreur665 000 € hors honoraires
PARIS 13ème
6 pièce(s)
5 chambre(s)
74m²
- Description du bien
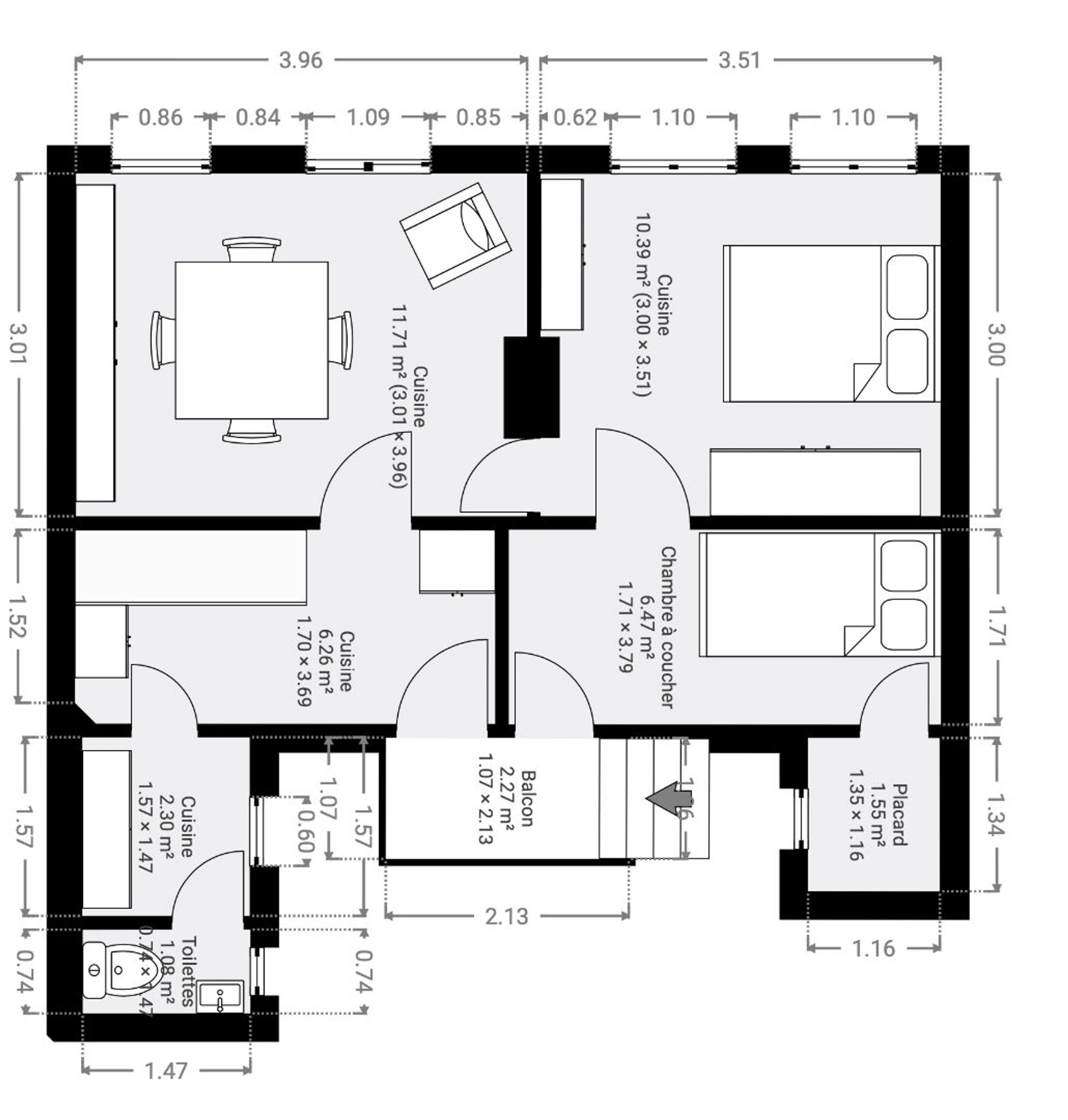
L'agence FREDeLION Butte-aux-Cailles vous présente en exclusivité cette maison de ville à fort potentiel, développant une surface de 74 m², idéalement située à deux pas de la Station F et des Quais de Seine, dans le quartier dynamique de Bibliothèque François-Mitterrand.

Élevée sur deux niveaux, elle offre une agréable luminosité tout au long de la journée et son plan est aménageable selon un projet de maison familiale ou de studios indépendants pour investisseur.

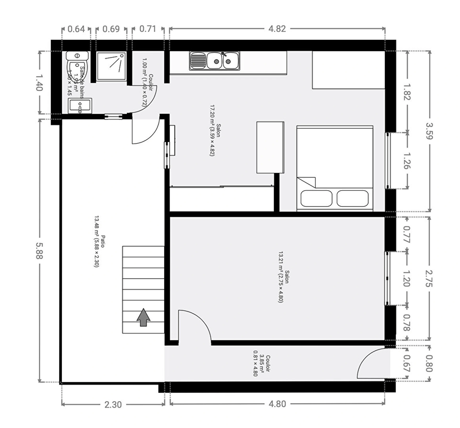
Au rez-de-chaussée, une cour comprenant deux entrées pour accéder au logement constitué d'un hall, un studio aménagé avec cuisine ouverte, une salle d'eau avec wc, et une chambre à aménager. Le niveau entier peut être réuni pour former un deux pièces.

Vous accéderez à l'étage par un escalier depuis la cour afin de découvrir une cuisine, un séjour, deux chambres, une salle d'eau et un wc.

Les combles, d'une surface d'environ 15 m², offrent un volume supplémentaire à aménager selon vos besoins.
En sous-sol, une grande cave voûtée de 39 m² vient compléter ce bien (divisible en 4 espaces indépendants).

Une rénovation intérieur complète est à prévoir, incluant l'installation du chauffage électrique.

Une opportunité rare sur le marché de par sa polyvalence, sa proximité immédiate de la ligne de métro 14, une vie de quartier animée avec de nombreux commerces et plusieurs établissements scolaire. (5.26 % honoraires TTC à la charge de l'acquéreur.)

Pierre-Henri DELAHAYE (EI) Agent Commercial - Numéro RSAC : 894 986 975 - PARIS.
- FREDeLION, c'est...
Chiffre
18
années
d'expertises
Chiffre
4113
avis clients
(MeilleursAgents, Google my business et Opinion System)
Chiffre
120
collaborateurs
à votre service
Votre agence
229 rue de Tolbiac, 75013 PARIS
01 83 64 12 13

Visiter notre site
Contactez-nous
Pour ce bien
*champs requis
Loading...
Les informations recueillies sur ce formulaire sont enregistrées dans un fichier informatisé par Fredelion pour gérer votre demande de contact. Elles sont conservées pour la durée nécessaire à la gestion de la relation client dans le respect des prescriptions légales applicables et sont destinées au responsable de la publication de ce site : Fredelion.
Conformément à la loi « informatique et libertés », vous pouvez exercer votre droit d'accès aux données vous concernant et les faire rectifier en contactant Fredelion a.daiu@fredelion.com ou en utilisant ce formulaire. Nous vous informons de l’existence de la liste d'opposition au démarchage téléphonique « Bloctel », sur laquelle vous pouvez vous inscrire ici : https://www.bloctel.gouv.fr/
GS IMMO, société au capital de euros. Siège social : 229 de Tolbiac 75013 PARIS. N° de TVA intracommunautaire : . RCS PARIS immatriculé(e) 922543657.
Conformément aux articles L611-1 et suivants et R612-1 et suivants du Code de la consommation, le consommateur est informé qu’il a la possibilité de saisir un ou notre médiateur de la consommation, à savoir situé
Barème d'honoraires