Loading...
Fredelion

- LEVALLOIS-PERRET - JULES FERRY

298 999 €dont 3,63% TTC à la charge de l'acquéreur288 534 € hors honoraires
LEVALLOIS PERRET
2 pièce(s)
1 chambre(s)
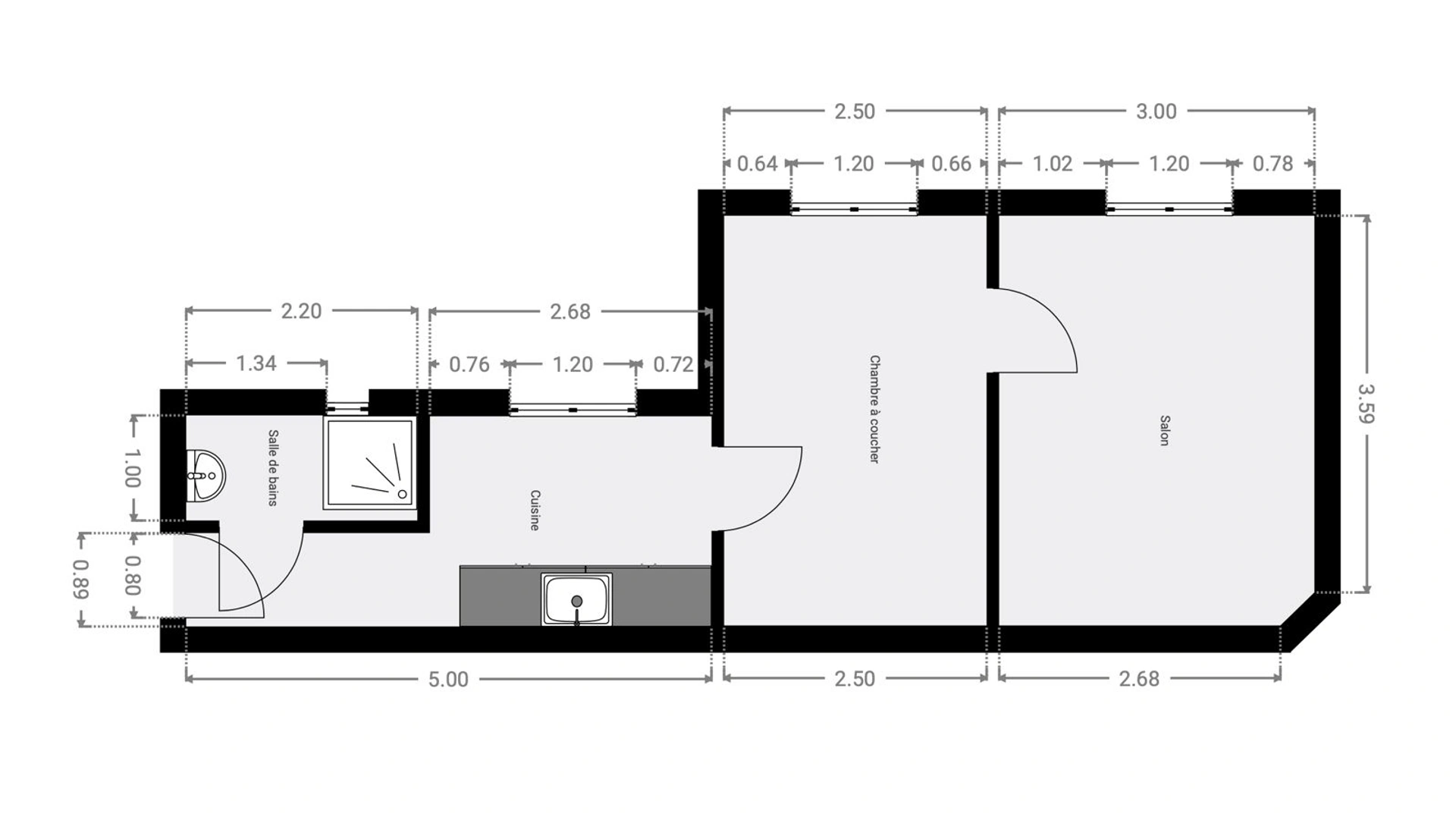
31m²
- Description du bien
Situé au 5 étage avec ascenseur d'un immeuble ancien de standing, ce deux pièces bénéficie d'un emplacement recherché, au calme d'une rue piétonne du centre de Levallois.

L'appartement se compose d'une entrée avec cuisine ouverte, d'un séjour lumineux, d'une chambre avec vue totalement dégagée, ainsi que d'une salle d'eau avec WC. Exposé sans vis-à-vis, il offre une belle luminosité tout au long de la journée et conserve le charme de l'ancien.

Une cave en sous-sol complète ce bien.
Des travaux sont à prévoir pour révéler tout son potentiel. (3.63 % honoraires TTC à la charge de l'acquéreur.)
Ce bien fait parti d'une co-propriété de 0 lots. Les charges sont de 0€ par an. Aucune procédure en cours.
DPE_ logement extrêmement performant logement extrêmement peu performant consommation (énergie primaire) 407 kWh/m²/an émissions* 16 kgCO2/m²/an
DPE_ * Dont émissions de gaz à effet de serre peu d'émissions de CO2 émissions de CO2 très importantes 16 kgCO2/m²/an
- FREDeLION, c'est...
Chiffre
18
années
d'expertises
Chiffre
4113
avis clients
(MeilleursAgents, Google my business et Opinion System)
Chiffre
120
collaborateurs
à votre service
Votre agence
19 rue Louise Michel, 92300 Levallois Perret
01 84 20 04 00

Visiter notre site
Contactez-nous
Pour ce bien
*champs requis
Loading...
Les informations recueillies sur ce formulaire sont enregistrées dans un fichier informatisé par Fredelion pour gérer votre demande de contact. Elles sont conservées pour la durée nécessaire à la gestion de la relation client dans le respect des prescriptions légales applicables et sont destinées au responsable de la publication de ce site : Fredelion.
Conformément à la loi « informatique et libertés », vous pouvez exercer votre droit d'accès aux données vous concernant et les faire rectifier en contactant Fredelion a.daiu@fredelion.com ou en utilisant ce formulaire. Nous vous informons de l’existence de la liste d'opposition au démarchage téléphonique « Bloctel », sur laquelle vous pouvez vous inscrire ici : https://www.bloctel.gouv.fr/
ALEPH TRANSACTIONS, société au capital de 33000.00 euros. Siège social : 19 Louise Michel 92300 Levallois Perret. N° de TVA intracommunautaire : FR52882080054. RCS PARIS immatriculé(e) 882080054.
Carte T : CPI75012021000000432. Date de délivrance : NC. Lieu de délivrance : CCI de Paris Île-de-France. Caisse de garantie financière : CEGC. N° de caisse de garantie : 30991TRA231. Adresse de la caisse de garantie : sis 16 rue Hoche - Tour Kupka B - 92919 LA DEFENSE CEDEX. Montant de la garantie financière : NC.
Conformément aux articles L611-1 et suivants et R612-1 et suivants du Code de la consommation, le consommateur est informé qu’il a la possibilité de saisir un ou notre médiateur de la consommation, à savoir situé
Barème d'honoraires