Loading...
Fredelion

- Prix de l'immobilier à PARIS 17 Rue de l'Arc de Triomphe au m²

- MANIN / JAURÈS- PARIS 19

179 000 €Honoraires à la charge du vendeur
PARIS 19ème
1 pièce(s)
18m²
- Description du bien
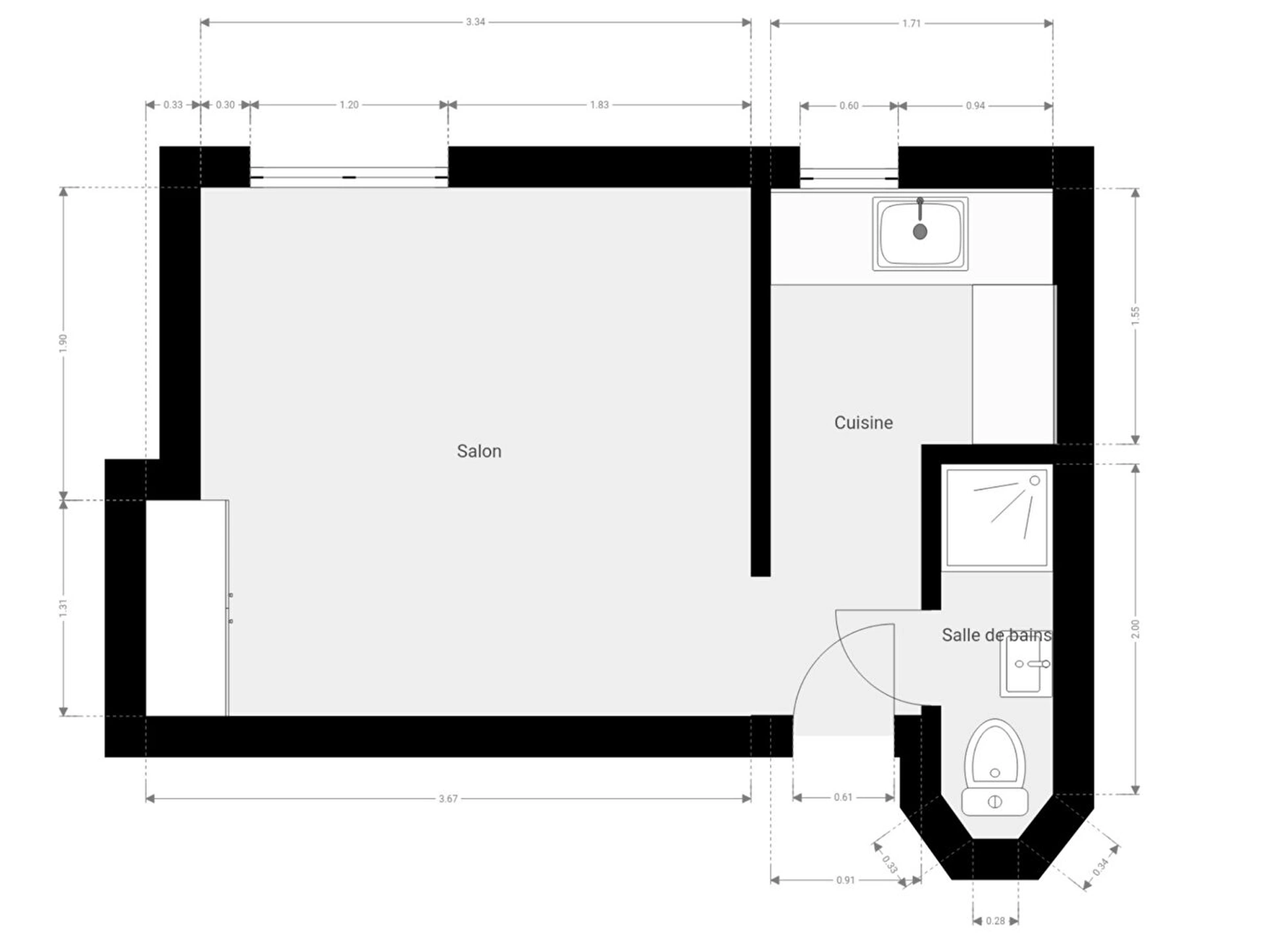
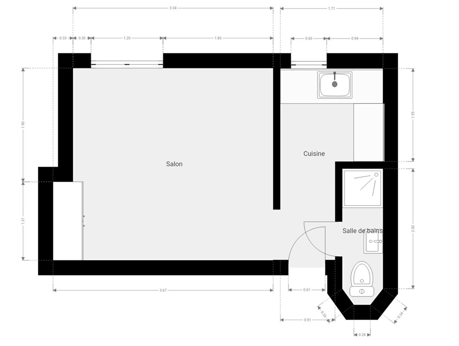
Votre agence Fredélion Buttes-Chaumont vous présente en exclusivité ce charmant studio de 18m², situé dans immeuble ancien de 1907.

Cet appartement, situé dans en dernier étage se compose d'une pièce principale, d'une cuisine semi-ouverte aménagée, ainsi que d'une salle d'eau avec WC.

Cet appartement bénéficie de la proximité de nombreux commerces et transports, offrant un cadre de vie à la fois calme et dynamique, à quelques pas du parc des Buttes-Chaumont.

Contactez-nous pour toutes informations complémentaires, organiser une visite, et découvrir le potentiel de cet appartement.
--
L'agence FREDéLION BUTTES CHAUMONT, située au 35 avenue Simon Bolivar, se tient à votre entière disposition pour estimer votre bien. Estimation offerte, précise, rapide et sans engagement.
Copropriété de 54 lots - dont 53 lots habitation.

Charges annuelles : 544 euros.
DPE_ passoire énergétique logement extrêmement performant logement extrêmement peu performant consommation (énergie primaire) 310 kWh/m²/an émissions* 11 kgCO2/m²/an
DPE_ * Dont émissions de gaz à effet de serre peu d'émissions de CO2 émissions de CO2 très importantes 11 kgCO2/m²/an
- FREDeLION, c'est...
Chiffre
18
années
d'expertises
Chiffre
4113
avis clients
(MeilleursAgents, Google my business et Opinion System)
Chiffre
120
collaborateurs
à votre service
Votre agence
35 avenue Simon Bolivar, 75019 Paris
0183641555

Visiter notre site
Contactez-nous
Pour ce bien
*champs requis
Loading...
Les informations recueillies sur ce formulaire sont enregistrées dans un fichier informatisé par Fredelion pour gérer votre demande de contact. Elles sont conservées pour la durée nécessaire à la gestion de la relation client dans le respect des prescriptions légales applicables et sont destinées au responsable de la publication de ce site : Fredelion.
Conformément à la loi « informatique et libertés », vous pouvez exercer votre droit d'accès aux données vous concernant et les faire rectifier en contactant Fredelion a.daiu@fredelion.com ou en utilisant ce formulaire. Nous vous informons de l’existence de la liste d'opposition au démarchage téléphonique « Bloctel », sur laquelle vous pouvez vous inscrire ici : https://www.bloctel.gouv.fr/
STERN GROUP, société au capital de euros. Siège social : 35 Simon Bolivar 75019 Paris. N° de TVA intracommunautaire : . RCS immatriculé(e) .
Conformément aux articles L611-1 et suivants et R612-1 et suivants du Code de la consommation, le consommateur est informé qu’il a la possibilité de saisir un ou notre médiateur de la consommation, à savoir situé
Barème d'honoraires