Loading...
Fredelion

- PARIS 12 - ALIGRE

412 000 €dont 5,64% TTC à la charge de l'acquéreur390 000 € hors honoraires
PARIS 12ème
2 pièce(s)
1 chambre(s)
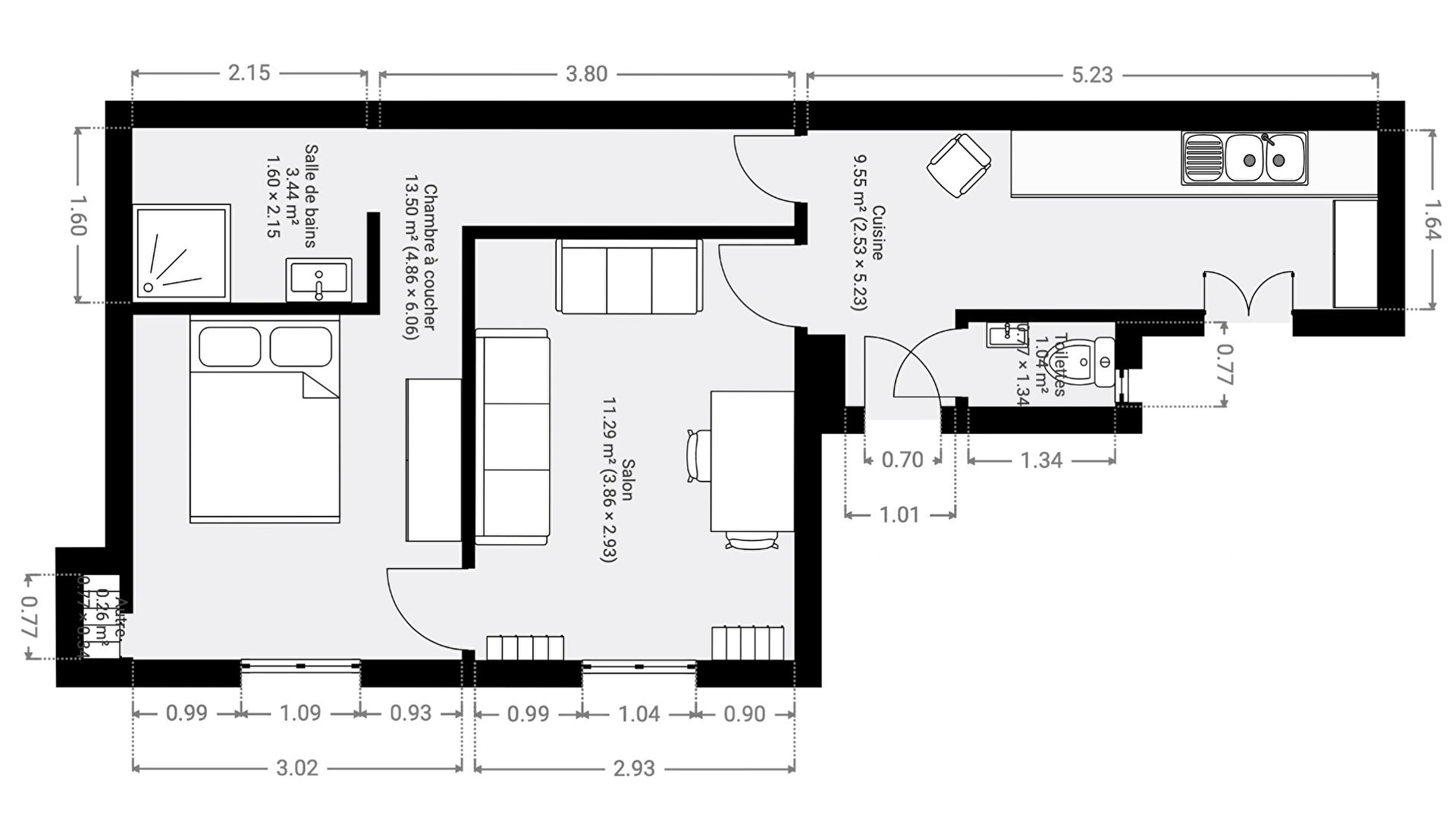
39m²
- Description du bien
Votre agence immobilière FREDéLION Aligre Paris 12 vous propose cet appartement idéalement situé, à quelques mètres à peine du marché d'Aligre, au sein d'une copropriété entretenue avec concierge dont les ravalements ont été récemment réalisés.

Donnant entièrement sur cour, au calme, et exposé Sud, ce 2 pièces en rez-de-chaussée avec cuisine indépendante offre de nombreux atouts.
Vous apprécierez notamment sa proximité avec les commerces et transports (notamment la Gare de Lyon) ainsi que ses espaces modulables.

Idéal comme pied-à-terre, premier achat ou cabinet pour exercer une activité libérale. Une cave complète la vente. (5.64 % honoraires TTC à la charge de l'acquéreur.)
Copropriété de 104 lots - dont 48 lots habitation. (Pas de procédure en cours).

Charges annuelles : 1236.64 euros.
Ce bien fait parti d'une co-propriété de 104 lots. Les charges sont de 1236.64€ par an. Pas de procédure en cours.
DPE_ passoire énergétique logement extrêmement performant logement extrêmement peu performant consommation (énergie primaire) 310 kWh/m²/an émissions* 12 kgCO2/m²/an
DPE_ * Dont émissions de gaz à effet de serre peu d'émissions de CO2 émissions de CO2 très importantes 12 kgCO2/m²/an
- FREDeLION, c'est...
Chiffre
18
années
d'expertises
Chiffre
4113
avis clients
(MeilleursAgents, Google my business et Opinion System)
Chiffre
120
collaborateurs
à votre service
Votre agence
26 rue d’Aligre, 75012 PARIS
01 85 61 12 12

Visiter notre site
Contactez-nous
Pour ce bien
*champs requis
Loading...
Les informations recueillies sur ce formulaire sont enregistrées dans un fichier informatisé par Fredelion pour gérer votre demande de contact. Elles sont conservées pour la durée nécessaire à la gestion de la relation client dans le respect des prescriptions légales applicables et sont destinées au responsable de la publication de ce site : Fredelion.
Conformément à la loi « informatique et libertés », vous pouvez exercer votre droit d'accès aux données vous concernant et les faire rectifier en contactant Fredelion a.daiu@fredelion.com ou en utilisant ce formulaire. Nous vous informons de l’existence de la liste d'opposition au démarchage téléphonique « Bloctel », sur laquelle vous pouvez vous inscrire ici : https://www.bloctel.gouv.fr/
FREDELION PARIS 12 ALIGRE - ALEPH TRANSACTIONS SAS, société au capital de 33300.00 euros. Siège social : 28 bd Malesherbes 75008 PARIS. N° de TVA intracommunautaire : FR52882080054. RCS PARIS immatriculé(e) 882080054.
Carte T : CPI75012021000000432. Date de délivrance : 0101-02-02T15:52:24.000000Z. Lieu de délivrance : Paris - IDF. Caisse de garantie financière : CEGC. N° de caisse de garantie : 29950TRA201. Adresse de la caisse de garantie : 59 AVENUE Pierre Mendès France 75013 PARIS. Montant de la garantie financière : 839900 euros.
Conformément aux articles L611-1 et suivants et R612-1 et suivants du Code de la consommation, le consommateur est informé qu’il a la possibilité de saisir un ou notre médiateur de la consommation, à savoir situé
Barème d'honoraires