Loading...
Fredelion

- PARIS 13 - TOLBIAC BUTTE AUX CAILLES

640 000 €dont 4,92% TTC à la charge de l'acquéreur610 000 € hors honoraires
PARIS 13ème
4 pièce(s)
2 chambre(s)
76m²
- Description du bien
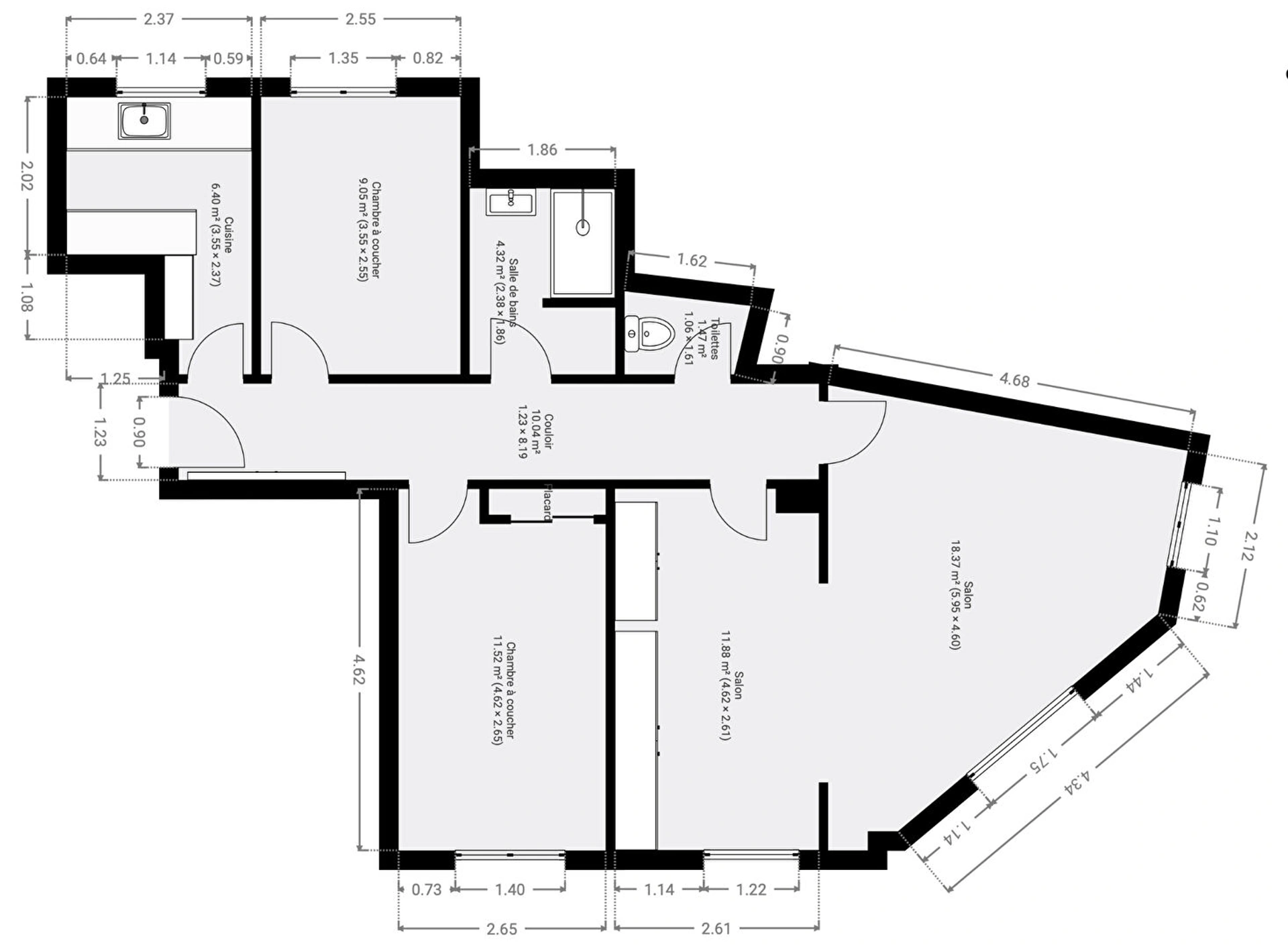
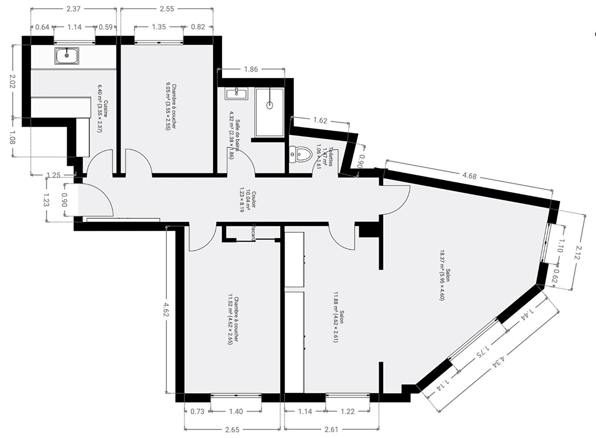
Votre agence Fredelion Butte aux Cailles vous propose en exclusivité ce bel appartement de 4 pièces de 75 m², idéalement situé au pied du quartier recherché de la Butte-aux-Cailles. Niché au premier étage d'un immeuble de 1955 parfaitement entretenu et sécurisé par un gardien, ce bien bénéficie du confort moderne avec un accès par ascenseur.

Dès l'entrée, vous serez séduit par la luminosité qui baigne les espaces de vie. La configuration actuelle propose un vaste double séjour offrant une grande souplesse d'aménagement, avec la possibilité de créer facilement une 3e chambre selon vos besoins, ainsi qu'une cuisine indépendante entièrement aménagée et équipée pour un confort immédiat.
La partie nuit se compose de deux chambres dotées de placards intégrés, complétée par une salle d'eau fonctionnelle et un WC séparé.

Le plan de cet appartement a été pensé pour optimiser chaque mètre carré, proposant de nombreux rangements sur mesure qui facilitent le quotidien. Une cave saine en sous-sol vient compléter les prestations de ce bien rare sur le secteur.

Situé à deux pas des commerces de la rue de Tolbiac et de l'ambiance villageoise de la Butte-aux-Cailles, cet appartement représente une opportunité idéale pour une famille ou un projet de résidence principale dans l'un des secteurs les plus prisés de la Rive Gauche. (4.92 % honoraires TTC à la charge de l'acquéreur.)
Copropriété de 39 lots - dont 39 lots habitation.

Charges annuelles : 4800 euros.
Emmanuelle DRAY (EI) Agent Commercial - Numéro RSAC : 925 164 527 - CRETEIL.
Ce bien fait parti d'une co-propriété de 39 lots. Les charges sont de 4800€ par an. Pas de procédure en cours.
DPE_ passoire énergétique logement extrêmement performant logement extrêmement peu performant consommation (énergie primaire) 174 kWh/m²/an émissions* 38 kgCO2/m²/an
DPE_ * Dont émissions de gaz à effet de serre peu d'émissions de CO2 émissions de CO2 très importantes 38 kgCO2/m²/an
- FREDeLION, c'est...
Chiffre
18
années
d'expertises
Chiffre
4113
avis clients
(MeilleursAgents, Google my business et Opinion System)
Chiffre
120
collaborateurs
à votre service
Votre agence
229 rue de Tolbiac, 75013 PARIS
01 83 64 12 13

Visiter notre site
Contactez-nous
Pour ce bien
*champs requis
Loading...
Les informations recueillies sur ce formulaire sont enregistrées dans un fichier informatisé par Fredelion pour gérer votre demande de contact. Elles sont conservées pour la durée nécessaire à la gestion de la relation client dans le respect des prescriptions légales applicables et sont destinées au responsable de la publication de ce site : Fredelion.
Conformément à la loi « informatique et libertés », vous pouvez exercer votre droit d'accès aux données vous concernant et les faire rectifier en contactant Fredelion a.daiu@fredelion.com ou en utilisant ce formulaire. Nous vous informons de l’existence de la liste d'opposition au démarchage téléphonique « Bloctel », sur laquelle vous pouvez vous inscrire ici : https://www.bloctel.gouv.fr/
GS IMMO, société au capital de euros. Siège social : 229 de Tolbiac 75013 PARIS. N° de TVA intracommunautaire : . RCS PARIS immatriculé(e) 922543657.
Conformément aux articles L611-1 et suivants et R612-1 et suivants du Code de la consommation, le consommateur est informé qu’il a la possibilité de saisir un ou notre médiateur de la consommation, à savoir situé
Barème d'honoraires