Loading...
Fredelion

- PARIS 13 - TOLBIAC PATAY

800 000 €dont 5,26% TTC à la charge de l'acquéreur760 000 € hors honoraires
PARIS 13ème
5 pièce(s)
3 chambre(s)
2 salle(s) de bain
103m²
- Description du bien
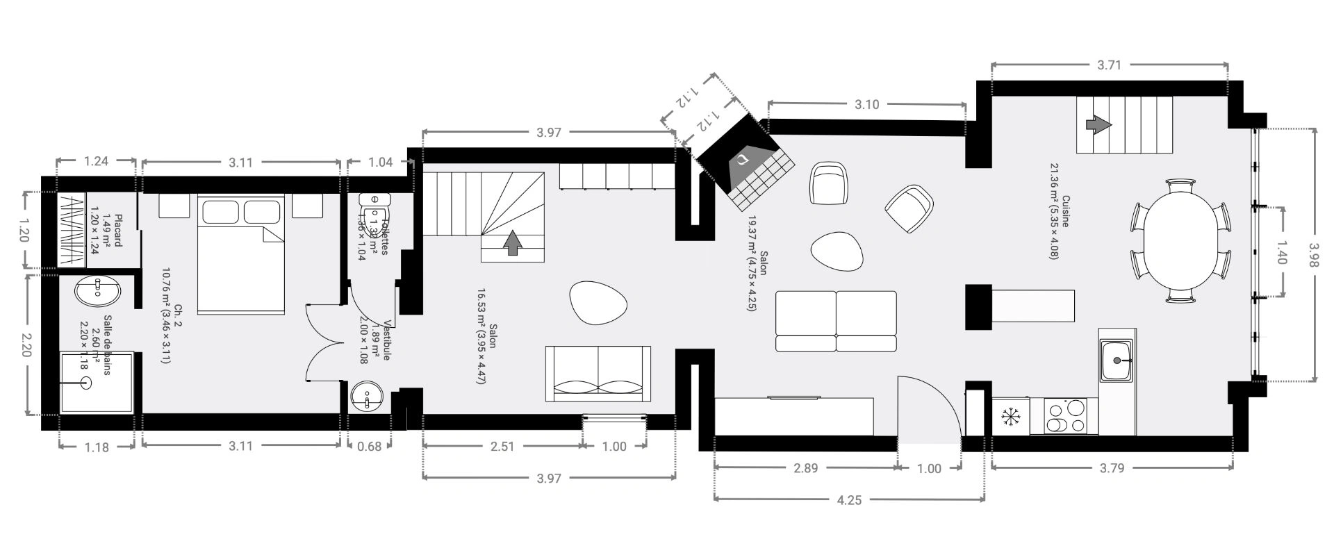
Fredelion Butte-aux-Cailles vous propose en exclusivité cet appartement traversant atypique plein de cachet, développant 103 m² carrez, dans une copropriété très calme avec un magnifique extérieur privatif .

Édifié sur deux niveaux, il séduit par son charme et son superbe jardin terrasse.

Le rez-de-chaussée accueille un vaste lieu de vie comprenant un double séjour avec cuisine ouverte, aménagée et équipée ainsi qu'un patio avec une véranda très lumineuse desservant une chambre et sa salle d'eau.

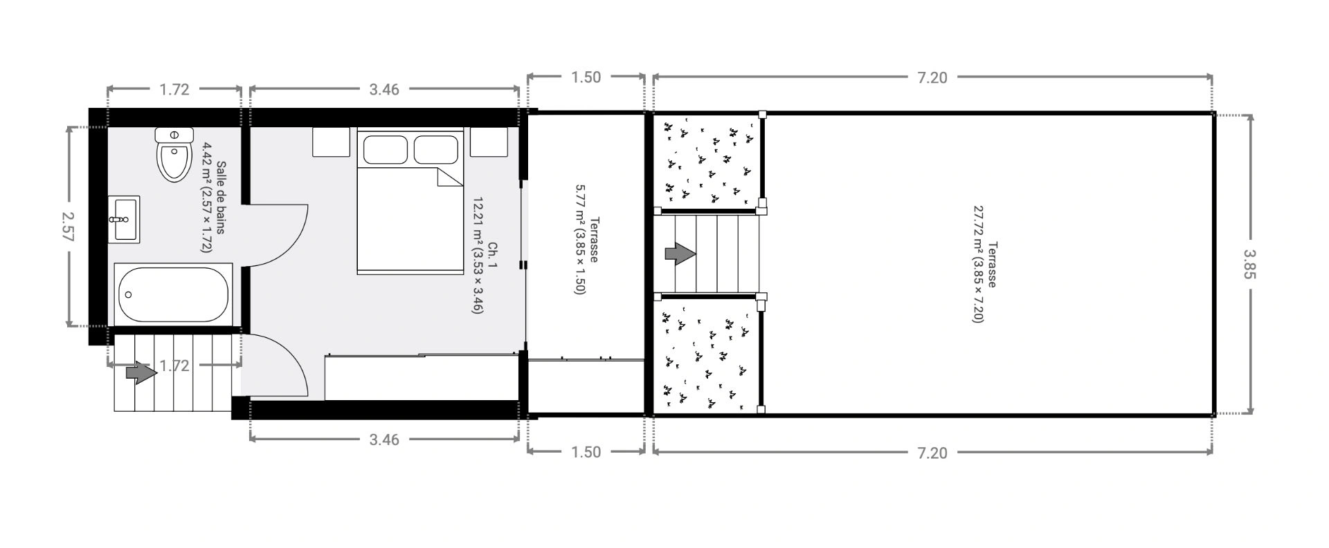
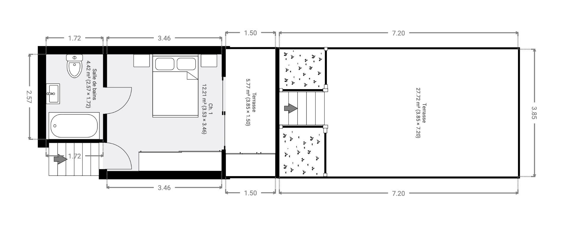
A l'étage, la chambre parentale avec salle d'eau et wc laisse apparaitre une formidable vue arborée sur le jardin. Ce jardin-terrasse privatif est le lieu idéal pour se reposer au calme, à l'abri des regards.
Au dessus de la chambre se trouve un grenier qui constitue un espace de rangement complémentaire.

Le sous-sol accessible par escalier, abrite une chambre supplémentaire actuellement aménagée en bureau avec son wc indépendant.

Une opportunité rare sur le secteur, combinant espace, charme, calme, vie de quartier dynamique, commerces de proximité proche du quartier recherché de Bibliothèque François-Mitterrand.
A coté de la ligne 14 (6mn à pied), le tramway T3 et la promenade de la petite ceinture. (5.26 % honoraires TTC à la charge de l'acquéreur.)
Copropriété de 14 lots - dont 14 lots habitation.

Charges annuelles : 4000 euros.
Pierre-Henri DELAHAYE (EI) Agent Commercial - Numéro RSAC : 894 986 975 - PARIS.
Ce bien fait parti d'une co-propriété de 14 lots. Les charges sont de 4000€ par an. Pas de procédure en cours.
DPE_ passoire énergétique logement extrêmement performant logement extrêmement peu performant consommation (énergie primaire) 267 kWh/m²/an émissions* 10 kgCO2/m²/an
DPE_ * Dont émissions de gaz à effet de serre peu d'émissions de CO2 émissions de CO2 très importantes 10 kgCO2/m²/an
- FREDeLION, c'est...
Chiffre
18
années
d'expertises
Chiffre
4113
avis clients
(MeilleursAgents, Google my business et Opinion System)
Chiffre
120
collaborateurs
à votre service
Votre agence
229 rue de Tolbiac, 75013 PARIS
01 83 64 12 13

Visiter notre site
Contactez-nous
Pour ce bien
*champs requis
Loading...
Les informations recueillies sur ce formulaire sont enregistrées dans un fichier informatisé par Fredelion pour gérer votre demande de contact. Elles sont conservées pour la durée nécessaire à la gestion de la relation client dans le respect des prescriptions légales applicables et sont destinées au responsable de la publication de ce site : Fredelion.
Conformément à la loi « informatique et libertés », vous pouvez exercer votre droit d'accès aux données vous concernant et les faire rectifier en contactant Fredelion a.daiu@fredelion.com ou en utilisant ce formulaire. Nous vous informons de l’existence de la liste d'opposition au démarchage téléphonique « Bloctel », sur laquelle vous pouvez vous inscrire ici : https://www.bloctel.gouv.fr/
GS IMMO, société au capital de euros. Siège social : 229 de Tolbiac 75013 PARIS. N° de TVA intracommunautaire : . RCS PARIS immatriculé(e) 922543657.
Conformément aux articles L611-1 et suivants et R612-1 et suivants du Code de la consommation, le consommateur est informé qu’il a la possibilité de saisir un ou notre médiateur de la consommation, à savoir situé
Barème d'honoraires