Loading...
Fredelion

- PARIS 15E - COMMERCE

2 385 000 €dont 3,70% TTC à la charge de l'acquéreur2 300 000 € hors honoraires
PARIS 15ème
6 pièce(s)
4 chambre(s)
2 salle(s) de bain
195m²
- Description du bien
Appartement d'exception !

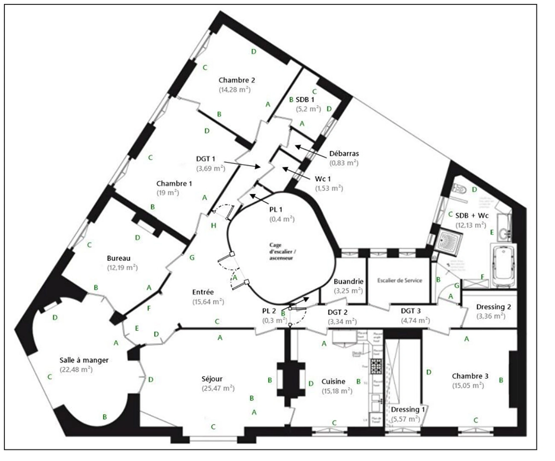
L'agence FREDELION Paris 15 Saint-Charles vous propose, dans un très bel immeuble ancien avec ascenseur, ce somptueux appartement familial de 6 pièces de 184 m² situé au 4e étage en plein coeur du 15e arrondissement à proximité direct de la Rue du Commerce.

Vue sur la Tour Eiffel.

L'appartement se compose d'une vaste entrée avec de nombreux rangements, d'un séjour lumineux offrant une vue dégagée sur la Tour Eiffel, d'une superbe salle à manger d'angle, d'une cuisine dînatoire séparée, aménagée et entièrement équipée, ainsi que d'une pièce actuellement utilisée comme bureau, pouvant aisément être transformée en chambre.

L'espace nuit comprend trois chambres, dont une suite parentale avec double dressing attenant, deux salles d'eau, deux WC indépendants et une buanderie.

Possibilité de créer facilement une troisième salle de bain.

L'appartement dispose également d'une chambre de service ( 10m2 ) et d'une cave incluses dans le prix.

Calme et baigné de lumière, il séduit par le charme de l'ancien parisien : très belle hauteur sous plafond, moulures, parquet en point de Hongrie et cheminées.

Chauffage et eau chaude : individuels
Immeuble : digicode, interphone

DPE : D (3.70 % honoraires TTC à la charge de l'acquéreur.)
- FREDeLION, c'est...
Chiffre
18
années
d'expertises
Chiffre
4113
avis clients
(MeilleursAgents, Google my business et Opinion System)
Chiffre
120
collaborateurs
à votre service
Votre agence
127 rue Saint-Charles, 75015 PARIS
01 82 83 40 00

Visiter notre site
Contactez-nous
Pour ce bien
*champs requis
Loading...
Les informations recueillies sur ce formulaire sont enregistrées dans un fichier informatisé par Fredelion pour gérer votre demande de contact. Elles sont conservées pour la durée nécessaire à la gestion de la relation client dans le respect des prescriptions légales applicables et sont destinées au responsable de la publication de ce site : Fredelion.
Conformément à la loi « informatique et libertés », vous pouvez exercer votre droit d'accès aux données vous concernant et les faire rectifier en contactant Fredelion a.daiu@fredelion.com ou en utilisant ce formulaire. Nous vous informons de l’existence de la liste d'opposition au démarchage téléphonique « Bloctel », sur laquelle vous pouvez vous inscrire ici : https://www.bloctel.gouv.fr/
DALIN BUSSAT DUNNE IMMOBILIER, société au capital de 10000.00 euros. Siège social : 127 Saint-Charles 75015 PARIS. N° de TVA intracommunautaire : NC. RCS PARIS immatriculé(e) 822075156.
Carte T : CPI 7501 2016 000 012 958. Date de délivrance : 0220-01-01T15:55:19.000000Z. Lieu de délivrance : Paris - IDF. Caisse de garantie financière : CEGC. N° de caisse de garantie : 29950TRA201. Adresse de la caisse de garantie : 16 rue Hoche - Tour Kupka B 92919 LA DEFENSE. Montant de la garantie financière : 220000 euros.
Conformément aux articles L611-1 et suivants et R612-1 et suivants du Code de la consommation, le consommateur est informé qu’il a la possibilité de saisir un ou notre médiateur de la consommation, à savoir situé
Barème d'honoraires