Loading...
Fredelion

- PARIS 18 - RUE DES COTTAGES

498 000 €dont 5,29% TTC à la charge de l'acquéreur473 000 € hors honoraires
PARIS 18ème
1 pièce(s)
1 salle(s) de bain
50m²
- Description du bien
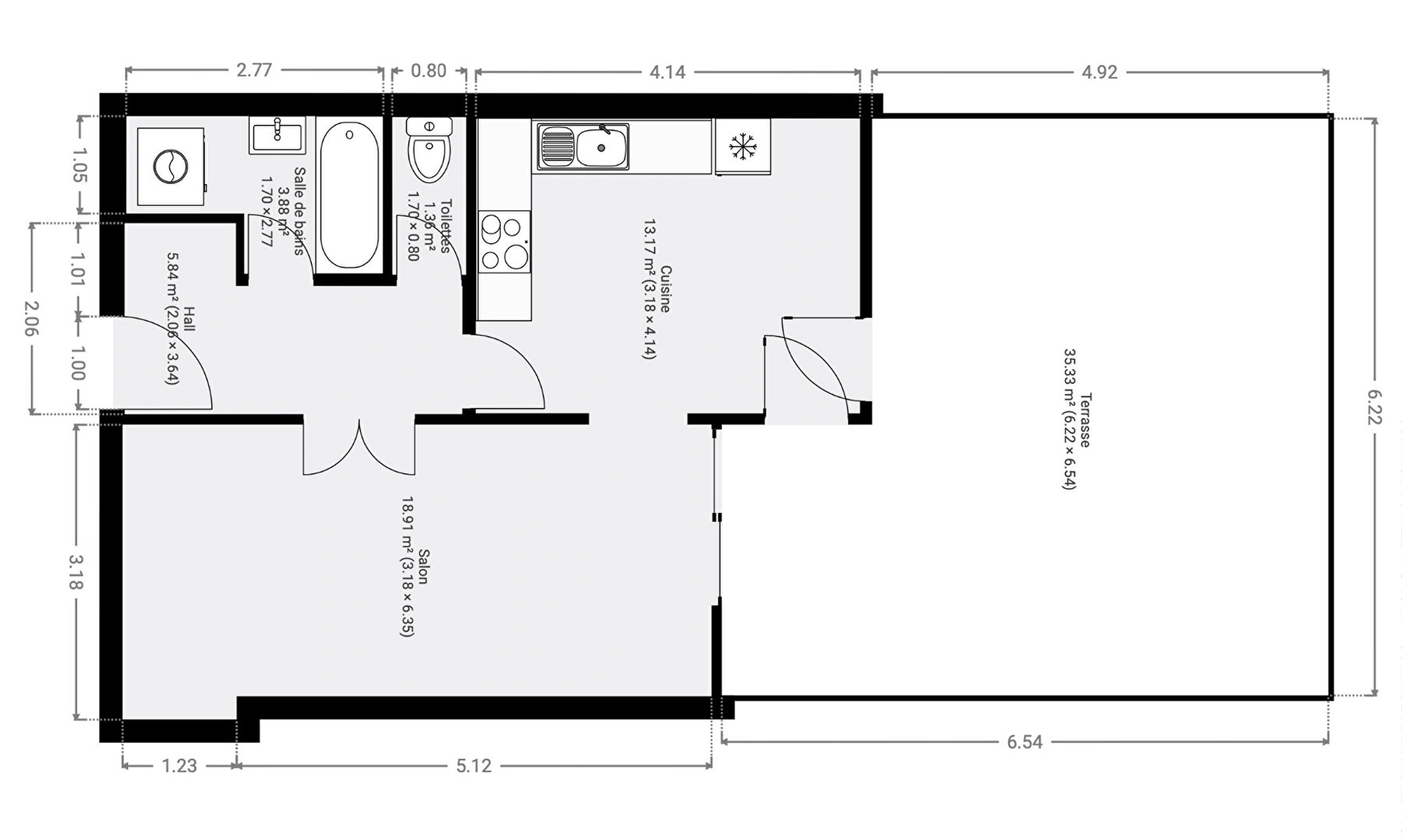
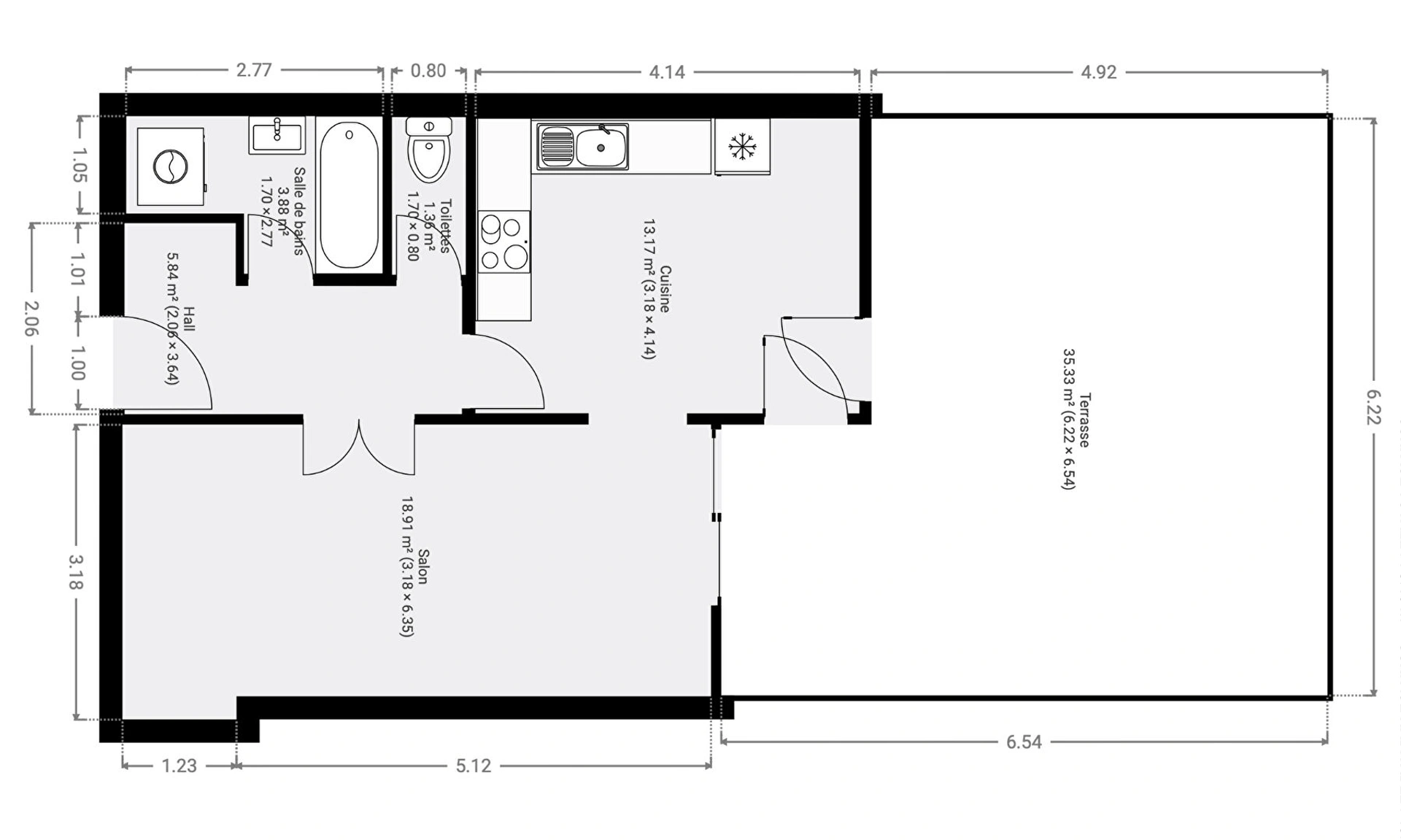
Votre agence Fredélion Montmartre vous propose de découvrir ce charmant studio de 43m2 au deuxième étage avec ascenseur d'un immeuble de 1970 situé rue des Cottages.

Il se compose comme suit : entrée avec rangements, une pièce à vivre spacieuse, une belle cuisine dînatoire donnant tous deux sur une magnifique terrasse de 35m2 exposée Est, un espace nuit, une salle de bains et des toilettes séparés.
Produit rare à 5 minutes du métro Lamarck-Caulaincourt et proche de nombreux commerces de bouche.
Un gardien et un local vélos sont disponibles dans la copropriété.

Une cave complète le bien.

Possibilité de transformer facilement ce bien en 2 pièces.

Nb : surface pondérée à 50m2.

Prix de vente : 498 000 euros FAI. (5.29 % honoraires TTC à la charge de l'acquéreur.)
Copropriété de 40 lots - dont 24 lots habitation.

Charges annuelles : 2500 euros.
Ce bien fait parti d'une co-propriété de 40 lots. Les charges sont de 2500€ par an. Pas de procédure en cours.
DPE_ passoire énergétique logement extrêmement performant logement extrêmement peu performant consommation (énergie primaire) 201 kWh/m²/an émissions* 43 kgCO2/m²/an
DPE_ * Dont émissions de gaz à effet de serre peu d'émissions de CO2 émissions de CO2 très importantes 43 kgCO2/m²/an
- FREDeLION, c'est...
Chiffre
18
années
d'expertises
Chiffre
4113
avis clients
(MeilleursAgents, Google my business et Opinion System)
Chiffre
120
collaborateurs
à votre service
Votre agence
67 rue Caulaincourt, 75018 PARIS
01 53 09 26 27

Visiter notre site
Contactez-nous
Pour ce bien
*champs requis
Loading...
Les informations recueillies sur ce formulaire sont enregistrées dans un fichier informatisé par Fredelion pour gérer votre demande de contact. Elles sont conservées pour la durée nécessaire à la gestion de la relation client dans le respect des prescriptions légales applicables et sont destinées au responsable de la publication de ce site : Fredelion.
Conformément à la loi « informatique et libertés », vous pouvez exercer votre droit d'accès aux données vous concernant et les faire rectifier en contactant Fredelion a.daiu@fredelion.com ou en utilisant ce formulaire. Nous vous informons de l’existence de la liste d'opposition au démarchage téléphonique « Bloctel », sur laquelle vous pouvez vous inscrire ici : https://www.bloctel.gouv.fr/
FREDELION PARIS 18 MONTMARTRE - ALEPH TRANSACTIONS SAS, société au capital de 33300.00 euros. Siège social : 28 bd Malesherbes 75008 PARIS. N° de TVA intracommunautaire : FR52882080054. RCS PARIS immatriculé(e) 882080054.
Carte T : CPI75012021000000432. Date de délivrance : 0210-11-01T16:47:54.000000Z. Lieu de délivrance : Paris - IDF. Caisse de garantie financière : CEGC. N° de caisse de garantie : 29948TRA201. Adresse de la caisse de garantie : 59 AVENUE Pierre Mendès France 75013 PARIS. Montant de la garantie financière : 839900 euros.
Conformément aux articles L611-1 et suivants et R612-1 et suivants du Code de la consommation, le consommateur est informé qu’il a la possibilité de saisir un ou notre médiateur de la consommation, à savoir situé
Barème d'honoraires