Loading...
Fredelion

- PARIS 20 - RUE DES PYRENEES

252 000 €dont 6,78% TTC à la charge de l'acquéreur236 000 € hors honoraires
PARIS 20ème
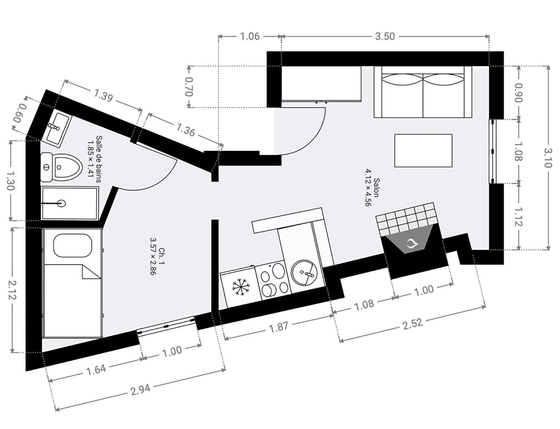
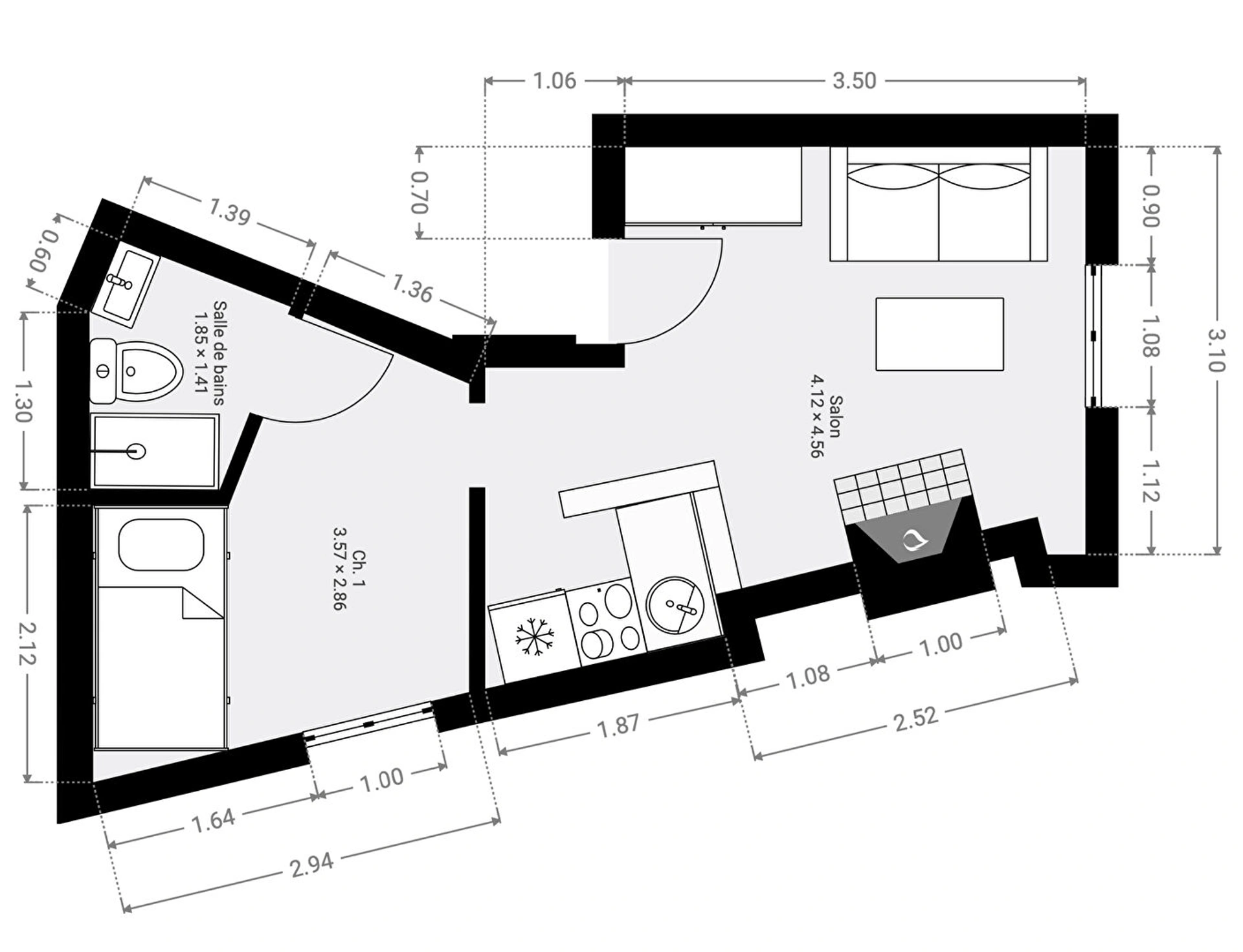
2 pièce(s)
1 chambre(s)
24m²
- Description du bien
Fredelion Gambetta, vous propose en exclusivité.

Au coeur du très recherché village Gambetta, rue des Pyrénées, découvrez ce charmant 2 pièces de 24 m², niché au 6e et dernier étage avec ascenseur d'un très bel immeuble.

Véritable cocon baigné de lumière grâce à son exposition plein sud, cet appartement séduit immédiatement par son calme absolu, son absence totale de vis-à-vis et surtout par ses vues tout simplement exceptionnelles : depuis votre canapé, vous profitez d'un panorama rare sur la Tour Eiffel, avec en prime une vue sur le Sacré-Coeur.

Ce bien réunit des atouts particulièrement recherchés : dernier étage, ascenseur, luminosité, calme, vues dégagées et performance énergétique très appréciable avec un DPE classé D.

Idéalement situé, au pied des commerces de bouche, restaurants, transports et de toute la vie de quartier qui fait le charme de Gambetta, cet appartement constitue une opportunité rare, parfaite pour un premier achat, un pied-à-terre parisien ou un investissement de qualité.

Un bien coup de coeur, à visiter sans tarder. (6.78 % honoraires TTC à la charge de l'acquéreur.)
Copropriété de 20 lots - dont 20 lots habitation.

Charges annuelles : 680 euros.
Ce bien fait parti d'une co-propriété de 20 lots. Les charges sont de 680€ par an. Pas de procédure en cours.
DPE_ passoire énergétique logement extrêmement performant logement extrêmement peu performant consommation (énergie primaire) 275 kWh/m²/an émissions* 10 kgCO2/m²/an
DPE_ * Dont émissions de gaz à effet de serre peu d'émissions de CO2 émissions de CO2 très importantes 10 kgCO2/m²/an
- FREDeLION, c'est...
Chiffre
18
années
d'expertises
Chiffre
4113
avis clients
(MeilleursAgents, Google my business et Opinion System)
Chiffre
120
collaborateurs
à votre service
Votre agence
273 rue des Pyrénées, 75020 PARIS
01 40 33 30 00

Visiter notre site
Contactez-nous
Pour ce bien
*champs requis
Loading...
Les informations recueillies sur ce formulaire sont enregistrées dans un fichier informatisé par Fredelion pour gérer votre demande de contact. Elles sont conservées pour la durée nécessaire à la gestion de la relation client dans le respect des prescriptions légales applicables et sont destinées au responsable de la publication de ce site : Fredelion.
Conformément à la loi « informatique et libertés », vous pouvez exercer votre droit d'accès aux données vous concernant et les faire rectifier en contactant Fredelion a.daiu@fredelion.com ou en utilisant ce formulaire. Nous vous informons de l’existence de la liste d'opposition au démarchage téléphonique « Bloctel », sur laquelle vous pouvez vous inscrire ici : https://www.bloctel.gouv.fr/
FREDELION PARIS 20 GAMBETTA - ALEPH TRANSACTIONS SAS, société au capital de 33300.00 euros. Siège social : 28 bd Malesherbes 75008 PARIS. N° de TVA intracommunautaire : FR52882080054. RCS PARIS immatriculé(e) 882080054.
Carte T : CPI75012021000000432. Date de délivrance : 2002-01-11T16:48:38.000000Z. Lieu de délivrance : Paris - IDF. Caisse de garantie financière : CEGC. N° de caisse de garantie : 22906TRA201. Adresse de la caisse de garantie : 59 AVENUE Pierre Mendès France 75013 PARIS. Montant de la garantie financière : 839900 euros.
Conformément aux articles L611-1 et suivants et R612-1 et suivants du Code de la consommation, le consommateur est informé qu’il a la possibilité de saisir un ou notre médiateur de la consommation, à savoir situé
Barème d'honoraires