Loading...
Fredelion

- PARIS 20 - RUE ORFILA

600 000 €Honoraires à la charge du vendeur
PARIS 20ème
3 pièce(s)
2 chambre(s)
55m²
- Description du bien
L'agence Fredelion Gambetta vous propose en exclusivité un bien rare situé rue Orfila, au coeur du village Gambetta, dans le 20e arrondissement.

Imprégné du charme d'une maison de ville, ce duplex orienté sud-ouest, donnant entièrement sur cour, vous séduira par son environnement paisible et reposant.
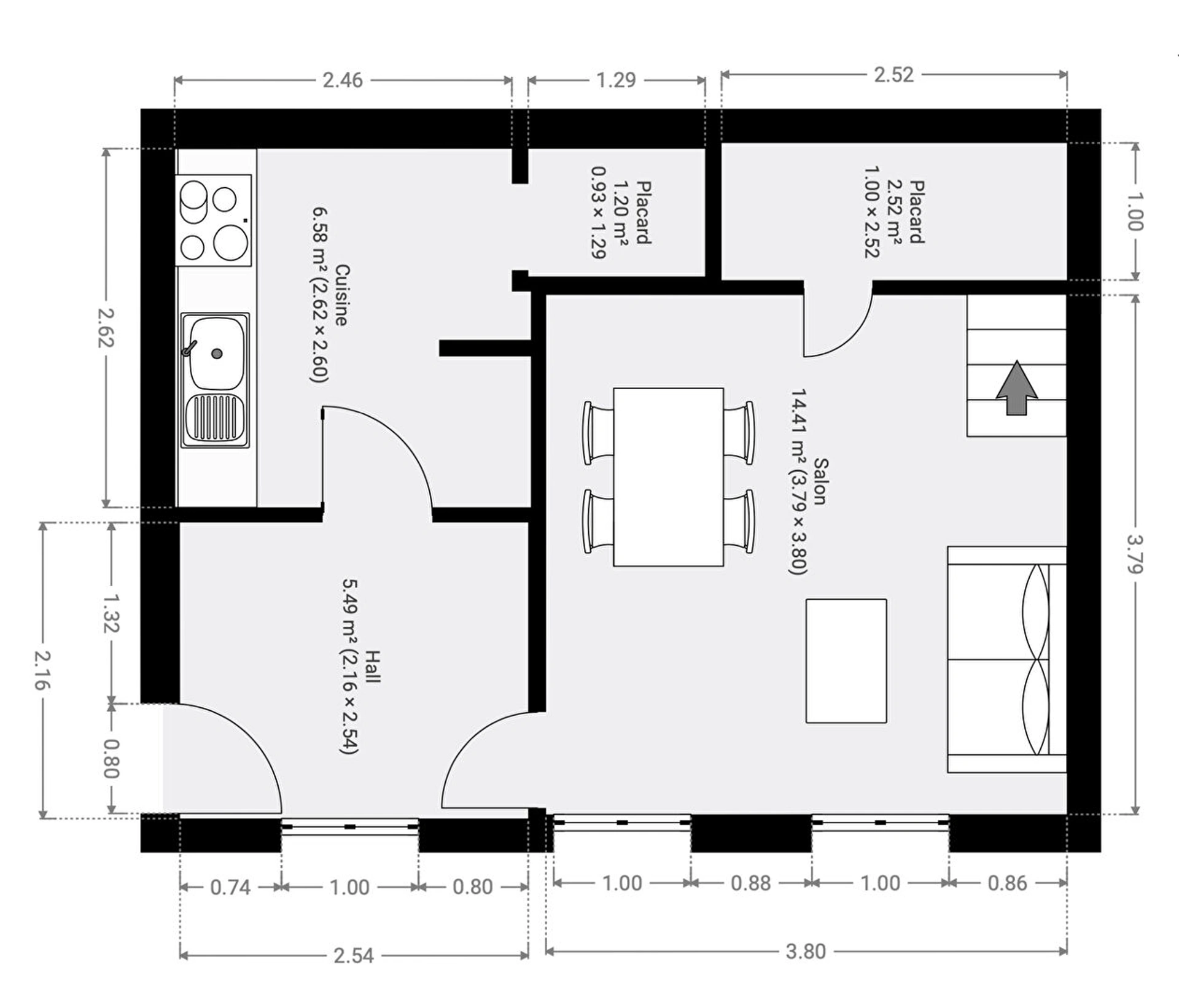
Se développant sur deux niveaux, le bien dispose d'un rez-de-chaussée surélevé comprenant une entrée, une cuisine séparée et un vaste séjour.
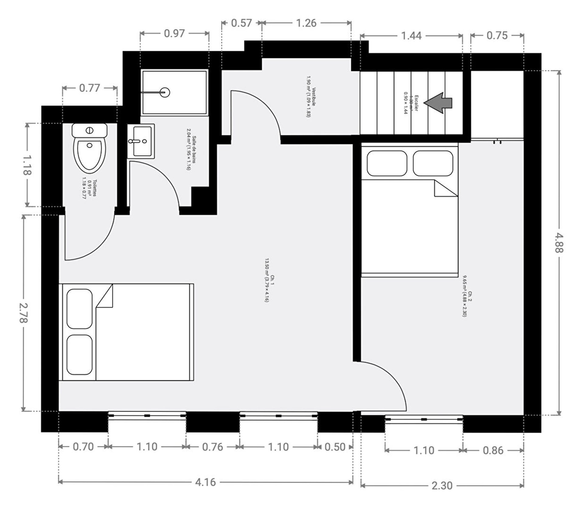
A l'étage : deux chambres, une salle d'eau et des WC séparés.
A souligner la bonne note énergétique du lieu (DPE D), la garantie d'une isolation pérenne grâce à des matériaux de qualité.

Idéal pour un couple ou couple avec enfant, ce bijou caché au coeur du 20e, est à deux pas des commerces, des écoles et des transports. La photo d'ouverture est une suggestion de présentation.

En annexe : une cave
Copropriété de 13 lots (Pas de procédure en cours).

Charges annuelles : 2400 euros.
Ce bien fait parti d'une co-propriété de 13 lots. Les charges sont de 2400€ par an. Pas de procédure en cours.
DPE_ passoire énergétique logement extrêmement performant logement extrêmement peu performant consommation (énergie primaire) 225 kWh/m²/an émissions* 8 kgCO2/m²/an
DPE_ * Dont émissions de gaz à effet de serre peu d'émissions de CO2 émissions de CO2 très importantes 8 kgCO2/m²/an
- FREDeLION, c'est...
Chiffre
18
années
d'expertises
Chiffre
4113
avis clients
(MeilleursAgents, Google my business et Opinion System)
Chiffre
120
collaborateurs
à votre service
Votre agence
273 rue des Pyrénées, 75020 PARIS
01 40 33 30 00

Visiter notre site
Contactez-nous
Pour ce bien
*champs requis
Loading...
Les informations recueillies sur ce formulaire sont enregistrées dans un fichier informatisé par Fredelion pour gérer votre demande de contact. Elles sont conservées pour la durée nécessaire à la gestion de la relation client dans le respect des prescriptions légales applicables et sont destinées au responsable de la publication de ce site : Fredelion.
Conformément à la loi « informatique et libertés », vous pouvez exercer votre droit d'accès aux données vous concernant et les faire rectifier en contactant Fredelion a.daiu@fredelion.com ou en utilisant ce formulaire. Nous vous informons de l’existence de la liste d'opposition au démarchage téléphonique « Bloctel », sur laquelle vous pouvez vous inscrire ici : https://www.bloctel.gouv.fr/
FREDELION PARIS 20 GAMBETTA - ALEPH TRANSACTIONS SAS, société au capital de 33300.00 euros. Siège social : 28 bd Malesherbes 75008 PARIS. N° de TVA intracommunautaire : FR52882080054. RCS PARIS immatriculé(e) 882080054.
Carte T : CPI75012021000000432. Date de délivrance : 2002-01-11T15:57:07.000000Z. Lieu de délivrance : Paris - IDF. Caisse de garantie financière : CEGC. N° de caisse de garantie : 22906TRA201. Adresse de la caisse de garantie : 59 AVENUE Pierre Mendès France 75013 PARIS. Montant de la garantie financière : 839900 euros.
Conformément aux articles L611-1 et suivants et R612-1 et suivants du Code de la consommation, le consommateur est informé qu’il a la possibilité de saisir un ou notre médiateur de la consommation, à savoir situé
Barème d'honoraires